Bildegalleri
2 d tegning
(1/3)
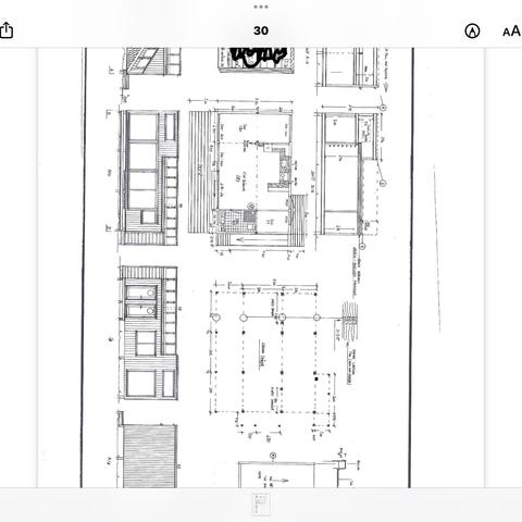
Teknisk bygg tegning
Til salgs
Fiks ferdig
1 000 kr
Frakt fra 38 kr + Trygg betaling 79 kr
Trygg handel med Fiks ferdig
Varen sendes til deg, og du har 24 timer til å inspisere den før pengene overføres til selgeren.
Beskrivelse av varen
Trenger du hjelp til byggetegning, hytte ,tilbygg osv .Ta kontakt for pristilbud .
NB: Knappen for å vise hele beskrivelsen har kun en visuell effekt.
Brukerprofil
Du må være logget inn for å se brukerprofiler og sende meldinger.
Logg innAnnonsens metadata
Sist endret: 16.11.2024 kl. 20:47 ・ FINN-kode: 309542115
Utforsk våre nye sider for klær og mote
Ta en titt




