Bildegalleri

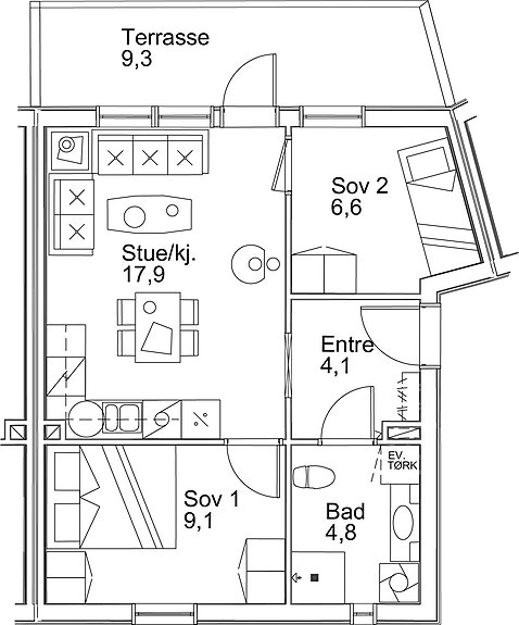
Plantegning B 203

Eidsbugarden - Tyin

Norges flotteste beliggenhet i høyfjellet på 1100 moh:

Tyin Jotunheimen Høyfjellshotell

Prisantydning3 390 000 kr
Totalpris
3 393 950 kr
Omkostninger
3 950 kr

Kort om prosjektet

Norges utvilsomt flotteste beliggenhet i høyfjellet! Beliggende ved Jotunheimen Nasjonalpark på veien inn til Eidsbugarden, og rett i vannkanten på Tyin. Høyt over tregrensen - nærmere naturen kommer du ikke!

  • Planlegging

    2020

  • Salgsstart

    15. september 2025

  • Byggestart

    Antatt 2026

  • Overtakelse

    Antatt 2027

Nøkkelinfo

Beliggenhet
På fjellet
Boligtype
Leilighet
Etasje
2
Soverom
2
Rom
3
Bruksareal
44 m²
Balkong/Terrasse
9 m² (TBA)
Tomt
Eiet

Les mer om bruksareal her

Fasiliteter

Alpinanlegg
Balkong/Terrasse
Bilvei frem
Garasje/P-plass
Lademulighet
Peis/Ildsted
Utsikt
Fiskemulighet
Innlagt strøm
Innlagt vann
Strandlinje
Turterreng

Visning

Ta kontakt for å avtale visning.

Nærområdet

Annonseinformasjon

FINN-kode426016748
Sist endret07. sep. 2025 19:34

Rapporter annonse

Annonsene kan være mangelfulle i forhold til lovpålagt opplysningsplikt. Før bindende avtale inngås oppfordres interessenter til å innhente komplett informasjon fra meglerforetaket, selger eller utleier.