Bildegalleri
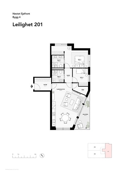
4-201
Vil du bo på en av Bergens beste tomter? 85 eierleiligheter med solrike balko...
Leilighet Nøstegaten 119
Prosjektets status
Planlegging
-År 2025
Salgsstart
- Mars 2026
Byggestart
- Innen 31.12.2026
Overtakelse
- Innen 1. kvartal 2029
Nøkkelinfo
- Boligtype
- Leilighet
- Etasje
- 2
- Soverom
- 2
- Rom
- 3
- Internt bruksareal
- 84 m² (BRA-i)
- Bruksareal
- 89 m²
- Eksternt bruksareal
- 5 m² (BRA-e)
- Balkong/Terrasse
- 8 m² (TBA)
Visning
Beskrivelse
Kort om prosjektet
Velkommen til Nøstet Sjøfront - Et boligprosjekt av de sjeldne!
Prosjektet Nøstet Sjøfront, vil bestå av 8 boligblokker med totalt 149 selveierleiligheter. De 8 byggene vil være på henholdsvis 5-6 hovedplan. Samtlige boliger leveres med enten fransk balkong, markterrasse, balkong eller privat takterrasse. Bygg 7 og 8 huser i tillegg næringsarealer på bakkeplan, mot Nøstegaten.
Trinn 1, bestående av bygg 6 A-B, 7 og 8 ble lansert for salg mars 2025.
Nøstet sjøfront AS går nå i salg med trinn 2, bestående av bygg 1 - 5 med totalt 85 selveierleiligheter.
Bygg 1 vil inneholde 22 leiligheter i bygg som går over 4 hovedplan. Det blir 2 stk. heis/trappehus. Hovedinngang på sørsiden av bygget. Inngang A og B
Bygg 2 vil inneholde 19 leiligheter i bygg som går over 4 hovedplan. Det blir 1 stk. heis/trappehus. Hovedinngang på nordsiden av bygget.
Bygg 3 vil inneholde 20 leiligheter i bygg som går over 5 hovedplan. Det blir 1 stk. heis/trappehus. Hovedinngang på sørsiden av bygget.
Bygg 4 vil inneholde 13 leiligheter i bygg som går over 5 hovedplan. Det blir 1 stk. heis/trappehus. Hovedinngang på nordsiden av bygget.
Bygg 5 vil inneholde 11 leiligheter i bygg som går over 6 hovedplan. Det blir 1 stk. heis/trappehus. Hovedinngang på sørsiden av bygget. Bygget har gjesterom og treningsrom.
Leilighetene leveres nøkkelferdige med høy standard på innredning og utstyr, med en variert miks av gode 2-roms til romslige 5-roms leiligheter med ulike størrelser og planløsninger tilpasset en variert beboersammensetning.
Prosjektet anlegges med garasjeanlegg i grunnen under bygg 6 - 7, hvor utvalgte boliger vil få forkjøpsrett på særskilt kjøp av fast parkeringsplass (fremkommer av prisliste, hvilken leilighet som har forkjøpsrett).
Oppdragsansvarlig
Privatmegleren Nyeboliger Bergen
Selger/Utbygger
Nøstet Sjøfront AS v. Nils Petter Storebø
Betegnelse
Gnr. 165, bnr. 574 i Bergen kommune. Det vil bli gjort utfylling i sjø mot nordvest. Videre vil eiendommen blir seksjonert. Endelig bruks- og seksjonsnummer vil først foreligge i prosjektets sluttfase.
Byggeår
2026 - 2029, gjelder trinn 2
Arealer (Til-Fra)
BRA fra 41 - 250 m2 jf. vedlagte tegninger
BRA-i fra 38,5 - 245,1 m2 jf. vedlagte tegninger
BRA-e fra 2,5 - 5 m2 jf. vedlagte tegninger
TBA fra 0 - 46,6 m2 jf. vedlagte tegninger
(Merk at noen boliger kun har fransk balkong)
For mer informasjon om areal pr. leilighet vennligst se vedlagte prisliste. For hvilke rom som inngår i arealet i hver enkelt leilighet, se vedlagte plantegninger.
Beliggenhet
Velkommen til Nøstet Sjøfront! En fantastisk eiendom med beliggenhet ved sjøfronten mot Byfjorden.
Nøstegaten i Bergen ligger like ved Verftet, og er kjent for sin historie innenfor handel, sjøfart samt sin sjarmerende arkitektur. Meget attraktivt område i Bergen sentrum, kjent for sine gamle trehus og smale, svingete gater som er typiske for Bergens gamle bystruktur.
Dette er et sted hvor du kan oppleve en blanding av Bergens rike historie og byens livlige nåtid, med ulike butikker, kafeer og kulturelle severdigheter.
Eiendommen ligger fint og skjermet til mot byfjorden, hvor hovedvekten av boligene vil ligge vendt sørvest. Utbygger har forsøkt å tenke plassering i hver enkelt bolig, slik at sol og utsikt skal bli, så optimale som mulig.
Beskrivelse av nærområdet / fasiliteter
Boligprosjektet vil ha en meget ettertraktet og sentral beliggenhet i Bergen sentrum.
Nærområdet byr på det meste man måtte trenge av fasiliteter. Dagligvarehandelen kan gjøres på Bunnpris eller Rema 1000 like ved. Ønsker man et bredere utvalg av fasiliteter og servicetilbud er veien kort til kjernen av Bergen sentrum, som ligger knappe 5 minutters spasertur fra Nøstet Sjøfront. Her kan kjøpesentre som Galleriet, Xhibition, Sundt og Kløverhuset nevnes. Disse rommer et bredt utvalg av butikker og tjenester. I tillegg byr Bergen sentrum på et stort utvalg av restauranter, caféer, kino og utesteder. Velkjente turistattraksjoner som Bryggen, Fisketorget og Fløien ligger også innen gangavstand.
Dersom man er glad i friluftsliv og natur byr området på blant annet vakre byfjell, Fløien, Stoltzekleiven og Nordnesparken med sine store grøntområder. Ellers har du bademuligheter rett utenfor døren og kan for øvrig også gå til Nordnes Sjøbad, som er et populært utendørs badeanlegg med blant annet oppvarmet saltvannsbasseng. Ellers, er du nabo til Verftet som er Bergens største kultur og scenehus, kjent for sitt varierte tilbud innen musikk og kreative aktiviteter. Videre kan nevnes både Akvariet, idrettshall og fotballbane ligger innen gangavstand.
Flere utdanningsinstitusjoner som UiB, BI, HVL m.m. like i nærheten. Kollektivtilbudet er ypperlig med både bybane, buss og tog som har hyppige avganger fra sentrum.
Enklere, penere og mer moderne blir det ikke om du ønsker å bo sentralt!
Bygninger
Bygg 1:
1.etasje: A101 - A103 / B101 - B102 / Sykkelparkering
2.etasje: A201 - A203 / B201 - B203
3.etasje: A301 - A303 / B301 - B303
4.etasje: A401 - A402 / B401 - B403
Bygg 2:
1.etasje: 101 - 105
2.etasje: 201 - 205
3.etasje: 301 - 305
4.etasje: 401 - 404
Bygg 3:
1.etasje: 101 - 105
2.etasje: 201 - 205
3.etasje: 301 - 304
4.etasje: 401 - 404
5.etasje: 501 - 502
Bygg 4:
1.etasje: 101 - 103
2.etasje: 201 - 203
3.etasje: 301 - 303
4.etasje: 401 - 403
5.etasje: 501
Bygg 5:
1.etasje: 101 - 102/ Treningsrom/ Gjesterom
2.etasje: 201 - 202
3.etasje: 301 - 303
4.etasje: 401 - 402
5.etasje: 501 - 502
6.etasje: 601
Underetasjer: 3 plan under bygg 6 og 7 som inneholder; boder til bygg 4 og 5, sykkelparkering for hele prosjektet, parkeringsplasser til dem som har kjøpt dette, kjøreveier og gang/trappeareal, m.m. for tilkomst til boder og parkeringsplasser.
Byggemåte
De tekniske løsninger skal tilfredsstille plan- og bygningslovgivningen, herunder kravene i teknisk forskrift, TEK17. Forskriften setter krav til tiltak innenfor alle viktige områder som visuell kvalitet, universell utforming, sikkerhet mot naturpåkjenning, uteareal, ytre miljø, konstruksjons sikkerhet, sikkerhet ved brann, planløsning, miljø, helse og energi.
Under detaljprosjektering kan det bli mindre endringer ved prosjektet. Slike endringer gir ikke rett til prisjusteringer fra noen av partene. Om det blir nødvendig å gjennomføre vesentlige endringer ut over forannevnte bestemmelser, plikter Selger å varsle kjøper om endringene uten ugrunnet opphold.
Byggene er planlagt, oppført med støpte betongdekker i etasjeskiller og yttertak. Bærende vegger og søyler i stål eller betong. Yttervegger blir kledd i naturlige materialer med hovedsakelig med malt trekledning og skjermtegl. Se vedlagte leveransebeskrivelse for nærmere informasjon.
Innhold
For nærmere informasjon om innhold se vedlagte tegninger (Salgsoppgave NS T2 del 1) og leveransebeskrivelse (Salgsoppgave NS T2 del 2 (Vedleggshefte).
Eiendommens historie
Nøstet er et strøk i Bergen i området Nordnes, i bydelen Bergenhus. Strøket begynner ved Dragefjellets fot, langs Gamle Nøstegaten til Jekteviken. Så langs sjøen til Nordre Nøstekaien, videre opp Vestre Holbergsallmenningen der det gamle gartneriet dannet grensen til Verftet. Strøket grenser således i sør til Engen og i øst til Strandsiden.
På Nøstet ligger det næringsbygg langs sjøen og pittoreske gater med trehus, trange smau og bygårder. Teatergarasjen som nå er revet, lå i strøket. Det gjør også Stranges stiftelse, Sydnes sjøbad og innkjørselen til parkeringshuset Klostergarasjen.
Dansekompaniet Carte Blanche (Studio Bergen) og TV 2s hovedkvarter ligger derimot såvidt over grensen til Verftet i nord, mens Hurtigruteterminalen ligger like over grensen mot Sydnes i vest. Strøket utgjør i hovedtrekk den sørvestlige del av Nordneshalvøyen og deler av strandlinjen mot Sydnes. Hovedgatene i området er Nøstegaten, Skottegaten, Vestre Muralmenning og Vestre Holbergsalmenning.
På Nøstet var det tidligere fergeanløp for Laksevaagsfergen og Askøyfergen. Det går fortsatt en ferge fra Askøy til Nøstet, men bare for fotgjengere.
Møblering
Foruten integrerte hvitevarer på kjøkkenet (se romskjema for beskrivelse av hva som mefølger i hver bolig), selges boligene umøblert og uten hvitevarer.
Oppvarming
Leilighetene oppvarmes med vannbåren gulvarme lagt i entrè/gang, stue og kjøkken. Elektriske varmekabler i gulv på bad. Oppvarmingen av vann er fjernvarme fra Eveny.
Parkering / Garasje
Det medfølger ikke parkeringsplass til boligene på Nøstet Sjøfront T2.
Det er mulighet for særskilt kjøp av parkeringsplass, i parkeringsanlegget under Nøstet sjøfront 1, bygg 6 og 7. Hvilke leiligheter som har forkjøpsrett på den enkelte parkeringsplass (alle plassene er nummerert), fremkommer av prisliste.
Adkomst
Nøstegaten ligger i Bergen sentrum, med tilkomst fra Baneveien og inn i Nøstegaten.
Det vil bli skiltet med Privatmeglerens visningsskilt ved fellesvisninger.
Beskrivelse av tomt
Eiet tomt / ca. 9 400 m2. Oppgitt areal gjelder tomt for alle byggene i trinn 1 og 2. Det vil kunne bli skilt ut en egen tomt for trinn 2 i en eller flere matrikler og tomtearealet får dette vil tilkomme senere. Tomt er pr. i dag ikke endelig opparbeidet, endelig areal kan således avvike.
For hvert enkelt eierseksjonssameie vil det kunne bli opprettet en egen tomt som i all hovedsak vil være bebygget, men med noe opparbeidet felles eiet tomt rundt byggene.
Tilliggende fasiliteter
Nabolaget er spesielt anbefalt for:
Familier med barn
Etablerere
Enslige
Dagligvare:
Bunnpris Nøstet 3 min. (gange)
Kiwi Nøstet 6 min (gange)
Ladepunkt for EL-bil:
Klostergarasjen 5 min. (gange)
Fagskulen Vestland 6 min. (gange)
Varer/Tjenester:
Kløverhuset 10 min. (gange)
Galleriet 12 min. (gange)
Exhibition 12 min (gange)
Offentlig Transport:
Georgernes Verft, buss linje 86 - 4 min. (gange)
Byparken bybane 12 min ( gange)
Jenbanestasjonen i Bergen 18 min. (gange)
Bergen Flesland 21 min. (bil)
Tinglyste rettigheter og forpliktelser
Kommunen har legalpant som sikkerhet for betaling av kommunale avgifter. Legalpant er pant som følger av loven, og som ikke tinglyses. Legalpant følger derfor eiendommen ved salg. På eiendommen kan det være tinglyst erklæringer som f eks rett for kommunen til å vedlikeholde rørsystemer for vann- og kloakk. Disse erklæringene vil følge eiendommen ved salg. Kontakt megler for nærmere informasjon.
Øvrige sameiere har panterett i seksjonen for krav mot sameieren som følge av sameieforholdet, jf. eierseksjonsloven § 31. Pantekravet kan ikke overstige 2G (Folketrygdens grunnbeløp). Sameiet kan vedtektsfeste ytterligere panterett for sameiet. Vedtektsfestet pant tinglyses i seksjonene.
Servitutter / rettigheter
Eiendommen overdras fri for pengeheftelser, med unntak av eventuelle erklæringer, avtaler, servitutter og panteheftelser som fremgår av salgsoppgaven og skal følge med eiendommen ved salg. Kjøpers bank vil få prioritet etter disse.
Se Salgsoppgave NS T2 del 2 (Vedleggsheft) for mer detaljer.
Vei / Vann / Avløp
Eiendommen blir tilknyttet offentlig avløpsnett og vann via private stikkledninger. Adkomst til prosjektet skjer via kommunal vei ifølge Bergen kommune.
Felles gjenvinningsstasjon for glass/metall og mat i Bjørgeboden for hele planområdet. For øvrig bossug system for restavfall.
Ferdigattest eller midl. brukstillatelse
Det vil foreligge ferdigattest eller midlertidig brukstillatelse innen overtagelse.
Verdi ved skattefastsetting
Stortinget har vedtatt en ny modell for beregning av formuesverdi for bolig. Den nye utregningsmodellen beregner boligverdier basert på grunnkretser i stedet for kommuner, og skal benyttes fra og med inntektsåret 2026. Dette kan medføre at markedsverdien settes høyere eller lavere enn tidligere og innebærer at både selger og megler kan benytte tall som ikke nødvendigvis er oppdaterte på tidspunktet for utarbeidelse av salgsoppgaven. Det tas derfor forbehold om at formuesverdien kan bli endret og eventuelt øke ved endelig fastsettelse i skatteåret.
For primærbolig utgjør formuesverdien 25 % av beregnet eller dokumentert markedsverdi opptil kr 10 000 000, og deretter 70 % av den delen som overstiger dette beløpet. For sekundærbolig utgjør formuesverdien 100 % av beregnet eller dokumentert markedsverdi.
Reguleringsforhold
Reguleringsplaner på og under grunnen:
Bergenhus, gnr.165, bnr.574 mfl., Nøstegaten. Planid 64310000. Berøringsgrad 99,6%.
Reguleringsformål: Boligbebyggelse - blokkbebyggelse, gang og sykkelvei, torg, kjøreveg, gate med fortau, parkering undergrunn, teknisk infrastruktur, friluftsområde i sjø, annet friområde, kulturinstitusjon.
Hensynssoner: Båndlegging kulturminneloven, bevaring kulturmiljø.
Hensikten med planen er å transformere og revitalisere dagens område fra nærings- og kontorbebyggelse til et by- og boligområde med gode kvaliteter og god utnyttelse. Planen legger opp til større åpenhet ved at eldre kompakte bygg rives og erstattes av ny og mer oppdelt bygningsmasse. Det skal legges til rette for offentlig tilgjengelige byrom i form av sjøpromenade, torg, gatetun og gangarealer med mulig fremtidig forbindelse videre mot Dikkedokken og Georgernes verft. Dokken (o_SGG02), Bjørgeboden (BKB1) og Dokkhuset (BK1) skal bevares og skal tas særskilt hensyn til.
Reguleringsplanen har to plankart: Vertikalnivå 1 for anlegg under bakken og vertikalnivå 2 for anlegg på bakken.
Reguleringsplan under arbeid:
Bergenhus, gnr.165, bnr.556 mfl. Kulturkvarteret verftet, berøringsgrad 54%.
Dette er en plan som er tidlig i planprosess og således ikke godkjent pt. Planen gjelder områdene øst, nord og vest for Prosjektet Nøstet Sjøfront. Intensjonen med planinitiativet er å gjennomføre en planendring for Kjødehallene, Dikkedokken med tilhørende land- og sjøarealer samt en endelig fastsetting av arealformål for USF-Verftet fra industri til kulturformål.
Formålet med planendringen er å legge til rette for endring og ny bruk av Kjødehallene og Dikkedokken til en arena for konserter og kulturarrangementer. Dersom plan godkjennes kan det komme ny bebyggelse og ny bruk av bebyggelse som får innvirkning nærområdet.
Kommuneplan:
Kommuneplanens arealdel 2018 med planid 65270000.
Arealformål: Sentrumsformål, bruk og vern av sjø.
Hensynssoner: Historisk sentrum, trehusbebyggelse, luftkvalitet gul sone.
Båndlegging: Båndlagt etter lov om kulturminner.
Kommunedelplan:
Bergenhus kdp. Sentrum med planid 15780000.
Arealformål: Annet byggeområde, fotgjengerstrøk, vannaeral for almen flerbruk.
Godkjente tiltak i nærheten av eiendommen:
Det er diverse godkjente tiltak i nærområdet. Området er under utbygging og transformasjon. Se vedlagte plankart som viser planlagte bygg innenfor reguleringsplanområdet. Det er videre planlagt diverse bygg og endringer utenfor planområdet, bla. reguleringsplan under arbeid som beskrevet ovenfor.
Som det fremkommer av overnevnte informasjon og vedlagte plankart vil området bli utviklet og bebygget. Interessenter må sette seg grundig inn i vedlagte plankart som viser hvor bygg blir oppført med kotehøyder, byggenes utstrekning, offentlige kaiområder, m.m. Dette vil ha betydning for utsikt, innsyn, solforhold, o.l. Byggeprosessen vil skje trinnvis og det må påregnes byggeaktivitet med tilhørende konsekvenser også etter at man har flyttet inn de første trinnene av utbyggingen. Konferer megler for nærmere informasjon.
Beskrivelse av sameiet
Forretningsfører
Selger har inngått forretningsføreravtale med BOB. Forretningsfører vil innkalle seksjonseierne til et ekstraordinært årsmøte med blant annet valg av nytt styre i forkant av ferdigstillelse/ overtakelse. Avtalen gjelder frem til den blir sagt opp. Det er avtalt 6 mnd. gjensidig oppsigelses tid.
Byggene 1 - 5 er planlagt å bestå av 85 boligseksjoner, organisert i et eller flere eierseksjonssameier. Det legges i utgangspunktet opp til at bygg 5 skal bestå av ett sameiet og resten av et annet, dog vil utbygger se på hva som er mest hensiktsmessig.
Hver leilighet vil bli tildelt et eget seksjonsnummer. Sameiebrøk vil bli BRA-i hver enkel seksjon/ totalt BRA-i alle seksjoner.
I bygg 5 blir det gjesterom og treningsrom på plan 1, dette er kun forbehold beboerne i bygg 5 og kan ikke disponeres av eiere i andre bygg i prosjektet.
Arealene under grunnen i bygg 2, 6 og 7 er planlagt å bli etablert som en anleggseiendom, for nærmere informasjon vises det til beskrivelse av garasje -og bod anlegg ovenfor.
Selger forbeholder seg retten til å organisere prosjektet annerledes, herunder med flere eierseksjonssameier og eventuelt med flere eller færre seksjoner i sameie(ne).
Det er utarbeidet utkast til standard vedtekter for henholdsvis eierseksjonssameiet og arealene under grunnen som følger vedlagt. Slike blir bindende for kjøperne. Utbygger forbeholder seg retten til å endre vedtekter i forbindelse med fremdrift/behov tilknyttet prosjektet.
Det foreligger forslag til budsjett for eierseksjonssameiet, dette er estimert basert på dagens prisnivå på tjenester og ut ifra forventet omfang av forbruk. Man må påregne at dette vil bli justert før innflytning og etter at sameiet har vært i normal drift.
Selger har på vegne av sameiet anledning til å inngå bindende serviceavtaler som er nødvendige for drift av bygget. Det gjelder bl.a. for drift av heis, ventilasjon, sprinkleranlegg og andre tekniske installasjoner."
Da sameiet er planlagt med 85 seksjoner vil sameiet være regnskapspliktig, og sameiet skal registreres i foretaksregisteret.
Det gjøres oppmerksom på at man kun kan erverve 2 seksjoner i sameiet iht. lov om
eierseksjoner § 23.
Eierseksjonsloven kommer til anvendelse for eierseksjonssameiet og driften av dette.
Andre faste løpende kostnader
Se vedlagte prisliste for en oversikt over felleskostnader pr. leilighet.
Faste løpende kostnader
" Strøm og "vann til oppvarming" etter forbruk og nettleie
" Innbo forsikring
" Fellesutgifter - se prisliste for fellesutgifter pr. leilighet
" Kommunale avgifter og eiendomsskatt - se eget punkt for estimert størrelse
" Fellesutgifter parkeringsanlegg - estimert til kr. 600,- pr. mnd for dem som kjøper parkeringsplass
" Felleskostnad bodanlegg, kr. 100,- ( ink. i felleskostnader)
" Kostnad andre fellesfunksjoner dersom dette ikke er medtatt i budsjett og fellesutgift i det enkelte sameiet
Oppgjør
Kjøper er forpliktet til å betale kjøpesummen etter følgende betalingsplan:
Senest 10 dager etter at byggherre har varslet byggestart: 10 % av kjøpesum forutsatt at det er stillet § 12 garanti.
Før overtagelse: Resterende del av kjøpesum + omkostninger og eventuelle tilvalg/endringer.
Merk at dersom man kjøper som AS: 20% i forskudd.
Finansiering
Kontakt megler for avklaring av finansielle forhold, herunder lån til kjøp av eiendom. Privatmegleren har avtale med Nordea om formidling av lån og andre finansielle tjenester. Privatmegleren mottar godtgjørelse for dette.
Annen nyttig informasjon
Se salgsoppgave del 2 som er viktig informasjon med vedlegg ( Vedleggshefte)
Adgang til utleie
Boligene vil i sin helhet kunne leies ut til boligformål. Utleie skal meldes til forretningsfører.
Boligen kan fritt leies ut i henhold til bestemmelsene i eierseksjonsloven og eventuelt vedtektene, dvs. utleie med varighet på over 30 sammenhengende dager. Kortidsutleie av hele boligseksjonen i mer enn 90 døgn er ikke tillatt. Med korttidsutleie menes utleie i inntil 30 døgn. Grensen på 90 døgn kan fravikes i vedtektene og kan i så fall settes til mellom 60 og 120 døgn. Slik beslutning krever et flertall på minst to tredjedeler av de avgitte stemmene på årsmøte.
Parkeringsplasser kan kun leies ut til andre boligeiere innenfor prosjektet Nøstet Sjøfront. Boder kan kun leies ut til andre boligeiere i samme eierseksjonssameie.
Sikkerhetsstillelse
Alle eiendomsmeglingsforetak har lovpålagt forsikring av klientmidler begrenset oppad til kr 45 mill. Enkeltsaker er forsikret inntil kr 15 mill. Dersom kjøpers låneinstitusjon krever tilleggsforsikring ved omsetning over 15 millioner, må kjøper selv eller dennes låneinstitusjon dekke utgiftene forbundet med dette.
Planlagt overtagelse
Boligene planlegges ferdigstilt anslagsvis i perioden mellom Q4 2028 - Q1 2029
Forkjøpsrett
Det er ikke forkjøpsrett på boligene i sameiet Nøstet Sjøfront 2
Solgt ihht bustadoppføringsloven
Boligene selges i henhold til Bustadoppføringslova som regulerer kjøpers (forbrukers) rettigheter og plikter ved avtale om oppføring av bolig og kjøp av fast eiendom der bygningen ikke er fullført når avtalen inngås. Ved salg til aksjeselskap legges Avhendingslovens bestemmelser til grunn. For øvrig gjelder Lov om eierseksjoner for eierseksjonssameiet og driften av dette.
Garantier
Det stilles garantier i henhold til Bustadoppføringslovas bestemmelser. Garanti etter § 12 vil bli stilt i forbindelse med avtaleinngåelse. Garantien skal være pålydende 3% av kjøpesummen i byggetiden og 5% i 5 år etter overlevering av boligene til kjøper. Garanti etter § 47 forutsettes stilt om selger ønsker utbetalt forskudd/delinnbetaling/sluttoppgjør før hjemmelsovergang. Eventuelle påkrevde endringer av garantier ved eventuelle videresalg/transporter utføres ikke og bekostes ikke av selger.
Forsikring
Frem til overtagelse vil eiendommen være forsikret av selger. Etter overtagelse vil eiendommen forsikres gjennom sameiets fellesforsikring. Kjøper må selv besørge innboforsikring og forsikring av eventuelle særskilte påkostninger.
Budgiving
Boligene selges til fastpris. Merk! Egne regler for salgsstart.
Alle kjøpetilbud på eiendommen skal være skriftlig og sendes meglerforetaket pr. mail, sms eller via vår "gi bud"-knapp som ligger på prosjektets hjemmeside.
Som budgiver hos Privatmegleren kan du kreve budjournal fremlagt så snart handel er gjennomført. Innhold i budjournal er lovregulert, og innebærer at budgivere må akseptere at opplysninger om budet kan bli fremlagt for selger, kjøper og øvrige budgivere. Budgiver som ikke blir kjøper, kan kreve kopi av anonymisert budjournal.
Lov om hvitvasking
Megler er underlagt lov om hvitvasking som innebærer plikt til å melde ifra til Økokrim om mistenkelige transaksjoner
Nærområdet

PrivatMegleren Vikebø & Jørgensen Nybygg
Annonseinformasjon
| FINN-kode | 454057807 |
|---|---|
| Sist endret | 06. apr. 2026 11:18 |
| Referanse | 194230268 |
Annonsene kan være mangelfulle i forhold til lovpålagt opplysningsplikt. Før bindende avtale inngås oppfordres interessenter til å innhente komplett informasjon fra meglerforetaket, selger eller utleier.