Bildegalleri

Plantegning

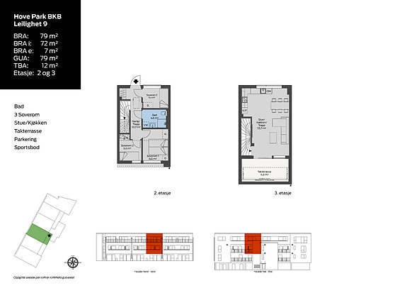
Hove Park BKB

Leilighet Hove Park BKB

Prisantydning5 150 000 kr
Totalpris
5 170 270 kr
Omkostninger
20 270 kr
  • Planlegging

    Ferdig prosjektert!

  • Salgsstart

    Salget er i gang!

  • Byggestart

    Vi bygger uansett!

  • Overtakelse

    20.12.2026!

Nøkkelinfo

Boligtype
Leilighet
Etasje
2
Soverom
3
Rom
4
Internt bruksareal
72 m² (BRA-i)
Bruksareal
79 m²
Eksternt bruksareal
7 m² (BRA-e)
Balkong/Terrasse
12 m² (TBA)

Les mer om bruksareal her

Fasiliteter

Balkong/Terrasse
Garasje/P-plass
Turterreng

Visning

tirsdag, 10. mars
08:00 – 20:00
OBS! Visning blir kun avholdt ved påmeldte visningsdeltakere. Du må altså kontakte oss for å booke tid, send oss gjerne en melding over eller e-post med navn, telefonnummer og hva du er interessert i. Vi tar kontakt snarest for å avtale tidspunkt.

Beskrivelse

Adresse

Hove Park BKB Leilighet 9
4320 Sandnes
2. etasje

Matrikkel

Gnr. 44 bnr. 391 i Sandnes kommune

Alt på ett plan eller to etasjer og takterrasse!

LEILIGHET 1-6: ALT PÅ ETT PLAN
På bakkeplan ligger seks leiligheter. Her får du alt på ett plan, og du kan velge mellom ett eller to soverom. De to endeleilighetene, 1 og 6, har to soverom. De er også størst i areal, henholdsvis 47 og 51 kvadrat. Leilighet 2-5 er alle 38 kvadrat og har ett soverom. Stue og kjøkken i åpen løsning, inngang fra den felles svalgangen og utgang fra stua til den private uteplassen. Praktisk og kjekt!

LEILIGHET 7-12: TO ETASJER OG TAKTERRASSE
Leilighet 7-12 er for deg som vil ha litt større plass, fra 78 til 101 kvadrat. Her kan du nesten se for deg at du bor i et rekkehus - bare uten plenklipping og husmaling. Disse leilighetene er nemlig på to etasjer. I første er inngangen, med entreen og badet like innenfor. Badet og soveromsfløyen og to eller tre soverom ligger også her. I andre etasje har du stue og kjøkken i åpen løsning med utgang til takterrasse.

Her får du:
- En fast parkeringsplass
- Bod i underetasje
- Heis
- Kjekke uteplasser
- 1 til 3 soverom
- Fint kjøkken i nordisk design fra JKE
- Gode planløsninger
- Baderom flislagt på gulv og i dusjnisje
- Tre stavs eik hvitpigmentert parkett i alle tørre rom.
- Elektriske varmekabler i våtrom
- Eget balansert ventilasjonsanlegg med varmegjenvinning i hver boenhet.

For mer informasjon og komplett leveranse er det bare å ta kontakt med oss!

Ser frem til å høre fra deg.

Velkommen til Hove Park!

Besøkte du noen gang fugleparken på Hove? Da vet du hvor du skal kjøpe ny bolig. Der det for noen år siden flakset fasaner og papegøyer, bygger vi nå reder for mennesker.

I Hove Park er det planlagt rundt 231 boliger, en fin blanding av leiligheter i blokk, vertikaldelte boliger, rekkehus og eneboliger i rekke. Gode fellesområder inne og ute, med verksted, selskapslokale og gjestehybler. Hove Park er den siste store utbyggingen i dette populære området, så pass på at du bruker muligheten!

Hove Park ligger tett på etablert bebyggelse. Det betyr at mye av det du trenger mest allerede fins i nabolaget. Hverdagslivet blir enklere. Barnehager og skoler er på plass. Flere dagligvarebutikker ligger bare en kjapp gåtur hjemmefra. Den gode lukten kommer sivende fra et bakeri i nærheten. Alt av byggevarer er lett tilgjengelig. Når du skal pynte terrassen med hortensia eller margeritter, kan du skryte av å ha handlet svært kortreiste blomster.

Skal du på tur eller trening, starter turen på egen trapp. Stokkelandsvatnet er en perle. Den ivrige turgåer fortsetter gjerne til Bogafjell, Melshei eller helt til arboretet. Andre nøyer seg med nydelig promenade gjennom Sandvedparken mot trivelige Sandnes. Det er blitt så fint i sentrum, rundt Vågen og på Ruten. Og good old Langgadå er like hyggelig som den alltid har vært.

Ta turen og opplev området!

Prisantydning

5 150 000,-

Solgt ihht. bustadoppføringsloven

Eiendommen selges ihht bustadoppføringsloven og dens bestemmelser om garanti og sikring av innbetalte midler.

Overtagelse

20.12.2026

Nærområdet

Annonseinformasjon

FINN-kode453613868
Sist endret03. mars 2026 14:07
Referanse2260098

Rapporter annonse

Annonsene kan være mangelfulle i forhold til lovpålagt opplysningsplikt. Før bindende avtale inngås oppfordres interessenter til å innhente komplett informasjon fra meglerforetaket, selger eller utleier.