Bildegalleri
Sentrumshagene Hus C
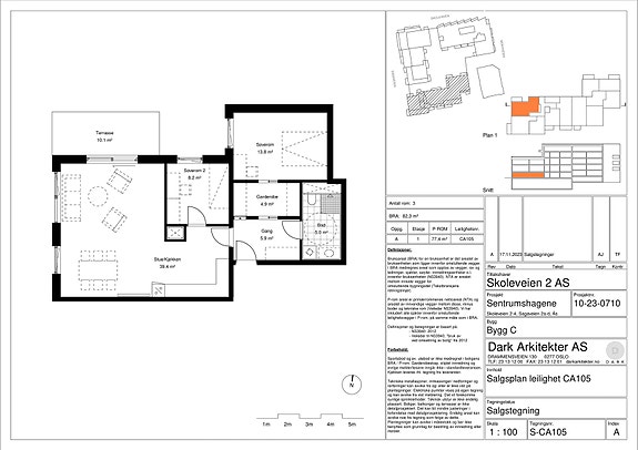
CA105
Prosjektets status
Planlegging
-
Salgsstart
-
Byggestart
Ferdigstilt
Overtakelse
Innflyttingsklart
Nøkkelinfo
- Boligtype
- Leilighet
- Etasje
- 1
- Soverom
- 2
- Rom
- 3
- Internt bruksareal
- 82 m² (BRA-i)
- Bruksareal
- 87 m²
- Eksternt bruksareal
- 5 m² (BRA-e)
- Balkong/Terrasse
- 10 m² (TBA)
Visning
Beskrivelse
Nøkkelinformasjon
Selger/Utbygger
Skoleveien 2 AS
Eierform
Eierseksjon
Etasje
1
Byggeår
Ukjent
Arealer og fordeling per etasje
Totalt BRA 87,3 kvm består av:
- BRA-i (internt bruksareal): 82,3 kvm
- BRA-b (innglasset balkong): kvm
- BRA-e (eksternt bruksareal): 5,0 kvm
I tillegg:
- TBA (terrasse-/balkongareal): 10,9 kvm
Det totale bruksarealet fordeler seg som følger:
1. etasje inneholder
- BRA: xx kvm
- BRA-i: xx kvm
- BRA-b: xx kvm
2. etasje inneholder
- BRA: xx kvm
- BRA-i: xx kvm
- BRA-b: xx kvm
Garasje BRA xx kvm
Vedlagte plantegninger er ikke målbare, og oppgitte arealer er hentet fra vedlagt tilstandsrapport. Arealene er plassmålt og beregnet med utgangspunkt i NS 3940:2023.
Forretningsfører
Eiendom / Hage
Adkomst
Se vedlagt kartskisse på høyre side i annonsen. Ved å trykke på kartet får du enkelt tilgang til en spesifisert reiserute fra din startdestinasjon og til eiendommen. På visningsdagen vil det bli satt opp visningsskilt fra PrivatMegleren.
Bebyggelse
Oppvarming / Teknisk
Beboelsesrom uten varmekilde på visning, leveres ikke med varmekilde.
Tilstandsgrader (TG2 og TG3) hentet fra tilstandsrapporten
Sammendrag av tilstandsrapport
Selger har i forbindelse med salget innhentet en tilstandsrapport fra med dato: .
Rapporten er en teknisk gjennomgang av boligen og angir eventuelle byggetekniske avvik, samt kostnadsoverslag for eventuelle oppgraderinger. Tilstandsrapporten og selgers egenerklæring er en del av denne salgsoppgaven og må leses nøye av interessenter før det legges inn bud. Kjøper anses kjent med de opplysninger som tydelig gis i en offentlig godkjent tilstandsrapport, og kan følgelig ikke reklamere på belyste forhold. Vi vil gjøre spesielt oppmerksom på viktigheten av å lese igjennom rapportens TGIU (tilstandsgrad ikke undersøkt), samt TG2 og TG3 som angir avvik fra normal slitasje, høy alder, bygningsdel som må utbedres, og lignende. Det følgende er hentet fra den bygningssakkyndiges beskrivelse av boligen:
TGIU:
TG2:
TG3:
Tinglyste rettigheter og forpliktelser
Servitutter/rettigheter
Kommunen har legalpant som sikkerhet for betaling av kommunale avgifter. Legalpant er pant som følger av loven, og som ikke tinglyses. Legalpant følger derfor eiendommen ved salg. På eiendommen kan det være tinglyst erklæringer som f eks rett for kommunentil å vedlikeholde rørsystemer for vann- og kloakk. Disse erklæringene vil følge eiendommen ved salg. Kontakt megler for nærmere informasjon. Øvrige sameiere har panterett i seksjonen for krav mot sameieren som følge av sameieforholdet, jf. eierseksjonsloven § 31. Pantekravet kan ikke overstige 2G (Folketrygdens grunnbeløp). Sameiet kan vedtektsfeste ytterligere panterett for sameiet. Vedtektsfestet pant tinglyses i seksjonene.
Følgende tinglyste servitutter følger eiendommen ved overskjøting til ny hjemmelshaver:
Utskrift av heftelser kan fås ved henvendelse til megler. Kjøpers bank vil få prioritet etter disse. For servitutter eldre enn fradelingsdato og eventuelle arealoppføringer som kan ha betydning for denne matrikkelenhet henvises det til avgivereiendommen. Ta kontakt med megler for mer informasjon.
Offentlige forhold
Vei / Vann / Avløp
Vei:
Vann:
Avløp:
Ferdigattest eller midl. brukstillatelse
Ferdigattest er utstedt:
Midlertidig brukstillatelse er utstedt:
Det foreligger godkjente og byggemeldte tegninger i kommunens arkiver på boligen og (garasjen). Når det gjelder boligen er det noe avvik fra disse: (påfør event. endringer)
Ferdigattest utstedes ikke lenger for tiltak det er søkt om før 01.01.1998, jf. plan og bygningsloven § 21-10 femte ledd.
Formuesverdi
Formuesverdien som primærbolig er kr 0,00 pr. , og som sekundærbolig kr 0,00 pr. .
Energimerking
Boligen/fritidsboligen er energimerket med oppvarmingskarakter og energikarakter Ingen.
Se fullstendig energiattest fra selger som vedlegg til salgsoppgave. Megler har ikke ansvar for informasjon som følger av energiattesten.
Diverse
Sikkerhetsstillelse
Alle eiendomsmeglingsforetak har lovpålagt forsikring av klientmidler begrenset oppad til kr 45 mill. Enkeltsaker er forsikret inntil kr 15 mill. Dersom kjøpers låneinstitusjon krever tilleggsforsikring ved omsetning over 15 millioner, må kjøper selv eller dennes låneinstitusjon dekke utgiftene forbundet med dette.
Øvrige kjøpsforhold
Selgers garantiplikt
Selger har plikt til å stille garanti iht. avhendingsloven § 2-11 dersom avtaleinngåelsen skjer i løpet av en periode på seks måneder etter fysisk ferdigstillelse av arbeidene på eiendommen. Garantiplikten løper i dette tilfellet til [sett inn dato]. Dersom avtalen inngås etter dette tidspunktet, har selger ingen garantiplikt.
Hvis kjøperen ikke anses for å være forbruker i denne avtalen, har selger heller ingen garantiplikt.
Garantien skal lyde på 5 % av vederlaget (kjøpesummen) og gjelde i minst fem år fra overtagelsen. Garantien kan lyde på 3 % av vederlaget i tidsrommet fra avtaleinngåelsen (normalt tidspunktet når budet aksepteres) og frem til bruksovertagelsen av eiendommen.
Selger har inngått garantiavtale med [sett inn garantistens foretaksnavn].
Megler må sjekke:
I tillegg til ovennevnte garanti, er det utstedt en garanti etter bustadoppføringsloven § 12 som følger eiendommen.
Boligkjøperforsikring
I produktark om boligkjøperforsikring bak i salgsoppgaven, finner du informasjon samt priser på produktene.
Overtagelse
Etter nærmere avtale. Angi ønsket overtagelse i forbindelse med budgivning.
Forsikring
Frem til overtagelse vil eiendommen være forsikret av selger. Det er kjøpers ansvar å påse at eiendommen er fullverdiforsikret etter overtagelse.
Lovanvendelse
Eiendommen selges etter reglene i avhendingsloven. Eiendommen skal overleveres kjøper i tråd med det som er avtalt. Det er viktig at kjøper setter seg grundig inn i alle salgsdokumentene, herunder salgsoppgave, tilstandsrapport og selgers egenerklæring. Kjøper anses kjent med forhold som er tydelig beskrevet i salgsdokumentene. Forhold som er beskrevet i salgsdokumentene kan ikke påberopes som mangler. Dette gjelder uavhengig av om kjøper har lest dokumentene. Alle interessenter oppfordres til å undersøke eiendommen nøye, gjerne sammen med fagkyndig før bud inngis. Kjøper som velger å kjøpe usett kan ikke gjøre gjeldende som mangel noe han burde blitt kjent med ved undersøkelsen.
Hvis eiendommen ikke er i samsvar med det kjøperen må kunne forvente ut ifra alder, type og synlig tilstand, kan det være en mangel. Det samme gjelder hvis det er holdt tilbake eller gitt uriktige opplysninger om eiendommen. Dette gjelder likevel bare dersom man kan gå ut i fra at det virket inn på avtalen at opplysningen ikke ble gitt eller at feil opplysninger ikke ble rettet i tide på en tydelig måte. En bolig som har blitt brukt i en viss tid, har vanligvis blitt utsatt for slitasje og skader kan ha oppstått. Slik bruksslitasje må kjøper regne med, og det kan avdekkes enkelte forhold etter overtakelse som nødvendiggjør utbedringer. Normal slitasje og skader som nødvendiggjør utbedring, er innenfor hva kjøper må forvente og vil ikke utgjøre en mangel. Boligen kan ha en mangel dersom det er avvik mellom opplyst og faktisk areal, forutsatt at avviket er på 2% eller mer og minimum 1 kvm.
Ved beregning av et eventuelt prisavslag eller erstatning må kjøper selv dekke tap/kostnader opptil et beløp på kr 10 000 (egenandel). Dersom kjøper ikke er forbruker selges eiendommen «som den er», og selgers ansvar er da begrenset jf. avhl. § 3-9, 1. ledd 2. pktm. Avhendingsloven § 3-3 (2) fravikes, og hvorvidt en innendørs arealsvikt karakteriseres som en mangel vurderes etter avhendingsloven § 3-8. Informasjon om kjøpers undersøkelsesplikt, herunder oppfordringen om å undersøke eiendommen nøye, gjelder også for kjøpere som ikke anses som forbrukere. Med forbrukerkjøp menes kjøp av eiendom når kjøperen er en fysisk person som ikke hovedsakelig handler som ledd i næringsvirksomhet.
Meglers vederlag og utlegg
Provisjonsmodell fra prosjektet:
Fastpris kr 62 500 inkl. mva
Oppgjør: 8 125,00
Dersom eiendommen ikke blir solgt skal selger betale et rimelig honorar stort kr xx + dokumenterte utlegg og tillegg med til sammen kr xx.
Alle beløpene er inkl. mva.
Nærområdet

PrivatMegleren Nyeboliger Oslo
Annonseinformasjon
| FINN-kode | 451461683 |
|---|---|
| Sist endret | 17. feb. 2026 10:19 |
| Referanse | 1304260021 |
Annonsene kan være mangelfulle i forhold til lovpålagt opplysningsplikt. Før bindende avtale inngås oppfordres interessenter til å innhente komplett informasjon fra meglerforetaket, selger eller utleier.