Bildegalleri
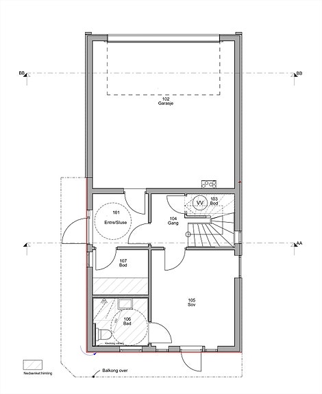
Hus B - 1. etasje
Nordstrand/Karlsrud
Kåres vei 26
Kåres vei 26A
Prisantydning15 950 000 kr
Prosjektets status
Planlegging
Ferdig
Salgsstart
2. kvartal 2025
Byggestart
1. kvartal 2026
Overtakelse
4. kvartal 2026
Nøkkelinfo
- Boligtype
- Enebolig
- Soverom
- 4
- Internt bruksareal
- 191 m² (BRA-i)
- Bruksareal
- 191 m²
Fasiliteter
Balkong/Terrasse
Bredbåndstilknytning
Garasje/P-plass
Kabel-TV
Peis/Ildsted
Utsikt
Turterreng
Beskrivelse
Ansvarlig megler
Nina Fjellheim
NB: Knappen for å vise hele beskrivelsen har kun en visuell effekt.
NB: Knappen for å vise hele beskrivelsen har kun en visuell effekt.
Nyttige lenker
Nærområdet
Nordvik Nordstrand
Vi vet hva det er verdt
Annonseinformasjon
| FINN-kode | 451386317 |
|---|---|
| Sist endret | 16. feb. 2026 16:03 |
| Referanse | 44-0071/25 |
Annonsene kan være mangelfulle i forhold til lovpålagt opplysningsplikt. Før bindende avtale inngås oppfordres interessenter til å innhente komplett informasjon fra meglerforetaket, selger eller utleier.