Bildegalleri
A 302.jpg
Sæter Nordstrand
UTSIKTEN SÆTER
Nytt boligprosjekt på Sæter! 19 store leiligheter med vakker fjordutsikt. Meld interesse!
Prisantydning21 000 000 kr
Prosjektets status
Planlegging
Våren 24
Salgsstart
Sommeren 24
Byggestart
Januar 25
Overtakelse
15.06.26-15.09.26
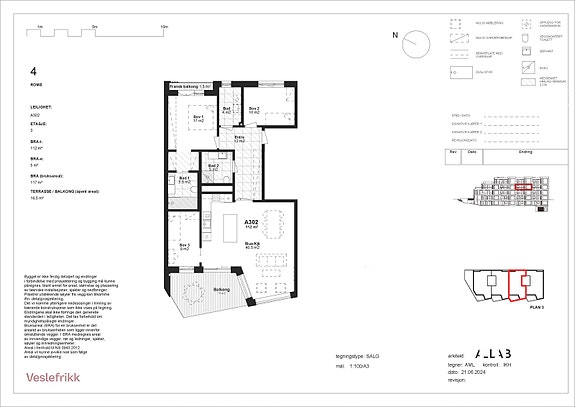
Nøkkelinfo
- Boligtype
- Leilighet
- Etasje
- 3
- Soverom
- 3
- Rom
- 4
- Internt bruksareal
- 112 m² (BRA-i)
- Bruksareal
- 117 m²
- Eksternt bruksareal
- 5 m² (BRA-e)
- Balkong/Terrasse
- 16 m² (TBA)
Visning
Utsikten er under bygging. Ta kontakt med megler dersom du ønsker å komme på en byggeplassvisning.
VisningspåmeldingBeskrivelse
Ansvarlig megler
Finn Bragnes
NB: Knappen for å vise hele beskrivelsen har kun en visuell effekt.
NB: Knappen for å vise hele beskrivelsen har kun en visuell effekt.
Nyttige lenker
Nærområdet
Sem & Johnsen
Boliger utenom det vanlige
Annonseinformasjon
| FINN-kode | 450877962 |
|---|---|
| Sist endret | 25. feb. 2026 14:18 |
| Referanse | 21-24-0571 |
Annonsene kan være mangelfulle i forhold til lovpålagt opplysningsplikt. Før bindende avtale inngås oppfordres interessenter til å innhente komplett informasjon fra meglerforetaket, selger eller utleier.