Bildegalleri
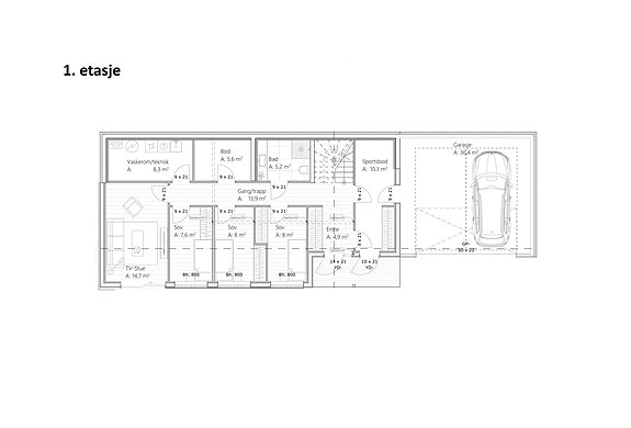
Plantegning 1 etasje
Lysehagen / Lysekloster
Sperrevikhaugane 95
Lekker moderne enebolig
Prisantydning12 990 000 kr
Prosjektets status
Planlegging
Ferdig
Salgsstart
I salg!
Byggestart
Antatt 1-2. kvartal 2026
Overtakelse
Antatt 1-2. kvartal 2027
Nøkkelinfo
- Boligtype
- Enebolig
- Etasje
- 1
- Soverom
- 4
- Rom
- 5
- Internt bruksareal
- 206 m² (BRA-i)
- Bruksareal
- 206 m²
Fasiliteter
Balkong/Terrasse
Garasje/P-plass
Utsikt
Turterreng
Beskrivelse
Mer informasjon kommer
NB: Knappen for å vise hele beskrivelsen har kun en visuell effekt.
NB: Knappen for å vise hele beskrivelsen har kun en visuell effekt.
Nærområdet
Eiendomsmegler Norge Nybygg Bergen
Best der du bor
Annonseinformasjon
| FINN-kode | 450577838 |
|---|---|
| Sist endret | 11. feb. 2026 10:16 |
| Referanse | 81260036 |
Annonsene kan være mangelfulle i forhold til lovpålagt opplysningsplikt. Før bindende avtale inngås oppfordres interessenter til å innhente komplett informasjon fra meglerforetaket, selger eller utleier.