Bildegalleri

Lillehammer

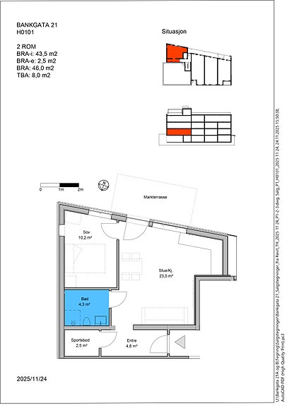
Bankgata 21

3 solgte! selveierleiligheter i Lillehammer sentrum

Prisantydning2 950 000 kr
Totalpris
3 024 840 kr
Omkostninger
74 840 kr
  • Planlegging

    Rammetillatelse er gitt

  • Salgsstart

    1. kvartal 2026

  • Byggestart

    2. kvartal 2026

  • Overtakelse

    3. kvartal 2027

Nøkkelinfo

Boligtype
Leilighet
Soverom
1
Internt bruksareal
43 m² (BRA-i)
Bruksareal
46 m²
Eksternt bruksareal
2 m² (BRA-e)

Les mer om bruksareal her

Visning

Ta kontakt for å avtale visning.

Nærområdet

Annonseinformasjon

FINN-kode450224335
Sist endret09. feb. 2026 17:25

Rapporter annonse

Annonsene kan være mangelfulle i forhold til lovpålagt opplysningsplikt. Før bindende avtale inngås oppfordres interessenter til å innhente komplett informasjon fra meglerforetaket, selger eller utleier.