Bildegalleri

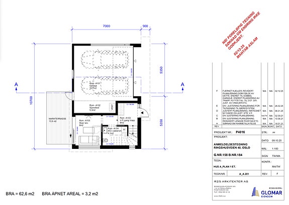
1.etasje, 62,6kvm: Stue/soverom med utgang til markterrasse på 13,9kvm., wc/vaskerom, vindfang/gang og trapperom. Dobbelgarasje og sportsbod.

Ringshusveien 40-48

Hus A

Prisantydning14 500 000 kr
Totalpris
14 635 445 kr
Omkostninger
135 445 kr
  • Planlegging

    Februar 2025

  • Salgsstart

    Mars 2025

  • Byggestart

    Februar 2026

  • Overtakelse

    2027

Nøkkelinfo

Boligtype
Enebolig
Soverom
4
Rom
5
Bruksareal
164 m²
Balkong/Terrasse
23 m² (TBA)

Les mer om bruksareal her

Fasiliteter

Barnevennlig
Balkong/Terrasse
Garasje/P-plass
Kabel-TV
Offentlig vann/kloakk
Parkett
Peis/Ildsted
Turterreng
Utsikt
Aircondition
Sentralt
Bredbåndstilknytning
Moderne
Rolig
Lademulighet
Balansert ventilasjon

Visning

Ta kontakt for å avtale visning.Visningspåmelding

Beskrivelse

Innhold

1.etasje, 62,6kvm:
Stue/soverom med utgang til markterrasse på 13,9kvm., wc/vaskerom, vindfang/gang og trapperom. Dobbelgarasje og sportsbod.

2.etasje, 63kvm:
Stue, spisestue, kjøkken, soverom, bad og trapperom.

3.etasje, 38,5kvm.:
Trapperom/gang med utgang til altan på 9,2kvm., bad og 2 soverom.

Oppvarming

El-kabler i flislagte gulv (entre, bad og vaskerom).
Panelovner med termostat i oppholdsrom.
Tysk design vedovn modell Shiedel Sirius 3 med stålpipe.

Adkomst

Adkomstvei og gårdsplass asfalteres. Inngangsvei til hver enkelt bolig vil få drensstein. Kantstein legges langs begge kanter av innkjøring til garasjeport. Gangarealer inn mot hoveddør leveres med drensstein.

Felles bilveier asfalteres.

Parkeringsforhold

2 garasjeplasser.

Beskrivelse (type bolig)

Enebolig over 3 plan.

Faste løpende utgifter

Kommunale avgifter

Kommunale avgifter er inkludert i felleskostnadene.

I 2016 ble det innført eiendomsskatt på boliger og annen fast eiendom, slik som ubebygde tomter, fritidsboliger mv. For boliger og fritidsboliger er eiendomsskatten 3 promille av eiendomsskattegrunnlaget minus bunnfradraget. Bunnfradraget for 2020 er på inntil 4 millioner kroner.

Sentrale lover

Kjøpet reguleres av Lov om avtale med forbrukar om oppføring av ny bustad m.m. (bustadoppføringslova) 13. juni 1997 nr. 43, i tilfeller hvor Selger er profesjonell og Kjøper er forbruker. Dette innebærer blant annet at Kjøper har krav på garantier iht. bustadoppføringslova § 12.

I tilfeller hvor Kjøper er profesjonell iht. bustadoppføringslova, dvs. gjør kjøpet som ledd i næringsvirksomhet, kan Selger kreve at avtalen reguleres av avhendingslova eller etter bustadoppføringslova hvor §§12, 18 og 52-54 ikke kommer til anvendelse.

Nærområdet

Annonseinformasjon

FINN-kode449237820
Sist endret02. feb. 2026 16:44
ReferanseR-2-25-10001

Rapporter annonse

Annonsene kan være mangelfulle i forhold til lovpålagt opplysningsplikt. Før bindende avtale inngås oppfordres interessenter til å innhente komplett informasjon fra meglerforetaket, selger eller utleier.