Bildegalleri

E3 1

ASPER22 | KLØFTA

Rekkehus Asper Kløfta

Prisantydning5 900 000 kr
Totalpris
5 933 450 kr
Omkostninger
33 450 kr
  • Planlegging

    -

  • Salgsstart

    Januar 2026

  • Byggestart

    Vår/sommer 2026

  • Overtakelse

    Q4 2026

Nøkkelinfo

Boligtype
Rekkehus
Soverom
4
Rom
5
Internt bruksareal
109 m² (BRA-i)
Bruksareal
114 m²
Eksternt bruksareal
5 m² (BRA-e)
Balkong/Terrasse
16 m² (TBA)

Les mer om bruksareal her

Visning

søndag, 01. februar
12:00 – 13:30
tirsdag, 03. februar
16:30 – 18:30
Visningspåmelding

Beskrivelse

Beliggenhet

Asper22 er plassert sentralt og oversiktlig i et etablert og familievennlig boområde på Kløfta. Prosjektet er utviklet med barnefamilier i fokus, der trygge rammer, kort avstand til daglige gjøremål og et levende nærmiljø legger til rette for gode hverdager for hele familien. Kløfta er et tettsted med ca. 8 600 innbyggere (01.01.25) i Ullensaker kommune og har en sentral beliggenhet med god kommunikasjon retning Oslo og Lillestrøm samt Oslo Lufthavn i den andre retningen.


På Kløfta har man et variert tilbud for barnefamilier, med flere barnehager og skoler i gangavstand, noe som gjør hverdagen trygg, effektiv og forutsigbar for barnefamilier. Bakke skole er nærmeste barneskole og har store uteområder med balløkke, skolehage og skogsområder der barna kan utforske og leke i sikre omgivelser. Når barna blir eldre, er det heller ikke lange veien til Vesong ungdomsskole, begge i kort gangavstand. I tilknytning til skolene og like ved prosjektet ligger også Kløftahallen samt Bakkedalen med skatepark, friidrettsanlegg og idrett- og aktivitetspark. Bakkedalen har alt fra gang- sykkelvei til rom for benker, grillplasser, pergolaer, parkour og frodig regnbed.

Hverdagslogistikken blir også enklere med flere barnehager i kort trilleavstand, og Kløfta tilbyr både kommunale og private alternativer. Under 3 minutters gange til Norlandia Mamma Mia friskusbarnehage og Hoppensprett Solbakken barnehage fra prosjektet.

Videregående skole finner man på Jessheim, en rask busstur unna. Skolen tilbyr et bredt spekter av utdanningsprogrammer som studiespesialisering, yrkesfaglige programmer, kunst/design/arkitektur, musikk/dans/drama m.m. Her har man skoler i alle trinn, gode barnehager og et flust av fritidsaktiviteter i eget nærmiljø.

Fritidstilbudet på Kløfta har vokst i takt med befolkningsøkningen, og barn og ungdom har et bredt utvalg av aktiviteter å velge mellom. Det lokale idrettslaget, Kløfta IL, tilbyr aktiviteter som fotball, håndball, basket, innebandy, tennis, sykkel, e-sport og allidrett. - Et mangfoldig tilbud for alle interesser. For voksne finnes treningssentre, yogastudioer og PT-tilbud.

Dette er stedet for alle som er glade i å ha naturen og sportslige aktiviteter rett i nærheten! Om sommeren kan man sykle eller gå på merkede løyper i alle retninger inne i marka. Her kan man bade i deilige innsjøer, padle med kano, fiske, eller gå på historiske stier. Om høsten kan man plukke både blåbær, tyttebær og villbringebær. Gjennom vinterhalvåret kan man ta skiturer i flotte preparerte løyper. Nyt naturen hele året!

Lily Country Club er et førsteklasses opplevelsessenter og hotell i landlige omgivelser på Kløfta. Her kombineres hotellopphold med spa, matopplevelser, aktiviteter og naturopplevelser - alt i rolige omgivelser ved golfbane og grøntområder. Miklagard Golfklubb er en av Norges største golfbaner og har blant annet internasjonalt anerkjent 18-hulls bane, Driving range med både gressutslag og flere treningsgreener, putting- og nærspillområder, TrackMan-svingstudio og Custom fitting-tjeneste, for å nevne noe.

Kløfta er et trafikknutepunkt i regionen og gir svært gode muligheter til å pendle - enten du jobber i Oslo, på Gardermoen eller i nabokommunene. Det er kort vei ut til E6-aksen, og i kort gangavstand ligger Kløfta togstasjon med hyppige avganger retning Oslo eller Gardermoen i den andre retningen. Her kan du slappe av med en bok, eller høre på musikk, mens du kommer deg inn til Oslo på bare 30 minutter, eller 5 minutter til Gardermoen. Det finnes også flere busslinjer som dekker både lokaltrafikk og ekspressforbindelser. Bussene stopper nær boligområdet, og gjør at også ungdom enkelt kan reise til og fra aktiviteter, skole eller venner uten å være avhengig av bilen.

Kløfta har et bredt servicetilbud som gjør handle- og hverdagsbehov enkelt å løse uten lange reiser. Like i nærheten ligger Romerikssenteret som er en komplett handledestinasjon med en god blanding av kjente kjeder og lokale aktører som gir et variert tilbud. Her finner du blant annet apotek, frisører, dyrebutikk, blomster, gullsmed, klær og sko, alt til hus og hjem, caféer og restauranter og Vinmonopol. For den daglige handelen ligger flere dagligvarebutikker i og rundt sentrumskjernen som Coop, Rema 1000, Kløfta Frukt & Grønt og Kiwi. Sistnevnte ligger like over veien sammen med Europris.

Bebyggelse

Variert bebyggelse med rekkehus, tomannsboliger, eneboliger og blokkbebyggelse av nyere dato.

Adkomst

Se vedlagt kartskisse i annonsen. Ved å trykke på kartet får du enkelt tilgang til en spesifisert reiserute fra ønsket startdestinasjon til den aktuelle visningsboligen. Det vil også bli skiltet med visningsskilter fra Proaktiv Eiendomsmegling til annonserte visninger. Velkommen til visning!

Orientering

Prosjektet består av 22 boligseksjoner, carport/parkering og fellesarealer. Utbygger for prosjektet er Aspbo AS org.nr.: 935213916. Ansvarlig arkitekt er HRTB A/S Arkitekter MNAL. Prosjektbeskrivelsen redegjør for hvilke materialer, arbeider og tjenester som inngår i leveransen, samt planlagt organisering av boliger, fellesarealer og garasje/parkering.

Trinn 1 består av husene E og B.

Eiendommens adresse

Guri Øverbys veg, 2040 Kløfta
Endelig adresse tildeles av kommunen.

Tomten

Prosjektet omfatter i dag Gnr. 29 bnr. 1109 i Ullensaker kommune, 1110 og felles grøntdrag på gnr/bnr 29/1124. Seksjonsnr fastsettes i forbindelse med seksjonering. Hver bolig vil få opparbeidet hage iht utomhusplanen.

Tomtens areal utgjør ca kvm.

Byggemåte

KONSTRUKSJON
Boligtype B er beregnet på støpte vegger (bakvegg +side) og støpt plate underetasje. Boligtype E er beregnet på ringmur og støpt plate. Thermomur. Radonsikring iht gjeldende forskrifter. Undertak er regnet av 18 mm Hunton undertak med Skarpnes dobbeltkrum koksgrå betongtakstein uten belegg. Stigetrinn til pipe, takhatt for soil og radon, fuglelister og snøfangere. Takrenner og nødvendig beslag i sort utførelse.

Tak carport og sportsbod beregnet tekket med Isola selvbygger. Takene bygges med fall og leveres med takrenner og utvendig nedløp.
Pergola tak beregnet CU. Imp limtre.

Utvendig kledning er 19x98/123/148 mm dobbelfalset tett (stående låvekledning). Levegger kledd med samme type kledning. Kledningen er regnet som Møre Royal 2.0 RB 15 D Brown.

Glassrekkverk med toppmonterte stolper i sort aluminium, inkl. glassrekkverk på franske balkonger. Markterrasse og balkong beregnet CU-imp.
Terrassegulv CU-imp 28x120 terrassebord.

Etasjeskiller: 22 mm fuktbestandig gulvspon. Bjelkelag Kerto 48x350, HEB i bjelkelag. Glava Økonomi 200mm i bjelkelag. Alle plan regnet med fuktbestandige gulvsponplater.


SPORTSBOD
Støpt såle. Sportsbod leveres uisolert med 48x98mm bindingsverk.


VINDUER/ DØRER
NorDan-vinduer m/ 3 lags glass iht. tegning/vindusskjema og forskrifter. Ferdigbehandlet i NCS S 8500-N på innside og utside.
Vinduer og balkongdører leveres alu.beslått utvendig.
Hovedinngangsdør: Gilje hoveddør modell Herakles i NCS S 8500-N. FG godkjent las.
Sportsbod: Gilje Standard Basic i NCS S 8500-N
Innvendig: Swedoor Stable massiv glatt. Dørblad og karm malt standard hvit, NCS S0502-Y.


INNVENDIGE OVERFLATER
Gulv i stue, oppholdsrom, soverom samt gang leveres som Barlinek Parkett - 1s Eik Trivor str 4fas hvit mattlakkert 14x180x2200mm. Gulv i entre, bad og vaskerom leveres flislagt med termostatstyrte varmekabler i gulv. Fliser/sokkelflis til vaskerom er Carnaby Street Gray 30x30 og på bad er Beton Gray 30x60 på gulv og i dusjnisje. Vegger på bad/vaskerom utover dusjnisje leveres uten fliser.

Innvendige vegger med 48x98 mm reisverk, 100mm isolasjon og 13 mm gipsplate.
Alle rom bortsett fra vegger/himlinger i stue/kjøkken leveres i K2 utførelse. Stue/kjøkken i K3 utførelse. 2 farger er inkludert. Ytterligere farger/kontrastvegger er tilvalg.
I rom med estetisk klasse K2 kan overflater med sidelys kunne fremstå som ujevnt malebehandlet med skyggevirkninger på grunn av variasjoner i underliggende overflate. I rom med slepelys kan man forvente å se synlige skjøter. Dette gjelder også i rom hvor det er valgt estetisk klasse K3

Foringer: Hvitmalt furu. Listefritt rundt vinduer/ytterdører/balkongdører. Det leveres listefritt mot tak.
Karmlist: 12x58 slett furu karmlist, S 0502-Y
Fotlist: 12x58 slett furu fotlist, S 0502-Y
Synlige spikerhoder på alt listverk.


TAKHØYDE
Det leveres innvendig generell takhøyde på ca. 2,6 meter i første etasje og ca. 2,5 meter i underetasje og andre etasje, men det blir nedforet himling med lavere takhøyde i entré, gang, bod og bad/wc for fremføring av ventilasjon. I enkelte øvrige områder vil det også være behov for fremføring av teknisk anlegg under takhøyde på 2,5 meter.


TRAPPER
Modell Salvi fra Vegårshei Trappeverksted AS. Åpen trapp i furu. Vanger og rekke, hvitmalt NCS S0502-Y, trinn beislakkert i standard farge. Evt. stusstrinn medfører pristillegg.


KJØKKEN
HTH-innredning iht tegning. Som standard leveres kjøkkenmodell Stockholm i fargen MOCCA.
Selger har inkludert hvitevarepakke fra Siemens bestående av kombiskap, induksjonstopp 60cm, stekeovn og oppvaskmaskin. Slimline Crystal 1160 uttrekksventilator over kokesonen.
Kjøkkenarmatur Azur II Eco med avstenging i sort matt.
Automatisk lekkasjestopper og komfyrvakt monteres.


BAD / BAD/VASKEROM / TOALETTROM
Hustype E leveres med bad/vaskerom i 1.etasje og bad i 2.etasje
Hustype B leveres med bad/vaskerom i u.etasje, toalettrom i 1.etasje og bad i 2.etasje

Innredning bad 2.etasje:
HTH-innredning iht tegning. Som standard leveres baderomsinnredning i modell Stockholm i fargen MOCCA. Dobbel servant med 4 skuffer, Azur II eco servantbatteri i matt sort utførelse, to speil. Dusjvegger 80x80 med sort matt profil og Azur takdusjpakke i sort matt. Vegghengt toalett med innebygget sisterne i hvit farge av typen Villeroy & Boch O.Novo og hvit trykknapp.

Innredning bad/vaskerom Hustype E:
Høiax Expand 200L bereder, 1 opplegg for vaskemaskin, vegghengt skyllekar med Oras Oramix m/ skyllekartut. Aggregat for balansert ventilasjon, vannskap og vannmåler. Sluk i gulv
Vegghengt toalett med utenpåliggende sisterne i hvit farge av typen Villeroy & Boch O.Novo og hvit trykknapp. Vannskap og vannmåler.

Innredning bad/vaskerom Hustype B:
HTH-innredning iht tegning. Modell Stockholm med servant, Azur II eco servantbatteri i matt sort utførelse og speil over innredning. Dusjvegger 80x80 med sort matt profil og Azur takdusjpakke i sort matt. Vegghengt toalett med utenpåliggende sisterne i hvit farge av typen Villeroy & Boch O.Novo og hvit trykknapp.

Høiax Expand 200L bereder, 1 opplegg for vaskemaskin, vegghengt skyllekar med Oras Oramix m/ skyllekartut. Aggregat for balansert ventilasjon, vannskap og vannmåler. Sluk i gulv.

Toalettrom Hustype B:
HTH-innredning iht tegning. Modell Stockholm i fargen MOCCA. Enkel servant med 2 skuffer, Azur II eco servantbatteri i matt sort utførelse, speil over innredning. Vegghengt toalett med innebygd sisterne i hvit farge av typen Villeroy & Boch O.Novo og hvit trykknapp. Automatisk lekkasjestopper.

Fliser gulv vaskerom: Carnaby Street Gray 30x30
Fliser gulv baderom og dusjnisje: Beton Gray 30x60
Gulv toalettrom: Carnaby Street Gray 30x30


SANITÆR
Utvendig vannkran plasseres i/ved carport. Varmtvann i utekran kan leveres som tilvalg.
Vannmåler og vannskap plasseres på bad/vaskerom
200L varmtvannsbereder plasseres på bad/vaskerom


VENTILASJON
Balansert ventilasjon med varmegjenvinning. Leveres av Systemair type SAVE VTR 300/B i hvit utførelse. '
Grunnet fremføring ventilasjonsanlegg kan himlingshøyden i enkelte rom, eller deler av rom, avvike fra tegning.


OPPVARMING
Boligen leveres med balansert ventilasjon med varmegjenvinning. Alle boliger blir tilrettelagt med startboks i himling. Peisovn kan leveres som tilvalg fra Peisselskabet.
Varmekabler med termostat i entré, bad/vaskerom og bad. Øvrige rom leveres uten varmekilde.


ELEKTRO GENERELT
Utføres iht NEK-400-8-823
Utvendig leveres boligene med utelamper på fasaden som typen opp/ned i sort utførelse med Astrour.
På hustype B leveres det utelampe ved inngang, balkong og markterrasse.
På hustype E leveres det utelampe ved inngang og markterrasse.
Utvendig dobbeltstikk Hustype B: Inngang, balkong og markterrasse
Utvendig dobbeltstikk Hustype E: Inngang og markterrasse

Alle lysbrytere inne/ute leveres i sort utførelse.
Tomrør til elbil-lader i carport og elbil-lader kan leveres som tilvalg

Innvendig elektroleveranse iht romskjema.


UTOMHUS
Opparbeides iht landskapsplan. Adkomstvei er asfaltert. Carport leveres asfaltert og gangsti til boligen leveres med grusdekke. Hage tilhørende hver bolig leveres med ferdigplen og det plantes hekk som avgrensning mellom boligene. Ved enkelte boliger vil det også plantes hekk mellom boligene på fremsiden.

Det er etablert fellesløsning for renovasjon

Postkasse og husnummerskilt leveres av utbygger/husbygger.

Areal

- BRA-i (internt bruksareal): 109 kvm
- BRA-e (eksternt bruksareal): 5 kvm
- Totalt BRA: 114 kvm - 143 kvm

- TBA (terrasse-/balkongareal): 16,70 kvm

Boligtype E: 114 kvm BRA, 109 kvm BRA-i
Arealet fordeler seg som følger pr. etasje:
Første etasje:
- Totalt BRA: 59,5 m²
- BRA-i: 54,5 m²
- BRA-e: 5 m²

Andre etasje:
- Totalt BRA: 54,5 m²
- BRA-i: 54,5 m²

Boligtype B: 143 kvm BRA, 138 kvm BRA-i
Arealet fordeler seg som følger pr. etasje:
Første etasje:
- Totalt BRA: 51 m²
- BRA-i: 46 m²
- BRA-e: 5 m²

Andre etasje:
- Totalt BRA: 46 m²
- BRA-i: 46 m²

U.etasje:
- Totalt BRA: 46 m²
- BRA-i: 46 m²

Vedlagte plantegninger er ikke målbare, og oppgitte arealer er hentet fra vedlagte tegninger. Mindre avvik vil forekomme.

Areal

Boligenes arealer fremkommer av prislisten og av tegninger.
Arealberegningene er angitt i henhold til Veileder for NS3940. Arealet angis i BRA og P-rom.
P-rom: består vanligvis av oppholdsrom, soverom, kjøkken, entre/vindfang/gang, bad/dusjrom/toalett/vaskerom/badstu og rom for kommunikasjon inkl. trapp, mellom nevnte rom.
BRA: består i tillegg til p-rom vanligvis av boder, tekniske rom og garasje.

Alle arealer som er oppgitt i forbindelse med markedsføringen av prosjektet er beregnet basert på tegninger, er å betrakte som ca. areal, og det tas forbehold om mindre avvik fra det oppgitte. Arealet er gitt av utbygger og megler har ikke kontrollmålt arealene.

Standard

Boligene i Asper22 blir levert med en gjennomgående god standard på materialer og innredninger. Standardleveransen inneholder bl.a. 1-stavs eikeparkett, kjøkken med integrerte hvitevarer og ikke minst ferdig opparbeidet hage. I planleggingen av boligene er det vektlagt å finne frem til funksjonelle plan- og romløsninger som erfaringsmessig passer familier med barn i alle aldre. I Trinn 1 kan familien velge mellom to typer rekkehus; 109 kvm over 2-plan eller 138 kvm over 3-plan.

Begge boligtypene har meget gode planløsninger tilpasset familielivet. Boligene får solrike uteplasser og hageareal med plass til lek, moro og rekreasjon. Bilen kan komfortabelt parkeres i carport utenfor boligen, og sportsutstyret får plass i utvendig sportsbod.

Hvorfor kjøpe nytt i Asper22?
- 5 års garanti
- Lave vedlikeholdsutgifter i flere år fremover
- Ferdig opparbeidet hage med ferdigplen og hekk
- Mulighet til å tilpasse leveranse slik at du får det slik du vil
- Lave omkostninger ved kjøp
- God tid til å planlegge salg av egen bolig


HUSTYPE E
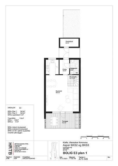
Dette er effektive og prisgunstige rekkehus på 110 kvm BRA-i fordelt over 2-plan. Inngangsetasjen består av entré, bad/vaskerom, stue og et tilbaketrukket kjøkken. Enkel adkomst fra stuen til markterrasse og egen hage. En liten, men samtidig veldig avgjørende detalj for romfølelsen er takhøyden er økt til ca. 260cm i denne etasjen. Annen etasje inneholder bad nr. 2 og fire soverom av god størrelse. Passer kanskje ekstra godt for par i etableringsfasen, familier med barn eller voksne par som fortsatt trenger plass, men ønsker mindre vedlikehold.

Entré
Flislagt gulv med termostatstyrte varmekabler og avsatt plass til garderobeinnredning. Enkel adkomst til bad/vaskerom.

Bad/vaskerom
Flislagt gulv av typen Carnaby Street Gray 30x30 med sokkellist og malte vegger, opplegg for vaskesøyle, servant med innredning, vegghengt toalett med innebygget sisterne og aggregat for ventilasjon.

Kjøkken
Innredning fra anerkjente HTH i laminat utførelse med integrerte hvitevarer som kjøl-/frys, induksjonstopp, oppvaskmaskin og stekeovn. Kjøkken leveres iht. tegning. Meget praktisk utforming med god skap- og benkeplass. Benkebereder på xxx L plassert i kjøkkenbenk.

Stue
I alle oppholdsrom leveres 1-stavs eik hvitlakkert parkett for et moderne uttrykk. Stuen er romlig og har god plass til sofagruppe, spisestue, mediemøblement og annen innredning. Peisovn kan leveres som tilvalg. Direkte utgang til markterrasse i impregnert trevirke og hageareal.

Soverom
Hustype E inneholder 4 soverom på hhv 7,8, 7,2, 10,4 og 12,5 kvm. Alle soverommene har plass til garderobeinnredning, seng og leksepult. Hovedsoverommet har nisje for garderobeskap og god plass til dobbeltseng. Har du ikke behov for fire soverom kan ett av rommene selvsagt benyttes som tv-stue/hjemmekontor.

Baderom
I samme etasje som soverommene finner vi et pent baderom med 30x60 gulvfliser, varmekabler i gulv og dobbel servant. Innredning fra HTH. Badet leveres med vegghengt toalett og dusjnisje. På veggene leveres det 30x60 fliser i dusjnisjen, øvrige vegger som slette malte vegger.

Oppbevaring
Lagringsplassen ivaretas i utvendig, uisolert sportsbod på 5 kvm og på kaldtloft med W-takstoler.

_____________

Hustype B
Romsligere rekkehus på 138 kvm BRA-i fordelt over 3-plan. Her kommer du selvsagt også inn i hovedetasjen som består av entré, toalettrom, kjøkken og hovedstuen. Utgang til balkong med glassrekkverk på ca 10 kvm. Ca. 260cm takhøyde og store vindusflater. Annen etasje har et bad, 3 soverom hvorav ett har walk-in closet.
Underetasjen inneholder en romslig tv-stue med utgang til markterrasse, bad/vaskerom og soverom (kun boliger på enden). Øvrige boliger får her et disp.rom/bod.

Mot tilvalg kan det tilrettelegges for praktikantdel i deler av underetasjen. Enten som en ungdomsavdeling for eldstemann i familien eller ekstrainntekt i form av utleie. Merk at praktikantdel ikke er å anse som en egen enhet, men del av egen bolig

Entré
Flislagt gulv med termostatstyrte varmekabler og avsatt plass til garderobeinnredning. Enkel adkomst til separat toalettrom.

Separat toalettrom
Tilsvarende fliser som i entré. Leveres med vegghengt toalett og innredning fra HTH.

Kjøkken
Innredning fra anerkjente HTH i laminat utførelse med integrerte hvitevarer som kjøl-/frys, induksjonstopp, oppvaskmaskin og stekeovn. Kjøkken leveres iht. tegning. L-formet kjøkken i åpen løsning mot spisestuen i kombinasjon med gjennomgående lysinnslipp og ca. 2,6m takhøyde bidrar til en god romfølelse.

Stue
I alle oppholdsrom leveres 1-stavs eik hvitlakkert parkett for et moderne uttrykk. Stuen er romlig og har god plass til sofagruppe, spisestue, mediemøblement og annen innredning. Peisovn kan leveres som tilvalg. Utgang til balkong på ca 10 kvm med rekkverk i glass og plass til møblement.

Tv-stue underetasje
Ekstra tv-stue på ca 28 kvm er perfekt for barnefamilier i alle aldre. Med en ekstra stue får man økt fleksibilitet enten barna har venner på besøk, man skal se på fotballkamp med kompisene eller trenger et sted å ha tredemøllen. Utgang til markterrasse på 15,5 kvm

Soverom
Hustype B inneholder 3 soverom i annen etasje. Alle soverommene har plass til garderobeinnredning, seng og leksepult. Hovedsoverommet er på hele 16,4 kvm med egen walk-in delvis adskilt fra dobbeltsengen.
Bolig B-1 og B-6 ligger på enden av rekken og har i tillegg et soverom i underetasjen.

Bad annen etasje
Pent bad med 30x60 gulvfliser, varmekabler, dobbel servant med innredning fra HTH, vegghengt toalett og dusjnisje med 30x60 fliser. Øvrige vegger leveres som slette vegger i ønsket farge.

Bad/vaskerom u.etasje
Egent vaskerom i underetasjen med 200L varmvannsbereder, opplegg for vaskesøyle, utslagsvask og tekniske installasjoner.

Oppbevaring
Lagringsplassen ivaretas i utvendig, uisolert sportsbod på 5 kvm og på kaldtloft med W-takstoler. I bolig B-2 - B-5 er det i tillegg et disp.rom/bod på 9,6 kvm

Oppvarming

Boligen leveres med balansert ventilasjon med varmegjenvinning. Peisovn i hovedstue kan leveres som tilvalg iht tegning. Varmekabler i entré, bad/vaskerom og bad. Øvrige rom leveres uten varmekilde.

Energimerking

Energimerking gir relevant informasjon om hvor energieffektiv boligen er. Energiattester vil bli utarbeidet av selger etter at detaljprosjekteringen er gjennomført , og utleveres ved overtakelse av boligen. Energiattesten skal dokumenter at man minst tilfredsstiller kategori C. Se www.energimerking.no for mer informasjon om energimerking av boliger.

Eier- og organisasjonsform

Prosjektet er tenkt oppdelt i 2 forskjellige eierseksjonssameier i samsvar med eierseksjonsloven. Kjøper får tinglyst skjøte på sin seksjon. Selger står fritt til å bestemme seksjonsnummer. Det tas forbehold om eventuelle endringer av antall eierseksjoner i prosjektet. Som seksjonseier i et eierseksjonssameie vil kjøper bli sameier i eiendommen med tilhørende enerett til bruk av sin boenhet. Uteområde/tilhørende hageparsell, balkong/terrasser blir seksjonert som tilleggsdel til hver enkelt seksjon. Selger forbeholder seg imidlertid retten til å organisere dette annerledes, eksempelvis ved bruksretter. Seksjonseierne får felles bruksrett til sameiets øvrige fellesareal.

Eiendommen som prosjektet oppføres på, er sameier i utomhus-eiendommen på gnr. 29 bnr. 995 og gnr. 29 bnr 1124 sammen med boligselskapene på gnr. 29 bnr. 1104 mfl. Eiendommen utgjør arealet som er mellom og rundt byggene til boligselskapene. Eiendommen er organisert som et tingsrettslig sameie med egne vedtekter. Boligselskapene og tilknyttede eiendommer skal sammen drifte denne eiendommen og kostnadene skal fordeles mellom boligselskapene iht. en fordeling fastsatt i utomhus-sameiets vedtekter.

Eierseksjonssameie

Sameiets formål er å ivareta alle saker av felles interesse for sameierne, herunder sørge for drift og vedlikehold av felles infrastruktur herunder forsikring av eiendommen, veier, lys, brøyting, renovasjon, kommunale avgifter, forretningsførsel, strøm til fellesrom osv. Kostnader i forbindelse med sameiet vil fordeles på bakgrunn av eierbrøk. Se punktet «Felleskostnader til Eierseksjonssameiet".
Sameiet ledes av et styre valgt av selger.

Vedtekter

Utkast til vedtekter for sameiet er utarbeidet. Det forutsettes at kjøper aksepterer vedtektsutkastet som grunnlag for avtalen. Eventuelle forslag til endringer kan fremmes i henhold til vedtektene og eierseksjonsloven på senere sameiermøte. Vedtektene er et utkast, og at endelige vedtekter vil bli utarbeidet i forbindelse med innsendelse av seksjoneringsbegjæringen.

Parkering

Egen carport med plass til én bil ved boligen samt plass til ytterligere én bil foran denne.
Øvrig parkering iht utomhusplan.

Vei/vann/avløp

Eiendommen er tilknyttet offentlig vann- og avløp via private stikk- og fellesledninger. Vi gjør oppmerksom på at private ledninger vedlikeholdes for eiers regning. For private fellesledninger er der normalt tilknyttet solidarisk vedlikeholdsplikt.
Privat vei.

Forretningsfører

Solibo AS

Forsikring

Eiendommen holdes forsikret av selger frem til og med overtagelse. Kjøper må selv besørge forsikring av hus- og/eller innbo fra og med overtagelse.

Formuesverdi

Formuesverdi er per tid ikke fastsatt. Formuesverdien fastsettes etter ferdigstillelse i forbindelse med første skatteoppgjør. Formuesverdien fastsettes med utgangspunkt i en kvadratmeterpris som årlig beregnes av Statistisk sentralbyrå. Formuesverdien for primærboliger (der boligeier er folkeregistrert bosatt) utgjør 25 % av den beregnede kvadratmeterprisen multiplisert med boligens areal, opp til 10 millioner, og deretter 70 % av det som overstiger 10 millioner. Formuesverdien for sekundærboliger (alle andre boliger du måtte eie) utgjør 100 % av den beregnede kvadratmeterprisen multiplisert med boligens areal. Les mer på www.skatteetaten.no.

Felleskostnader

Felleskostnader er stipulert, og er basert på erfaring fra tilsvarende prosjekter basert på budsjett utarbeidet av utbygger og forretningsfører. Kostnader til drift og vedlikehold av sameiets fellesarealer påhviler sameierne i felleskap.

Stipulerte felleskostnader vil være ca. kr 11-12,- pr. kvm.
Dette tilsvarer kr. 1286,- pr mnd. for E-boligen og kr. 1537,- pr mnd. for B-boligene.
De stipulerte felleskostnader skal dekke, felleskostnader for utomhus arealer, forretningsførsel, bygningsforsikring, andre driftskostnader og grunnpakke TV/Internett.

Felleskostnadene vil avhenge av hvilke tjenester sameiet ønsker utført i felles regi.
Det er lagt til grunn at kommunale avgifter, eventuell eiendomsskatt, kostnader til varmtvann, oppvarming og strøm til egen seksjon faktureres seksjonseier direkte og derfor ikke inngår i sameiets estimerte driftsbudsjett.

Utbygger er ansvarlig for fellesutgiftene for eventuelle usolgte enheter etter ferdigstillelse.

Oppstartskapital

Forretningsfører vil på vegne av sameiet, i forbindelse med kjøpers overtakelse av bolig, innkreve 2 ganger felleskostnader (husleie) for å etablere en forsvarlig oppstartskapital i sameiet. Innbetalt oppstartskapital vil ikke bli avregnet mot månedlige fellesutgifter eller tilbakebetalt ved eventuelt salg av seksjonen.

Kjøpers ansvar for øvrige sameieres mislighold

For felles ansvar og forpliktelser hefter den enkelte sameier i forhold til sin sameiebrøk, jf. eierseksjonsloven § 30.

Offentlige/kommunale avgifter

Kommunale avgifter fastsettes når boligene er ferdig bygget. Estimerte kommunale avgifter er kr. ca 15 000,-
Det er lagt til grunn at kommunale avgifter, eventuell eiendomsskatt faktureres seksjonseier direkte og derfor ikke inngår i sameiets estimerte driftsbudsjett.

Det er etablert felles renovasjonsløsning.
Pr. Jan 2026 er det ikke eiendomsskatt i Ullensaker kommune.

Faste løpende kostnader

Strøm
Kabel-tv/internett utover grunnpakke.
Kommunale avgifter
Forsikring/innboforsikring
Fellesutgifter/velforeningsavgift

Ferdigattest/midlertidig brukstillatelse

Ferdigattest eller midlertidig brukstillatelse skal foreligge før overtagelse kan finne sted. I motsatt fall anbefaler megler at overtagelse utsettes og at kjøper ikke overtar. Velger kjøper allikevel å overta er det ulovlig å bebo/ta boligen i bruk. Å bebo uten brukstillatelse kan medføre krav om utflytting og evt. bøter fra kommunen. Ved å velge å overta stopper evt. krav om dagbøter. Selger er ansvarlig for at det blir utstedt ferdigattest på eiendommen. Dersom ferdigattest ikke foreligger ved overtakelse anbefaler megler at kjøper holder tilbake et beløp, til sikkerhet for at ferdigattest blir utstedt.

Utleie

Boligene har bare én boenhet og ingen separat utleiedel. Med unntak av de begrensninger som følger av sameiets vedtekter har seksjonseierne full rettslig rådighet over sine seksjoner. Seksjonseierne kan fritt pantsette, selge eller leie ut sine seksjoner. I henhold til eierseksjonsloven er det forbud mot kortidsutleie av seksjonen i sin helhet mer enn 90 døgn i året. Normalt vil det være et krav at et hvert salg eller bortleie av seksjoner skal meddeles skriftlig til sameiets forretningsfører/styre med opplysning om hvem som er ny eier/leietaker.

Odel

Eierseksjoner er ikke underlagt odel

Servitutter/rettigheter/forpliktelser

Følgende heftelser (pengeheftelser og andre heftelser) blir værende på eiendommen:
Pengeheftelser:
-Boligsameiets legalpant i hver seksjon, som sikkerhet for oppfyllelse av den enkelte sameiers fellesforpliktelser jf. lov om eierseksjoner.

1924/900203-1/10 ERKLÆRING/AVTALE TINGLYST
06.11.1924
Bestemmelse om kloakkledning
Vegvesenets betingelser vedtatt
OVERFØRT FRA: 3209-29/995
Gjelder denne registerenheten med flere

1939/902029-1/10 ELEKTRISKE KRAFTLINJER TINGLYST
27.01.1939
Rettighetshaver As Skedsmo & Sørum el.verk
OVERFØRT FRA: 3209-29/995
Gjelder denne registerenheten med flere

1939/1859-1/10 ERKLÆRING/AVTALE TINGLYST
11.10.1939
Bestemmelse om salg og reklame m.v. for bensin og
oljeprodukter
OVERFØRT FRA: 3209-29/995
Gjelder denne registerenheten med flere

1945/1015-2/10 ERKLÆRING/AVTALE TINGLYST
29.09.1945
Bestemmelse om spillvann/drensvann/overvann/stikkrenner m.m.
Vegvesenets betingelser vedtatt
OVERFØRT FRA: 3209-29/995
Gjelder denne registerenheten med flere

1955/2576-1/10 BESTEMMELSE OM VEG TINGLYST
08.08.1955
Vegvesenets betingelser vedtatt
OVERFØRT FRA: 3209-29/995
Gjelder denne registerenheten med flere

1975/2575-1/10 ERKLÆRING/AVTALE TINGLYST
08.08.1975
Vegvesenets betingelser vedtatt
Angår også dbnr.2576/55
OVERFØRT FRA: 3209-29/995
Gjelder denne registerenheten med flere

2021/545696-1/200 BESTEMMELSE OM NETTSTASJON TINGLYST
07.05.2021 21:00
RETTIGHETSHAVER:ELVIA AS
Org.nr: 980489698
Stedsevarig rett til bygging, drift, vedlikehold og fornyelse
Adkomstrett for drift og vedlikehold av anlegg/ledninger/kabler
Bestemmelse om bebyggelse og beplantning
OVERFØRT FRA: 3209-29/995
Gjelder denne registerenheten med flere

2021/545971-1/200 BESTEMMELSE OM NETTSTASJON TINGLYST
07.05.2021 21:00
RETTIGHETSHAVER:ELVIA AS
Org.nr: 980489698
Stedsevarig rett til bygging, drift, vedlikehold og fornyelse
Adkomstrett for drift og vedlikehold av anlegg/ledninger/kabler
Bestemmelse om byggeforbud og beplantning
OVERFØRT FRA: 3209-29/995
Gjelder denne registerenheten med flere

2021/546082-1/200 BESTEMMELSE OM ELEKTRISKE LEDNINGER/KABLER TINGLYST
07.05.2021 21:00
RETTIGHETSHAVER:ELVIA AS
Org.nr: 980489698
Stedsevarig rett til bygging, drift, vedlikehold og fornyelse
Adkomstrett for drift og vedlikehold av anlegg/ledninger/kabler
Bestemmelse om bebyggelse og beplantning
OVERFØRT FRA: 3209-29/995
Gjelder denne registerenheten med flere

2024/1041318-1/200 BESTEMMELSE OM VEG TINGLYST
31.01.2024 21:00
:Knr:3209 Gnr:29 Bnr:1101
:Knr:3209 Gnr:29 Bnr:1102
:Knr:3209 Gnr:29 Bnr:1103
:Knr:3209 Gnr:29 Bnr:1104
Bestemmelse om vedlikehold
OVERFØRT FRA: 3209-29/995
Gjelder denne registerenheten med flere

2024/1041344-1/200 BESTEMMELSE OM VANN/KLOAKK TINGLYST
31.01.2024 21:00
:Knr:3209 Gnr:29 Bnr:1101
:Knr:3209 Gnr:29 Bnr:1102
:Knr:3209 Gnr:29 Bnr:1103
:Knr:3209 Gnr:29 Bnr:1104
Bestemmelse om vedlikehold av anlegg/ledninger

OVERFØRT FRA: 3209-29/995
Gjelder denne registerenheten med flere

2024/1041344-2/200 BESTEMMELSE OM ELEKTRISKE LEDNINGER/KABLER TINGLYST
31.01.2024 21:00
:Knr:3209 Gnr:29 Bnr:1101
:Knr:3209 Gnr:29 Bnr:1102
:Knr:3209 Gnr:29 Bnr:1103
:Knr:3209 Gnr:29 Bnr:1104
Bestemmelse om vedlikehold av anlegg/ledninger

OVERFØRT FRA: 3209-29/995
Gjelder denne registerenheten med flere

2024/1041344-3/200 BESTEMMELSE OM JORDKABEL/JORDKABELANLEGG TINGLYST
31.01.2024 21:00
:Knr:3209 Gnr:29 Bnr:1101
:Knr:3209 Gnr:29 Bnr:1102
:Knr:3209 Gnr:29 Bnr:1103
:Knr:3209 Gnr:29 Bnr:1104
Bestemmelse om vedlikehold av anlegg/ledninger

OVERFØRT FRA: 3209-29/995
Gjelder denne registerenheten med flere

2024/1067609-1/200 BESTEMMELSE OM VANN/KLOAKK TINGLYST
06.02.2024 21:00
RETTIGHETSHAVER:ULLENSAKER KOMMUNE
Org.nr: 933649768
Bestemmelse om vedlikehold av anlegg/ledninger

OVERFØRT FRA: 3209-29/995
Gjelder denne registerenheten med flere
2024/1216901-1/200 BESTEMMELSE OM ADKOMSTRETT TINGLYST
14.03.2024 21:00
:Knr:3209 Gnr:29 Bnr:1102
:Knr:3209 Gnr:29 Bnr:1103
:Knr:3209 Gnr:29 Bnr:1104
Bestemmelse om renovasjonsanlegg
Bestemmelse om vedlikehold
OVERFØRT FRA: 3209-29/995
Gjelder denne registerenheten med flere

2024/1216901-2/200 ERKLÆRING/AVTALE TINGLYST
14.03.2024 21:00
:Knr:3209 Gnr:29 Bnr:1102
:Knr:3209 Gnr:29 Bnr:1103
:Knr:3209 Gnr:29 Bnr:1104
Bestemmelse om utomhusareal
Bestemmelse om vedlikehold av anlegg/ledninger

OVERFØRT FRA: 3209-29/995
Gjelder denne registerenheten med flere

2025/185282-1/200 BESTEMMELSE OM ADKOMSTRETT TINGLYST
17.02.2025 21:00
:Knr:3209 Gnr:29 Bnr:1108
:Knr:3209 Gnr:29 Bnr:1109
:Knr:3209 Gnr:29 Bnr:1110
Bestemmelse om vedlikehold
OVERFØRT FRA: 3209-29/995
Gjelder denne registerenheten med flere

2025/185282-2/200 BESTEMMELSE OM VANN/KLOAKK TINGLYST
17.02.2025 21:00
:Knr:3209 Gnr:29 Bnr:1108
:Knr:3209 Gnr:29 Bnr:1109
:Knr:3209 Gnr:29 Bnr:1110
Bestemmelse om vedlikehold av anlegg/ledninger
OVERFØRT FRA: 3209-29/995
Gjelder denne registerenheten med flere

2025/185282-3/200 ERKLÆRING/AVTALE TINGLYST
17.02.2025 21:00
:Knr:3209 Gnr:29 Bnr:1108
:Knr:3209 Gnr:29 Bnr:1109
:Knr:3209 Gnr:29 Bnr:1110
Bestemmelse om utomhusareal
OVERFØRT FRA: 3209-29/995
Gjelder denne registerenheten med flere

2025/1123048-1/200 BESTEMMELSE OM VEG TINGLYST
22.09.2025 21:00
:Knr:3209 Gnr:29 Bnr:1102
:Knr:3209 Gnr:29 Bnr:1103
:Knr:3209 Gnr:29 Bnr:1104
:Knr:3209 Gnr:29 Bnr:1109
:Knr:3209 Gnr:29 Bnr:1110
:Knr:3209 Gnr:29 Bnr:1120
:Knr:3209 Gnr:29 Bnr:1123
Bestemmelse om vedlikehold

2025/1123048-2/200 BESTEMMELSE OM PARKERING TINGLYST
22.09.2025 21:00
:Knr:3209 Gnr:29 Bnr:1102
:Knr:3209 Gnr:29 Bnr:1103
:Knr:3209 Gnr:29 Bnr:1104
:Knr:3209 Gnr:29 Bnr:1109
:Knr:3209 Gnr:29 Bnr:1110
:Knr:3209 Gnr:29 Bnr:1120
:Knr:3209 Gnr:29 Bnr:1123
Bestemmelse om vedlikehold

2025/1123048-3/200 ERKLÆRING/AVTALE TINGLYST
22.09.2025 21:00
:Knr:3209 Gnr:29 Bnr:1102
:Knr:3209 Gnr:29 Bnr:1103
:Knr:3209 Gnr:29 Bnr:1104
:Knr:3209 Gnr:29 Bnr:1109
:Knr:3209 Gnr:29 Bnr:1110
:Knr:3209 Gnr:29 Bnr:1120
:Knr:3209 Gnr:29 Bnr:1123
Bestemmelse om benyttelse av fellesuteareal
Bestemmelse om benyttelse av renovasjonsanlegg
Bestemmelse om vedlikehold av anlegg/ledninger

Det gjøres oppmerksom på at det kan bli tinglyst ytterligere servitutter/erklæringer på eiendommen. Kjøper kan ikke motsette seg eller kreve prisavslag/erstatning for tinglysninger av øvrige nødvendige erklæringer/avtaler o.l. vedrørende sameie, naboforhold eller forhold pålagt av myndighetene knyttet til gjennomføringen av prosjektet innenfor reguleringsplanen for prosjektet. Kjøpers bank vil få prioritet etter heftelsene som er og evt. blir tinglyst før overtakelse.

Reguleringsmessige forhold

Rammetillatelse er gitt.
Eiendommen er regulert til konsentrert småhusbebyggelse i mindre vesentlig endring av reguleringsplan for «Asper og del av Bakkedalen.» m/best. vedtatt 06.12.2022.

Det gjøres oppmerksom på at området er under utvikling. Interessenter oppfordres til å sette seg inn i gjeldende reguleringsbestemmelser/kart for området. Eiendom 29/20 skal bebygges med rekkehus/tomannsboliger og eiendom 29/1123 skal bebygges med blokkbebyggelse.
Ifølge NVE Atlas sin digitale karttjeneste ligger tomten i et område med risikoklasse 0 for kvikkleire.

Betalingsbetingelser

Det forutsettes at kr. 100.000,- innbetales ved kontraktinngåelse til meglers klientkonto, så snart det er besluttet gjennomføring og garanti iht. bustadoppføringslova §12 stilt av selger. Skriftlig dokumentasjon på finansiering fremlegges av kjøper.

Alle renter på beløp innbetalt til meglers klientkonto tilfaller i sin helhet selger under forutsetning av at selger har stilt garanti iht. bustadoppføringslova §47. Stilles ikke slik garanti, tilfaller rentene på innbetalt beløp kjøper. Kjøper plikter ikke å innbetale noen del av kjøpesum før selger har stilt garanti iht. bustadoppføringslova §12. Det kan ikke tas pant i kjøpt bolig for delinnbetalingen ved kontraktsinngåelsen.

Hovedoppgjør (rest kjøpesum, kjøpsomkostninger og evt. tilvalg/endringer) skal innbetales til meglers klientkonto 1 -en- uke innen overtagelse av boligen. Forsinkes betaling med mer enn 21 dager for beløpet som forfaller ved kontraktsinngåelsen og 30 dager for øvrige avtalte innbetalinger har selger rett til å heve handelen og foreta dekningssalg av boligen. Selger vil holde kjøper ansvarlig for selgers eventuelle økonomiske tap som følge av kjøpers mislighold. Selger har rett til dekning av sitt tilgodehavende i kjøpers eventuelle innbetalte delinnbetaling, herunder også for renter og andre omkostninger, som påløper på grunn av kjøpers mislighold.

Oppgjøret må komme fra kjøpers egen bankkonto, kjøpers lånebank og/eller meglerforetak som har gjennomført salg av kjøpers egen bolig/fritidseiendom. Dersom oppgjøret helt eller delvis blir betalt av andre enn kjøper, vil innbetalt beløp bli returnert til betalers konto. Dette kan medføre forsinket oppgjør og renteansvar for kjøper.

Ved innlevering av kjøpetilbud med kopi av gyldig legitimasjon er kjøper bundet når kjøpetilbudet er innlevert megler. Selger er bundet av aksepten når selger (skriftlig) har akseptert samme tilbud. Da selger er profesjonell part, gjelder ikke bestemmelsen om at innlevert kjøpetilbud må ha akseptfrist tidligst kl. 12.00 etter siste annonsert visning.

Lovgrunnlag

Boligene selges til forbrukere i henhold til Bustadoppføringslova.
Dersom kjøper ikke er forbruker kommer i utgangspunktet ikke bustadoppføringslovens regler til anvendelse. Partene er dog enige om at bustadoppføringsloven kommer til anvendelse med unntak av følgende paragrafer som således ikke kan påberopes: -§§8, 12, 16, 18, 24, 31, 47, 49 og 51-54. Dersom andre paragrafer i bustadoppføringsloven inneholder bestemmelser om at de ovennevnte paragrafer kan påberopes, vil også slike bestemmelser ikke være gjeldende mellom partene.

Etter at boligene er ferdigstilte selges boligene etter Avhendingslova til både forbrukere og næringsdrivende.

Tilleggsarbeider

Tilvalgsmøte avholdes 3-4 mnd før ferdigstillelse.

Mot vederlag har kjøper rett til å få utført endrings -og tilleggsarbeider. Rettigheten begrenses oppad til 15% av avtalt vederlag. Da prosjektet og prisene er basert på at utbyggingen skal gjennomføres rasjonelt og i stor grad ved serieproduksjon, bør kjøper velge fra en tilvalgsmeny som utarbeides fra selger/entreprenør. Dette er en fravikelse av normalordningen. Til orientering opplyses det at bustadoppføringslovas §9, 2. avsnitt inneholder bestemmelse om at ønsker om endringer og tilvalg kan avvises når disse vil føre til ulemper for entreprenør/selger som ikke står i forhold til forbrukerens interesse. Dersom det likevel er mulig å få utført de ønskede endringer, vil det kunne påløpe ekstra kostnader.

Endringene blir en del av kjøpekontrakten, på samme måte som de opprinnelig avtalte hovedytelsene. Endringene innebærer at beskrivelsen av salgsobjektet i punkt 1, med vedlegg, justeres i henhold til de avtalte endringer og tilvalg. Det er også etter Endringene selger som er ansvarlig for hele leveransen av boligen/fritidsboligen, og kjøper kan forholde seg til selger ved eventuell forsinkelse eller mangler knyttet til Endringene. Kjøper er ansvarlig for å betale hele kjøpesummen, inkludert betaling for Endringene, til eiendomsmeglers klientkonto. Selgers forpliktelse til å stille fordkuddsgaranti etter denne kontrakten og bustadoppføringslova § 47 vil gjelde tilsvarende for Endringene. Utbygger gis anledning til å beregne seg et påslag på bestilte tilleggsarbeider gjort med underleverandører.

Endringsavtaler skal være skriftlige.

Renter/Garanti

Selger skal, umiddelbart etter at avtale er inngått, stille garanti etter bustadoppføringslova § 12. Garantien skal gjelde fra tidspunkt for avtaleinngåelse og frem til fem år etter overtagelse. Garantien skal tilsvare minst 3 % av kjøpesummen frem til overtagelse, og minst 5 % etter overtagelse.
Er det i avtalen tatt forbehold som beskrevet i bustadoppføringslova § 12 annet ledd, andre setning, er det tilstrekkelig at selger stiller garantien straks etter at forbeholdene er falt bort, men selger skal uansett stille garanti før byggearbeidene starter.

Til det er dokumentert at det foreligger §12 garanti, har forbrukeren rett til å holde tilbake alt vederlag.
Dersom selger stiller §47 garanti, vil deloppgjør utbetales selger /byggelånsbank. Renter på klientkonto tilhører kjøper frem til overtakelse eller §47 garanti foreligger. Garantiene stilles direkte til kjøper med kopi til megler.

Videresalg

Kjøper kan søke om å få transportere sinerettigheter og plikter til en ny kjøper, senest
1 måned før overtagelse. Transporten kreversamtykke fra selger, og selger kan nekte overdragelse på fritt grunnlag. Transportgebyret utgjør kr. 100.000,- og betales av opprinnelig kjøper. Utgifter til eventuell bruk av megler kommer i tillegg. Transport vil kun bli godkjent dersom det gjennomføres av Proaktiv Eiendomsmegling Lørenskog.
Påkrevde endringer av garantier ved et evt. videresalg/transport bekostes ikke av selger/utbygger.

Kostnader ved avbestillinger

Kjøper kan avbestille i henhold til reglene i bustadoppføringslova §§ 52 og 53 frem til overtakelse har funnet sted. Lovens utgangspunkt er at utbygger skal holdes skadesløs ved avbestilling. Det vil si at den som avbestiller må dekke alle tap som måtte oppstå på selgers hånd. Selger kan alternativt velge å fremsette et tilbud om et fast avbestillingsgebyr jfr. bustadoppføringslovens § 54. Dersom det aksepteres av kjøper, vil det utgjøre grunnlaget for et endelig oppgjør mellom partene. Størrelsen på avbestillingsgebyret vil i tilfelle bli beregnet i det enkelte tilfelle.

Kredittvurdering/dokumentasjon av finansieringsevne

Selger forbeholder seg retten til å foreta kredittvurdering av kjøpere, og kan avvise en kjøper som ikke er kredittverdig på kjøpstidspunktet. Ved innlevering av kjøpetilbud skal det fremlegges gyldig finansieringsbevis.

Overtagelse

Antatt ferdigstillelse er 4. kvartal 2026/ 1. kvartal 2027, men dette tidspunktet er foreløpig og ikke bindende og utløser ikke dagmulkt. En senere oppstart på fysiske arbeider og/eller en lengre byggetid enn forventet, kan medføre en senere overtagelse, uten at dette utløser krav på dagmulkt.
Når selger har opphevet forbeholdene stilt i avtalen skal selger fastsette en overtagelsesperiode som ikke skal være lenger enn 3 måneder. Selger skal skriftlig varsle kjøper om når overtagelsesperioden begynner og slutter.

Senest 8 uker før estimert ferdigstillelse av boligen skal selger sende kjøper et skriftlig varsel om et tidsintervall for når boligen forventes å bli ferdigstilt. Selger kan deretter fastsette endelig ferdigstillelsesdato og innkalle til overtakelsesforretning med inntil 7 dagers varsel jf. bustadoppføringslova. Den endelige datoen er bindende og dagmulktsutløsende, og skal ligge innenfor den tidligere varslede overtagelsesperioden.

Selger har rett til tilleggsfrist dersom kjøper krever endringer eller tilleggsarbeider, eller vilkårene nevnt i bustadoppføringslova §11 er oppfylt.

Hver kjøper vil ved overtagelse få tildelt en FDV-dokumentasjon (Forvaltning, drift, vedlikehold) som viser hvilke materialer, produkter og fargevalg som er benyttet i boligen i tillegg til adresselister med oversikt over kontaktpersoner/firma som er ansvarlig for de forskjellige arbeider og vedlikehold. FDV-dokumentasjonen kan leveres som web-basert løsning eller annen databasert løsning.

Prosjektet er planlagt gjennomført i flere byggetrinn. Det gjøres derfor oppmerksom på at det etter overtagelsesdato fortsatt vil foregå byggearbeider på eiendommen, herunder arbeider med ferdigstillelse av de øvrige boligene i prosjektet, fellesarealer, utomhusarealer og tekniske installasjoner. Kjøper må akseptere at det vil være sjenanse fra byggearbeider, behov for anleggstrafikk og anleggsinstallasjoner for å ferdigstille hele prosjektet. Selger må følgelig forbeholde seg retten til å ha stående maskiner og utstyr på deler av tomten, samt visnings- og byggeplasskilt frem til siste bolig er ferdigstilt.

Generelt/forbehold

Salgsprospekt og prosjektbeskrivelsen er utarbeidet for å orientere om prosjektets generelle bestanddeler, funksjoner og planlagte organisering, og er således ikke en komplett beskrivelse av leveransen. Det vises for øvrig til kundetegninger og kjøpekontrakt med vedlegg. Alle illustrasjoner, 3D animasjoner, skisser, "møblerte" plantegninger m.m. er kun ment å danne et inntrykk av den ferdige bebyggelsen, og kan ikke anses som endelig leveranse. Inntegnet utstyr/inventar medfølger ikke, og det kan derfor fremkomme elementer i presentasjonsmaterialet som ikke inngår i leveransen.

Generelle beskrivelser av prosjektet i salgs- og markedsføringsmateriell vil ikke passe for alle leiligheter. Kjøper oppfordres derfor særskilt til å vurdere solforhold, utsikt, beliggenhet i forhold terreng og omkringliggende eksisterende og fremtidig bygningsmasse mm. før et eventuelt bud inngis. Det kan være avvik mellom de planskisser, planløsninger og tegninger som er presentert i prospektet, og den endelige leveransen. Slike avvik utgjør ingen mangel ved selgers leveranse som gir kjøper rett til prisavslag eller erstatning. Dersom det er avvik mellom tegninger i prospekt / internettside og leveransebeskrivelsen i den endelige kontrakt med kjøper, vil leveransebeskrivelsen ha forrang og omfanget av leveransen er begrenset til denne. Det tas forbehold om trykkfeil i prospektet. Sjakter, innkassinger o.l. og VVS føringer er ikke endelig tegnet inn.

I rom med estetisk klasse K2 kan overflater med sidelys kunne fremstå som ujevnt malebehandlet med skyggevirkninger på grunn av variasjoner i underliggende overflate. I rom med slepelys kan man forvente å se synlige skjøter. Dette gjelder også i rom hvor det er valgt estetisk klasse K3

Det gjøres oppmerksom på at utomhusplanen i salgsprospektet ikke er ferdig detaljprosjektert. Forstøtningsmurer, fallsikringer, belysning, fordeler-skap, lekeapparat, benker m.m., kummer og lignende vil bli plassert slik det finnes hensiktsmessig i forhold til terrenget. Selger har rett til å foreta endringer i prosjektet som ikke vesentlig forringer prosjektets kvalitet eller standard, herunder arkitektoniske endringer, materialvalg, mindre endringer i konstruksjon, rørgjennomføringer og/eller tomtetilpasninger. Slike endringer er ikke å anse som mangler ved ytelsen. Det samme gjelder de endringer som må gjøres som følge av kommunens byggesaksbehandling og krav i ramme- og igangsettingstillatelser, samt andre offentlige tillatelser.

Selger forbeholder seg retten til å overdra rettigheter og plikter etter denne kjøpekontrakt til et annet selskap (for eksempel et utbyggerselskap). Kjøper aksepterer en slik eventuell overdragelse.
Selger står fritt til å akseptere eller avslå ethvert bud, herunder bestemme om de vil akseptere salg til selskaper, samt om de vil akseptere salg av flere leiligheter til samme kjøper. Selger forbeholder seg retten til uten varsel å kunne endre priser og betingelser for usolgte leiligheter.

Særlige forbehold

Selger tar følgende forbehold om igangsetting og gjennomføring av avtalen:
- Finansieringsforbehold, det tas forbehold om åpning av byggelån på for selger tilfredsstillende vilkår.
- Igangsettingstillatelse (IG) for byggearbeidene i samsvar med rammetillatelse og søknad.
- At det oppnås tilfredsstillende salg av antall boliger i prosjektet iht. prisliste ved bestemmelse om oppstart av byggearbeidene. Tilfredsstillende salg er ca. 60%
- Avtalen er betinget av at Selgers styre beslutter igangsetting senest innen 31.07.2026
- Tomtene er foreløpig ikke er overtatt av Aspbo AS, og at det derfor tas forbehold om gjennomføring av tomtekjøp/frafall av pant fra nåværende eier. Hjemmelshaver til eiendommene er OBOS Block Watne AS.

Kjøper kan kansellere inngått kjøpekontrakt dersom byggestart ikke er vedtatt og varslet kjøper innen 31.07.2026. Eventuell beslutning om kansellering skal meddeles skriftlig fra kjøper til selger umiddelbart. Dersom kanselleringsretten benyttes får kjøper tilbakebetalt innbetalt kjøpesum (evt. deponert beløp) og renter av innbetalt beløp. For øvrig kan kjøper ikke fremme ytterligere eller andre krav mot selger som følge av kanselleringen.

Budgivning

Ved innlevering av kjøpetilbud med kopi av gyldig legitimasjon er kjøper bundet når kjøpetilbudet er innlevert megler. Selger er bundet av aksepten når selger (skriftlig) har akseptert samme tilbud. Da selger er profesjonell part, gjelder ikke bestemmelsen om at innlevert kjøpetilbud må ha akseptfrist tidligst kl. 12.00 etter siste annonsert visning.

Kjøper er utenlandsk statsborger

Dersom kjøper er utenlandsk statsborger kreves det at vedkommende har et såkalt D-nummer til erstatning for norsk personnummer. Rekvirering av D-nummer må sendes Kartverket samtidig med innsending av skjøtet for tinglysing. Skjøtet blir liggende i Kartverket inntil kjøper har fått D-nummer av Skatteetaten. Når Kartverket har mottatt D-nummeret fra Skatteetaten, vil skjøtet bli tinglyst umiddelbart. Rekvisisjon av D-nummer i forbindelse med tinglysing av skjøte vil ofte medføre at oppgjør og utbetaling til selger blir forsinket med noen uker. Kjøper må i disse tilfellene enten ta forbehold i bud om forsinket utbetaling til selger, eller være forberedt på å dekke forsinkelsesrenter til selger. Kontakt ansvarlig megler for informasjon før budgivning.

Lov om hvitvasking

I henhold til Lov av 01.06.2018 nr. 23 om tiltak mot hvitvasking og terrorfinansiering mv. er megler pliktig til å gjennomføre kundetiltak av oppdragsgiver og/eller eventuelle reelle rettighetshavere til salgsobjektet. Det samme gjelder for medkontrahenten til oppdragsgiver og/eller eventuelle reelle rettighetshavere til salgsobjektet.
Dersom nevnte parter ikke oppfyller lovens krav til legitimasjon eller megler har mistanke om at transaksjonen har tilknytning til utbytte av en straffbar handling eller forhold som rammes av straffeloven §147 a, 147 b eller 147c kan megler stanse gjennomføringen av transaksjonen. Megler kan ikke holdes ansvarlig for de konsekvenser dette vil kunne medføre for oppdragsgiver og/eller eventuelle reelle rettighetshavere til salgsobjektet eller deres medkontrahent.

Personopplysninger

Som følge av meglerforetakets plikt til å oppbevare kontrakter og dokumenter i minst 10 år, jf. eiendomsmeglingsforskriften § 3-7 (3), er mulighetene for å få slettet personlige opplysninger som er formidlet til megler, begrenset. Du kan lese mer om vår personvernpolicy på våre hjemmesider, www.proaktiv.no.

Finansiering

Vi bistår mer enn gjerne med kontakt med ulike banker, men vi har ingen fast bankforbindelse da vi mener at vilkårene i ulike finansinstitusjoner varierer fra kundegruppe til kundegruppe. Vi kan således ikke anbefale en bestemt bank, men hjelper mer enn gjerne med å finne den banken som tilbyr deg best vilkår.

Tinglysing av hjemmel

Skjøte sendes for tinglysing i forbindelse med oppgjøret. Oppgjør forutsetter at det er gjennomført overtagelse og at partene har signert en overtakelsesprotokoll og sendt denne til oppgjørsavdelingen slik som avtalt i kontrakt. Det forutsettes at skjøte tinglyses i kjøpers navn. Hvis interessenter mot formodning ikke ønsker tinglysing av skjøte må det tas forbehold om dette i kjøpetilbudet.

Salgsoppgave

Opplysningene i salgsoppgaven er godkjent av selger.

Nærområdet

Annonseinformasjon

FINN-kode448357007
Sist endret28. jan. 2026 10:56
Referanse63250104

Rapporter annonse

Annonsene kan være mangelfulle i forhold til lovpålagt opplysningsplikt. Før bindende avtale inngås oppfordres interessenter til å innhente komplett informasjon fra meglerforetaket, selger eller utleier.