Bildegalleri
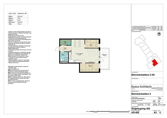
Plantegning 402
Blomsterbakken 2
Blomsterbakken 2
Prisantydning5 598 000 kr
Prosjektets status
Planlegging
Rammegodkjent
Salgsstart
Januar 2026
Byggestart
3. kvartal 2026
Overtakelse
1. kvartal 2028
Nøkkelinfo
- Boligtype
- Leilighet
- Etasje
- 4
- Soverom
- 2
- Rom
- 3
- Internt bruksareal
- 68 m² (BRA-i)
- Bruksareal
- 73 m²
- Eksternt bruksareal
- 5 m² (BRA-e)
- Balkong/Terrasse
- 11 m² (TBA)
Beskrivelse
Ansvarlig megler
Lars Balstad Karlsen
NB: Knappen for å vise hele beskrivelsen har kun en visuell effekt.
NB: Knappen for å vise hele beskrivelsen har kun en visuell effekt.
Nærområdet
EiendomsMegler 1 Nybygg Ringerike, Hadeland og Nittedal
Vi loser deg trygt gjennom hele boligsalget
Annonseinformasjon
| FINN-kode | 448028385 |
|---|---|
| Sist endret | 27. jan. 2026 11:04 |
| Referanse | 1220250066 |
Annonsene kan være mangelfulle i forhold til lovpålagt opplysningsplikt. Før bindende avtale inngås oppfordres interessenter til å innhente komplett informasjon fra meglerforetaket, selger eller utleier.