Bildegalleri
K202,302,402 3R.jpg
Fabeltunet
Velkommen til et moderne boligeventyr på Frogner, Lillestrøm! 2-4 roms leiligheter til faste priser og med lavt forskudd
Prisantydning4 290 000 kr
Prosjektets status
Planlegging
2025
Salgsstart
Januar 2026
Byggestart
2026
Overtakelse
2028
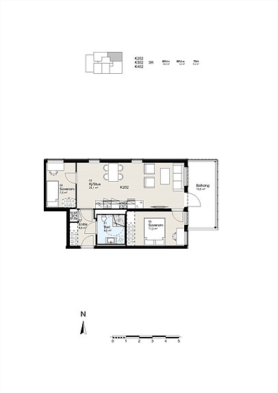
Nøkkelinfo
- Boligtype
- Leilighet
- Etasje
- 2
- Soverom
- 2
- Rom
- 3
- Internt bruksareal
- 60 m² (BRA-i)
- Bruksareal
- 65 m²
- Eksternt bruksareal
- 5 m² (BRA-e)
- Balkong/Terrasse
- 10 m² (TBA)
Fasiliteter
Balkong/Terrasse
Garasje/P-plass
Heis
Kabel-TV
Utsikt
Turterreng
Beskrivelse
Ansvarlig megler
Tom Z. Bliksmark
NB: Knappen for å vise hele beskrivelsen har kun en visuell effekt.
NB: Knappen for å vise hele beskrivelsen har kun en visuell effekt.
Nyttige lenker
Nærområdet
Sem & Johnsen
Boliger utenom det vanlige
Annonseinformasjon
| FINN-kode | 447606918 |
|---|---|
| Sist endret | 05. mars 2026 14:32 |
| Referanse | 20-26-0239 |
Annonsene kan være mangelfulle i forhold til lovpålagt opplysningsplikt. Før bindende avtale inngås oppfordres interessenter til å innhente komplett informasjon fra meglerforetaket, selger eller utleier.