Bildegalleri
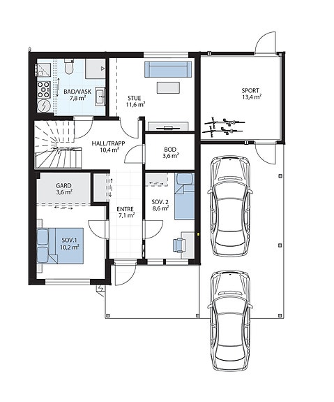
Plantegning 1. etasje - Hus 5
Sydskogen/Krapfoss
Thorbjørnsrød - 10 eneboliger i kjede.
Hanna Jacobsens vei - Hus 5
Prisantydning6 768 000 kr
Kort om prosjektet
10 lyse og moderne eneboliger i kjede med 3 eller 4 soverom. Praktisk planløsning med to stuer og to bad. Carport og romslig sportsbod. God beliggenhet innerst på feltet.
Prosjektets status
Planlegging
Høsten 2025
Salgsstart
1. kvartal 2026
Byggestart
4. kvartal 2026
Overtakelse
Fra 4. kvartal 2027
Nøkkelinfo
- Boligtype
- Enebolig
- Soverom
- 3
- Rom
- 5
- Internt bruksareal
- 135 m² (BRA-i)
- Bruksareal
- 150 m²
- Balkong/Terrasse
- 50 m² (TBA)
- Energimerking
- C
Fasiliteter
Balansert ventilasjon
Balkong/Terrasse
Barnevennlig
Bredbåndstilknytning
Garasje/P-plass
Kabel-TV
Lademulighet
Offentlig vann/kloakk
Parkett
Peis/Ildsted
Turterreng
Visning
torsdag, 19. februar
Beskrivelse
Eneboligen inneholder:
1. etasje: Entré, hall/trapp, stue, 2 soverom, bad/vaskerom og bod. Carport og sportsbod.
2. etasje: Gang/trapp, stue/kjøkken med utgang til terrasse terrasse, 1 soverom, og bad.
Tomteareal: xxx kvm.
NB: Knappen for å vise hele beskrivelsen har kun en visuell effekt.
NB: Knappen for å vise hele beskrivelsen har kun en visuell effekt.
Nyttige lenker
Nærområdet
OBOS Block Watne AS
Annonsene kan være mangelfulle i forhold til lovpålagt opplysningsplikt. Før bindende avtale inngås oppfordres interessenter til å innhente komplett informasjon fra meglerforetaket, selger eller utleier.