Bildegalleri
12 B H0303-Salgstegning.jpg
Trondheim Sentrum
STASJONSKVARTALET - Trinn 2
Gryta 12 A og B
Prisantydning6 800 000 kr
Prosjektets status
Planlegging
2025
Salgsstart
Januar 2026
Byggestart
Sommer 2026
Overtakelse
2028
Nøkkelinfo
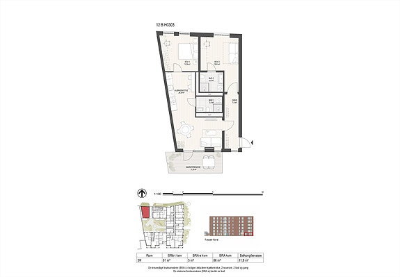
- Boligtype
- Leilighet
- Etasje
- 3
- Soverom
- 2
- Rom
- 3
- Internt bruksareal
- 81 m² (BRA-i)
- Bruksareal
- 86 m²
- Eksternt bruksareal
- 5 m² (BRA-e)
- Balkong/Terrasse
- 12 m² (TBA)
Fasiliteter
Balkong/Terrasse
Garasje/P-plass
Heis
Utsikt
Visning
onsdag, 11. februar
14:00 – 18:00
onsdag, 18. februar
14:00 – 18:00
Velkommen til vårt visningssenter i Nye Trondheim Sentralstasjon. Vi har åpent onsdager kl 14-18. Inngang finner du opp trappen til Sjøgangen (passasjen over til Powerhouse og Brattøra).
VisningspåmeldingBeskrivelse
Smart leilighet med mulighet for hybelløsning og ekstra kjøkken. 2 fullverdige bad og praktisk entrè med god plass til garderobeløsning. Sørvent terrasse i gårdsrom.
Ansvarlig megler
Kristian Dahl-Andersen
NB: Knappen for å vise hele beskrivelsen har kun en visuell effekt.
NB: Knappen for å vise hele beskrivelsen har kun en visuell effekt.
Nærområdet
DNB Eiendom AS
Fra hjem til hjem
Annonseinformasjon
| FINN-kode | 447366515 |
|---|---|
| Sist endret | 23. jan. 2026 16:10 |
| Referanse | 814250059 |
Annonsene kan være mangelfulle i forhold til lovpålagt opplysningsplikt. Før bindende avtale inngås oppfordres interessenter til å innhente komplett informasjon fra meglerforetaket, selger eller utleier.