Bildegalleri
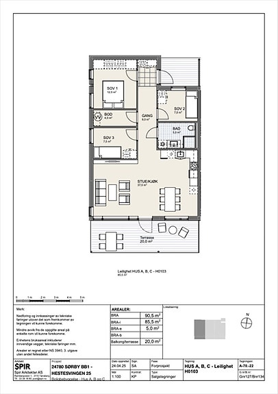
HUS A, B, C - Leilighet H0103
Sørby - BYGG C
Moderne og praktisk fireroms andelsleilighet i 1.etg.- Stor terrasse - Garasje
Prosjektets status
Planlegging
Vinter 2026
Salgsstart
19. januar for Usbl-medlemmer
Byggestart
Våren 2026
Overtakelse
Vinteren 2027
Nøkkelinfo
- Boligtype
- Leilighet
- Etasje
- 1
- Soverom
- 3
- Rom
- 4
- Internt bruksareal
- 86 m² (BRA-i)
- Bruksareal
- 91 m²
- Eksternt bruksareal
- 5 m² (BRA-e)
- Balkong/Terrasse
- 20 m² (TBA)
Visning
Beskrivelse
I andre byggetrinn på Sørby er det tre fireroms-leiligheter fra 74 til 85,5 m² BRA. Disse leilighetene passer perfekt til familier med flere barn, slik at ungene kan få hvert sitt soverom.
Arealer og innholdsbeskrivelse
Boligene er også fine til deg som ønsker å ha både et eget gjesterom og et hjemmekontor, i tillegg til et romslig hovedsoverom.
Det åpne oppholdsrommet har hjørnekjøkken med fin benkeplass, noe som gjør det trivelig å lage mat. Kjøkkenet leveres med integrerte hvitevarer. Siden alt er nytt og fresht, er det bare å møblere med spisestue og ønsket sofaløsning.
Soverommene er av god størrelse og kan enkelt møbleres med både seng og garderobe. Smarte oppbevaringsløsninger er viktig i en hektisk hverdag, og leilighetene har innvendig bod. Har du bil, kan du glede deg over egen garasjeplass.
Fra stuedelen har du utgang til en stor balkong eller markterrasse. Innred den slik du måtte ønske, enten du vil lage en liten kjøkkenhage, drømmer om et bugnende blomsterhav eller vil gjøre balkongen til et ekstra rom med spisebord og stoler, samt solseng.
Nyttige lenker
Nærområdet
Krogsveen Sandefjord
Annonseinformasjon
| FINN-kode | 447212911 |
|---|---|
| Sist endret | 22. jan. 2026 09:07 |
| Referanse | KR22.2543 |
Annonsene kan være mangelfulle i forhold til lovpålagt opplysningsplikt. Før bindende avtale inngås oppfordres interessenter til å innhente komplett informasjon fra meglerforetaket, selger eller utleier.