Bildegalleri

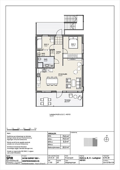
HUS A, B, C - Leilighet H0101

Bugården/Sørby

Sørby - BYGG C

Moderne og praktisk treroms andelsleilighet i 1.etg.- Stor Terrasse - Garasje

Prisantydning2 130 000 kr
Totalpris
4 272 840 kr
Omkostninger
12 840 kr
Fellesgjeld
2 130 000 kr
Felleskost/mnd.
12 050 kr
  • Planlegging

    Vinter 2026

  • Salgsstart

    19. januar for Usbl-medlemmer

  • Byggestart

    Våren 2026

  • Overtakelse

    Vinteren 2027

Nøkkelinfo

Boligtype
Leilighet
Etasje
1
Soverom
2
Rom
3
Internt bruksareal
75 m² (BRA-i)
Bruksareal
80 m²
Eksternt bruksareal
5 m² (BRA-e)
Balkong/Terrasse
20 m² (TBA)

Les mer om bruksareal her

Visning

onsdag, 04. februar
15:00 – 17:00
For å delta på visning, ber vi om at du melder deg på. Da sikrer vi at du får nødvendig informasjon og at det er satt av tilstrekkelig med tid. Kontakt megler dersom annet tidspunkt ønskes. Husk å lese salgsoppgaven før visningen, så du stiller forberedt. NB. Visning utgår dersom det ikke er noen påmeldte. Ønsker du kun å bli holdt orientert, kan du fra eiendommens hjemmeside få varsel om solgtpris, eller kontakte megler.
Visningspåmelding

Beskrivelse

Ønsker du deg en delikat, lettstelt leilighet med to soverom, kjøkken, stue og balkong. Velg mellom tre treromsleiligheter?

Arealer og innholdsbeskrivelse

Disse leilighetene passer perfekt til deg som flytter med kjæresten, som trenger et barnerom, et gjesterom til overnattingsbesøk, eller som har behov for et hjemmekontor. Dette er også fine leiligheter til deg som skal flytte fra en stor enebolig til en mindre leilighet. Leilighetene har smarte planløsninger med gode oppbevaringsmuligheter.

På en av leilighetene har man mulighet for 3 soverom. Dette kan bestilles som tilvalg (se plantegning for hvilke leiligheter).

Soverommene er av god størrelse med plass til seng og garderobeløsning. Leilighetene har en åpen, lys og luftig stue- og kjøkkenløsning med utgang til balkong. Stuedelen kan enkelt møbleres med sofa og lenestoler samt TV-løsning. Kjøkken i vinkelform gjør at kjøkkenet blir trivelig og litt mer adskilt fra stuedelen. Du har god plass til spisestue, det er bare å invitere venner og familie hjem
på middag!

Leilighetene i første etasje har direkte utgang til markterrasse på bakkeplan, mens leilighetene i andre etasje har fin balkong. Det er bare å flytte ut hit på varme, solrike dager. Den romslige plassen gjør at du lett kan lage deg et herlig uterom, med spiseplass, hvilemøbler, grønne planter og vakre blomster.

Nærområdet

Annonseinformasjon

FINN-kode447212908
Sist endret21. jan. 2026 11:20
ReferanseKR22.2541

Rapporter annonse

Annonsene kan være mangelfulle i forhold til lovpålagt opplysningsplikt. Før bindende avtale inngås oppfordres interessenter til å innhente komplett informasjon fra meglerforetaket, selger eller utleier.