Bildegalleri
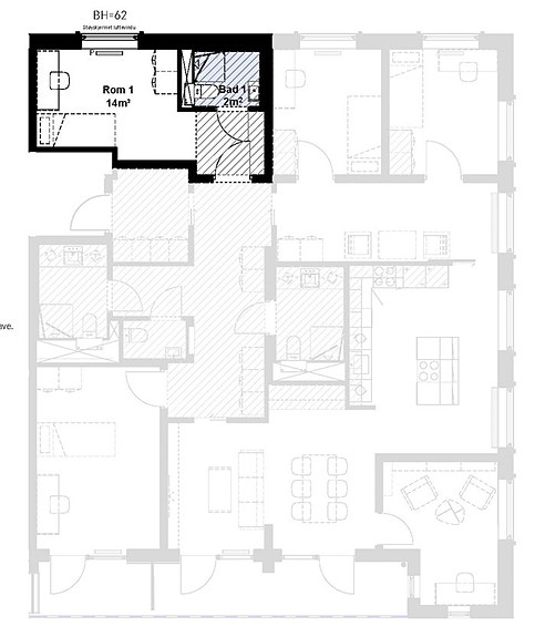
Plan 4 - Rom 1 - Dette rommet har privat bad med inngang fra eget rom
NYHET! OBOS Eierkollektiv
Obos Eierkollektiv - 4.etg - Rom 1
Prosjektets status
Planlegging
-
Salgsstart
- Salgsstart 25. februar 2026
Byggestart
-
Overtakelse
- 1.juni 2026
Nøkkelinfo
- Boligtype
- Leilighet
- Etasje
- 4
- Soverom
- 1
- Rom
- 1
- Internt bruksareal
- 42 m² (BRA-i)
- Bruksareal
- 44 m²
- Eksternt bruksareal
- 2 m² (BRA-e)
Visning
Ta kontakt for å avtale visning.Beskrivelse
Matrikkel
Gnr. 131 bnr. 108, andelsnr. 5 i Oslo kommune
Adresse
Obos Eierkollektiv - 4.etg - Rom 1
0581
Oslo
OBOS Eierkollektiv - En ny måte å eie på
OBOS Eierkollektiv er et helt nytt boligkonsept for deg mellom 18 og 35 år som vil eie, men samtidig ønsker et sosialt og inkluderende bomiljø. Her kjøper du ditt eget private rom og en andel av romslige fellesarealer - midt i et nytt, urbant nabolag på Ulven i Oslo.
Hvis du drømmer om å eie din egen bolig i Oslo, men også liker tanken på å bo sosialt og ha mennesker rundt deg, kan et eierkollektiv være midt i blinken for deg. Her får du muligheten til å komme inn på boligmarkedet på en enklere og mer tilgjengelig måte, samtidig som du bor sammen med andre som også ønsker et sosialt og inkluderende bomiljø.
Med OBOS Eierkollektiv kan du eie din egen private del av boligen, samtidig som du deler fellesarealer og hverdagsøyeblikk med andre. Det gir deg både tryggheten og langsiktigheten ved å eie - samt gleden ved å være en del av et levende fellesskap.
Meld deg på lanseringevent
I forbindelse med salgsstart har vi lanseringsevent med informasjonsmøte og visning av begge eierkollektivene i 4. etg. og i 5.etg. Meld deg på via hjemmesiden eller lenken til høyre!
Du finner også en digital visning av begge eierkollektivene på hjemmesiden.
Kort om prosjektet
Nybygg på Ulven
6 eierkollektiv, fordelt på hver sin etasje
Totalt 28 private rom
4-5 rom i hvert kollektiv
Organisert som borettslag
Forkjøpsrett for OBOS-medlemmer
Ditt private rom
Romstørrelser fra ca. 8 til 16 kvm
Alle rom leveres med fast garderobeskap og belysning
Noen rom har eget bad og/eller balkong
Mindre rom deler bad
Egen sportsbod på ca. 2,5 kvm til hvert rom
Store fellesarealer - ferdig møblert
Fellesarealene leveres ferdig møblert. I utformingen av disse har både Bygg & Boligstyling og IKEA vært med på laget, i tett samarbeid med OBOS Living Lab. Sammen har de utviklet gjennomtenkte møbleringsløsninger for fellesrommene, med fokus på funksjon, fleksibel bruk og rikelig med oppbevaringsplass. Bygg & Boligstyling har gjort konkrete møbelutvalg fra IKEAs sortiment, blant annet til spiseplasser og stuesoner, samt utarbeidet en belysningsplan som bidrar til en lun og behagelig atmosfære.
Fellesarealene er utformet for å fungere godt fra første dag - som hyggelige og innbydende møteplasser for både samvær og ro. Behagelig belysning, tekstiler og nøye utvalgte detaljer skaper en hjemlig følelse og gjør rommene enkle å ta i bruk, uten behov for ytterligere møblering.
Møbleringen viser ulike løsninger og bruksområder - fra rom med plass til ro og avslapning, til rom tilpasset arbeid, sosialt samvær eller måltider med venner. Hvert rom har fått sitt eget særpreg, både i stil og møblering, og gir et tydelig bilde av fleksibiliteten i boligen og muligheten til å skape et hjem som passer din livsstil.
Det vises for øvrig til egen oversikt over møbler og løsøre som medfølger salget av eierkollektivet, samt hva som ikke medfølger av stylingelementer i eierkollektivene.
Hvert kollektiv disponerer over 100 kvm fellesareal, med:
Romslig kjøkken
Stor spiseplass
Stue og oppholdssoner
I tillegg får beboerne tilgang til:
Takterrasse og uteområder
Fellesvaskeri
Gjesteleilighet
Stort felles kjøkken med spisestue og dagslyshage som deles med andre beboere på Ulvenplassen, totalt er det ca 300 kvm fellesareal i tillegg til eierkollektivet
Mulighet for booking av hjemmekontorplass
Inngang og gang
Inngangspartiet er boligens førsteinntrykk, og det er lagt til rette for at det skal være ryddig og organisert. Beboerne skal slippe å snuble over hverandres sko når man kommer inn. Derfor er det planlagt slik at alle får hvert sitt skap. Gangsone har også plass til ytterligere oppbevaring.
Stuen - et sted for ro når andre samles på kjøkkenet
Stuene er plassert mot gårdsrommet og har tilgang til felles balkong. Det legges til rette for TV-titting og sofaaktiviteter. Nøkkelord for dette rommet er fleksibilitet - både muligheten for å samles mange, som ved fest eller for å se på TV sammen, men også muligheten til å finne ro når andre oppholder seg på kjøkkenet.
Kjøkkenet er hjemmets hjerte
Matlaging og kjøkkenet har en sentral rolle i et kollektiv. Ofte antar man at matlagingen skjer i fellesskap og samtidig, men i praksis varierer dette. Matlaging skjer gjerne til ulike tider, avhengig av livsstil og jobbsituasjon, og matpreferanser kan også variere.
Kjøkkenet er derfor utformet slik at matlaging kan skje parallelt. Kjøkkenøya gir god flyt og flere funksjonelle stasjoner, slik at flere kan lage mat samtidig ved behov. Barstoler ved kjøkkenøya inviterer også til sosialt samvær.
For å ivareta fleksibilitet og brukervennlighet er det lagt opp til dobbelt opp av utvalgte hvitevarer, som kjøleskap og stekeovn der dette er hensiktsmessig. Dette bidrar til mindre kø, bedre flyt i hverdagen og gjør det enklere å dele kjøkkenet i et kollektiv.
Spisestuen - et naturlig samlingssted
Selv om matlaging og måltider ikke nødvendigvis skjer samtidig, kan spiseområdet fungere som eierkollektivets naturlige møteplass. Her kan beboerne samles for å diskutere hverdagslige forhold, planlegge felles aktiviteter eller nyte måltider sammen. Uttrekkbare bord og ekstra stoler gjør det enkelt å tilpasse rommet til ulike situasjoner og antall personer.
Oppvarming
Oppvarmingen er basert på vannbåren varme i form av radiatorer plassert på vegg eller i gulv. Radiatorene er fortrinnsvis plassert i oppholdsrom og gang i eierkollektivet. I tillegg leveres det elektrisk panelovn på hvert soverom i eierkollektivet.
Angrerett
Kjøper har 12 måneders angrerett ved kjøp av andel i Villrose borettslag, regnet fra overtakelse av boligen.
Angreretten er ubetinget og kan påkalles uten at kjøper oppgir noen grunn. Ved bruk av angreretten leverer kjøper tilbake boligen til utbyggingsselskapet innenfor en frist på tre måneder, og får refundert opprinnelig kjøpesum fratrukket et gebyr på kr 60 758. Dersom boligen har skader eller det er gjort verdireduserende endringer, må kjøper erstatte kostnadene forbundet med å tilbakeføre boligen til opprinnelig stand. Angreretten gjelder kun for første kjøper, og vil ikke kunne overføres til ny kjøper ved salg i bruktboligmarkedet.
Fellesgjeld/lånevilkår
Fellesgjelden i dette prosjektet er et annuitetslån over 40 år. Dette lånet løper med flytende rente som i dag har rentesats 5,19 %. Boligens felleskostnader er derfor beregnet med driftskostnader og rentekostnader på fellesgjelden etter denne satsen. For øvrig må endringer i den flytende rentesatsen forventes å medføre endringer i felleskostnadene.
Et annuitetslån er et lån som nedbetales med like store terminbeløp, helt til lånet er innfridd. I begynnelsen er derfor avdragsdelen liten, mens rentedelen er stor. Etter hvert som lånet reduseres stiger avdragsandelen og renteandelen blir mindre.
Det er ikke mulig å innfri fellesgjelden helt eller delvis, gjennom OBOS IN-ordning i dette borettslaget.
Nærområdet

OBOS BBL
Ulven Bolig AS
Utbygger
Annonseinformasjon
| FINN-kode | 447193673 |
|---|---|
| Sist endret | 02. feb. 2026 09:08 |
| Referanse | 810250629 |
Annonsene kan være mangelfulle i forhold til lovpålagt opplysningsplikt. Før bindende avtale inngås oppfordres interessenter til å innhente komplett informasjon fra meglerforetaket, selger eller utleier.