Bildegalleri

Sentrumsfaret

Aursmoen, midt i sentrum - spennende prosjekt med gunstig finansieringsmodell, perfekt for førstegangskjøpere !

Prisantydning1 183 500 kr
Totalpris
3 946 350 kr
Omkostninger
1 350 kr
Fellesgjeld
2 761 500 kr
Felleskost/mnd.
14 159 kr
  • Planlegging

    -

  • Salgsstart

    -

  • Byggestart

    -

  • Overtakelse

    -

Nøkkelinfo

Boligtype
Leilighet
Etasje
1
Soverom
1
Rom
2
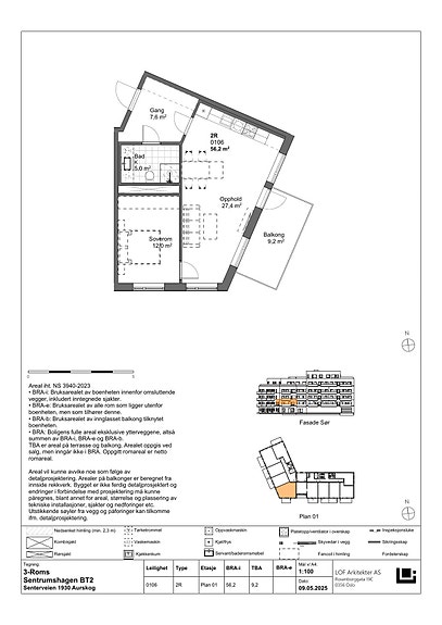
Internt bruksareal
56 m² (BRA-i)
Bruksareal
0 m²
Balkong/Terrasse
9 m² (TBA)
Energimerking
B - Mørkegrønn

Les mer om bruksareal her

Visning

Ta kontakt for å avtale visning.Visningspåmelding

Beskrivelse

Adresse

Senterveien
1930 Aurskog
1. etasje

Matrikkel

Gnr. 192 bnr. 929 i Aurskog-høland kommune

Beliggenhet, adkomst

INFORMASJONS/SALGSMØTE FOR PROSJEKTET AVHOLDES I FELLESTUEN PÅ SENTRUMSHAGEN (ADRESSE: AURFARET 23, 1930 AURSKOG) 22. JANUAR KL. 1800, VELKOMMEN SKAL DU/DERE VÆRE! TA ELLERS GJERNE KONTAKT PÅ 45007097 - PETTER AURE DERSOM SPØRSMÅL.


På Aursmoen, i hjertet av Aurskog senter kommer Sentrumsfaret, et boligkonsept med 45 smarte og effektive leiligheter, 2 og 3 roms leiligheter på 36-83 kvm. Toppleilighetene har private takterrasser. Sentrumsfaret skal oppføres ved siden av Sentrumshagen - et lekkert prosjekt med flotte kvaliteter ute og inne.

Leiligheten får gode lysforhold og alle med balkong/mark eller takterrasse. For oversikt over ledige enheter i prosjektet kopier adressen inn i nettleseren: https://www.bakke-as.no/boligprosjekter/sentrumsfaret/

Prosjektet organiseres slik at man som kjøper kan velge om man ønsker leiligheten som selveierleilighet eller borettslag, dette er en ny modell utarbeidet av BAKKE AS i samarbeid med BORI. Modell som gir kjøper stor fleksibilitet - spesielt iforhold til finansieringsmodell - velger du kjøpe drømmeboligen som borettslag vil 70% av kjøpesummen allerede være finansiert via borettslagets fellesgjeld, du trenger mao kun finansiering (egenkapital eller lånefinansiere) 30% av verdien. Kontakt megler for utfyllende informasjon rundt valgmuligheten og mulighetenen for finansiering. Spesielt for førstegangskjøpere kan dette være en god løsning for å komme inn i boligmarkedet.
Se mer om dette på : https://www.bakke-as.no/boligprosjekter/sentrumsfaret/velg-den-boformen-som-passer-deg-best-selveier-eller-borettslag-1

Prosjektet får en svært sentral beliggenhet i Aurskog - 3 min gangavstand til alle nødvendige servicetilbud som bussholdeplass, butikker. skole, barnehager og idrettsanlegg. Området byr også på et eldorado av friluftsmuligheter hele året.

Servicetilbud:

Den daglige handelen kan gjøres ved Rema 1000, Extra eller Kiwi på Aurskog senter som ligger innen 2 min. gange fra prosjektet. Her finnes det også andre gode servicetilbudtilbud som frisør, apotek, bank, kaféer, elektronikk, bensinstasjoner, legekontor og selskapslokaler.

Drøye 10 minutters kjøring til Bjørkelangen. Her finnes også det meste av servicetilbud som dagligvareforretninger (Rema 1000, Kiwi, Coop Extra) bensinstasjoner, bank, post, frisør, bibliotek, kaféer, vinmonopol, kjøpesenter og flere spisesteder. Bjørkelangen er i stadig utvikling med en rekke nyetableringer. Ved Bjørkelangen Rådhus åpnet det en ny svømmehall i november 2018.

Idrettstilbud:

Kommunen kan tilby en rekke fritidstilbud, som for eksempel Aurskog/Finstadbru Sportsklubb som tilbyr svømming, kunstgressbane, skøytebane, håndball, og sykkel. Aurskoghallen med kunstgressbane ligger kun to minutter fra ytterdøren. Aurskog har også et flott golfanlegg med flere baner, driving range og treningsområder på sommeren, samt lysløyper på vinteren. Samme sted finnes også restauranten "Fjøset" som tilbyr god mat og pub på helgen.


På Eksismoa motorpark, ca. 2 km utenfor Bjørkelangen sentrum, er det et godt motorsportmiljø i NMK Aurskog-Høland. I juni arrangeres Aurskog- Høland rally i nærområdet, noe som er et av årets store begivenheter. Bjørkelangen kan også tilby en aktiv sportsforening (BSF) med et bredt tilbud for barn og unge.


Flotte turområder:

Aurskog-Høland har et mangfold av flotte skogsområder som byr på rike muligheter for friluftsopplevelser. Med skogen i umiddelbar nærhet, har du tilgang til gode rekreasjonsmuligheter både sommer og vinter. I nærheten finner du gode bademuligheter på sommerstid i for eksempel Tævsjøen og Ulviksjøen. Røytjern er også et populært badested som ligger en kort kjøretur unna Bjørkelangen sentrum. Her finner du badestrand, badebrygge og fiskebrygge. Viksjøen og Mangensjøen ligger i området og byr også på gode fiskemuligheter. Elvedragene og sjøene innbyr også til kanopadling i idylliske omgivelser.


Urskog Fort:

Et historisk sperrefort fra 1903 og et ideelt turmål for både voksne og barn. Fortet er i dag brukt som en arena for kultur og læring, med mulighet for guidet omvisning.


Skoler og barnehage:

Kort vei til ny og flott skole på Aursmoen med 1.-10. trinn og nye Aursmoen barnehage rett ved sentrumskjernen. Det finnes også et godt utvalg av kommunale og private barnehager i området. På Bjørkelangen finnes to videregående skoler; Kjelle og Bjørkelangen videregående skole.


Transport:

Kun få minutter gange til bussholdeplass som tar deg til bl.a. Lillestrøm, Bjørkelangen og Oslo. De nærmeste holdeplassene er Aursmoen og Aurskog Sykehjem.


Hvis man ønsker å reise på handletur til Sverige er det ca. 65 minutter til Charlottenberg kjøpesenter med bil. Senteret har et sammenlagt areal på 37.000 kvm, med det meste av mat, klær og sko, sportsbutikker, svenskegodis samt Systembolaget.

BIL
Ca 28 min til Lillestrøm sentrum
Ca 45 min til Oslo sentrum
Ca 48 min til Oslo lufthavn
Ca 46 min til Rømskog Spa & Resort
Ca 15 min til Blaker togstasjon

SYKKEL
Ca 2 min til Aursmoen barnehage
Ca 2 min til Aursmoen skole
Ca 2 min til Aurskog senter
Ca 2 min til Aurskoghallen

Type, eierform og byggeår

I dette prosjektet kan man velge om leiligheten ønskes kjøpt som selveierleilighet eller som andel i borettslag. Planlagt byggestart er sommer 2026 og med estimert ferdigstillelse ultimo 2027.

Bygninger og byggemåte

Første byggetrinn av Sentrumsfaret består av to bygg over 5 etasjer. Bærekonstruksjonen utføres i en kombinasjon av betong og stål, og etableres med prefabrikkerte betongelementer og/eller plass-støpt betong.Fasadeveggene bygges som isolerte bindingsverksvegger med luftet utvendig kledning. Avhengig av valgt løsning kan deler av fasadene leveres som prefabrikkerte elementer og monteres på byggeplass. Balkongdekker utføres i betong med skråstilt innfesting. Innvendige lettvegger etableres i stenderverk av stål eller tre, kledd med gipsplater og mineralull for lydisolering. Vegger av betong sparkles og males. Utfyllende opplysninger kan leses i leveransebeskrivelsen i prospektet.

Antall rom (evt. senger)

Prosjektet tilbyr flere forskjellige størrelser og planløsninger. Leiligheter med et og to soverom.

Arealer og fordeling per etasje (NY)

- BRA-i (internt bruksareal): 56,20 kvm
- BRA-b (innglasset balkong):
- BRA-e (eksternt bruksareal):
- TBA (terrasse-/balkongareal) 9,20 kvm

Innhold

I trinnet finnes et utvalg av størrelser, 2 og 3r leiligheter, 36-83 kvm.

I Sentrumsfaret får du mer enn bare leiligheten. Du får også tilgang til gode fellesarealer, ute og inne; tilgang til en trivelig fellesstue der naboene selv kan arrangere ulike sosiale treff eller du kan leie lokalet til private selskaper og gjesteleilighet der gjestene enkelt kan overnatte i private og fine omgivelser. Dermed sparer du behov for egne "kvadratmeter", men kan nyte godt av fellesarealene. Sentrumsfaret er laget for deg som ønsker en enklere, mer sosial og prisgunstig hverdag - Mer for Mindre. I senere byggetrinn i prosjektet vil det også etableres felles takterrasse alle beboerne får tilgang til.

Standard

Lelighetene leveres komplett utstyrt og med god stand. Eikeparkett på gulv. Kjøkkenleveranse fra HTH, komplett utstyrt med integrerte hvitevarer. Delikat flislagt bad med opplegg for vaskemaskin. Vannbåren gulvvarme i alle oppholdsrom.

Hvorfor kjøpe nytt?

Boligen er i forskriftmessig stand med inntil 5 års reklamasjonsfrist
Energiøkonomiske og klimavennlige løsninger
Innflytningsklar uten tanke på vedlikeholdskostnader
Mulighet for å tilpasse materiell og fargevalg i boligen
Lave omkostninger ved kjøp

Hvorfor kjøpe i Sentrumsfaret?

- Moderne leiligheter til fastpris.
- Velg en eierformen som passer best for deg, selveier eller borettslag.
- Størrelser fra 35-83.
- Lavt forskudd på kr. 100 000 og kun kr. 50 000 for våre boligkjøpere under 34 år.
- Kjøkken fra HTH eller tilsvarende
- Hvitevarer inkludert.
- Trappefri adkomst via heis.
- Balkonger og markterrasser.
-Tilgang til felles takterrasse.

- Antatt ferdigstillelse ultimo 2027.
- Flotte opparbeidede uteområder.
- Tilgang fellesstue og gjesteleilighet

Oppvarming

Leiligheten leveres med vannbåren gulvvarme i alle oppholdsrom, elektriske varmekabler på bad samt balansert ventilasjon med varmegjenvinning.

Parkering

Det vil etableres et felles garasjeanlegg med biloppstillingsplasser, med nedkjøringsrampe via kjeller. Garasjeanlegget inngår ikke i dette byggetrinnet og vil bli oppført i forbindelse med senere utbygging. Inntil det permanente garasjeanlegget er ferdig stilt og tatt i bruk, etableres midlertidige utendørs biloppstillingsplasser for beboere i dette salgstrinnet. Disse plassene er en tidsbegrenset løsning og vil bli avviklet når det nye garasjeanlegget står ferdig. Enkelte boliger i dette salgstrinnet leveres med én garasjeplass inkludert i kjøpesummen. Inntil det nye anlegget er klart, vil disse boligene midlertidig disponere plass i garasjeanlegget tilhørende første byggetrinn på Sentrumshagen.

Et begrenset antall ekstra garasjeplasser vil også tilbys for salg, frem til ferdigstillelse av det nye anlegget. Når det nye garasjeanlegget står ferdig, vil alle beboere få mulighet til å kjøpe garasjeplass, avhengig av tilgjengelig kapasitet og etter føringer fastsatt av utbygger.

Areal og eierform (opplysninger om evt. feste)

Eierform: Eiet tomt som skal fradeles gnr. 192 bnr. 929. Tomten vil leveres ferdig opparbeidet ihht situasjonskart og beskrivelse som vist i prospektet. Ta gjerne turen innom det ferdigstilte prosjektet på nabotomten - Sentrumshagen og du vil se hvor fint dette blir.

Tilliggende fasiliteter

I Sentrumsfaret får du mer enn bare leiligheten. Du får også tilgang til gode fellesarealer, ute og inne; tilgang til en trivelig fellesstue der naboene selv kan arrangere ulike sosiale treff eller du kan leie lokalet til private selskaper og gjesteleilighet der gjestene enkelt kan overnatte i private og fine omgivelser. Dermed sparer du behov for egne "kvadratmeter", men kan nyte godt av fellesarealene. Sentrumsfaret er laget for deg som ønsker en
enklere, mer sosial og prisgunstig hverdag - Mer for Mindre.

Vei, vann og avløp

Eiendommen skal tilkobles off. vann og avløp, utbygger dekker tilkoblingsavgifter.

Reguleringsplan

Eiendommen ligger i et område regulert til boligbebyggelse, iht. detaljreguleringsplan for Aurheim.

Kopi av reguleringskart og reguleringsbestemmelser kan sees hos megler.

Diverse opplysninger

Borettslag: Sentrumsfaret Borettslag
Andelsnr.:
Andel fellesgjeld: 2761500
NB: Vær oppmerksom på andel fellesgjeld som beløper seg til 2 761 500,-

Felleskostnader for borettslaget består av drifts- og vedlikeholdskostnader samt kapitalkostnader knyttet til Borettslagets fellesgjeld. Stipulerte månedlige kostnader for første driftsår fremgår av prislisten.

DRIFTS- OG VEDLIKEHOLDSKOSTNADER

Drifts- og vedlikeholdskostnader avhenger av hvilke tjenester Borettslaget ønsker utført. Det er også andre faktorer som påvirker størrelsen på driftskostnadene slik som endringer i lønns- og prisnivå på de tjenestene og produktene som borettslaget har. Borettslaget vil også kunne velge andre tjenester enn det som er lagt til grunn i budsjettet.

Driftskostnadene i borettslaget fordeles på alle enhetene.

Driftskostnader dekker blant annet:

Strøm og oppvarming i fellesarealer

Forretningsførerhonorar

Revisjon

Vedlikehold

Forsikring av bygninger

Kabel tv og internett


Kjøper forplikter seg til å respektere den organiseringen og kostnadsfordelingen som Selger sammen med forretningsfører anser hensiktsmessig. Endelig budsjett fastsettes på borettslagets generalforsamling. Det tas forbehold om endringer i stipulerte fellesutgifter, da dette er basert på erfaringstall og budsjett fra forretningsfører.

KAPITALKOSTNADER/FELLESGJELD

Kapitalkostnader består av renter og avdrag på borettslagets fellesgjeld. Borettslaget planlegges finansiert med 70 % fellesgjeld og 30 % innskudd. Fellesgjelden er planlagt å bestå av et annuitetslån hvor de første 10 årene er avdragsfrie. Deretter nedbetalingstid på 30 år.

Kapitalkostnadene vil øke når perioden for avdragsfrihet opphører (etter 10 år). Det presiseres at renten vil endre seg i samsvar med den generelle renteutviklingen og påvirke felleskostnadene tilsvarende, uavhengig av budsjettperiode. Renteutgiftene er for tiden fradragsberettiget med 22 % etter gjeldende regler, forutsatt at andelseieren har tilstrekkelig skattbar inntekt. Nominell rente er pt. 4.8% og det er denne rentesatsen som er lagt til grunn i de stipulerte felleskostnadene. Dersom renten endres før overtagelsen, vil dette påvirke kapitalkostnadene og dermed felleskostnadene. Andel fellesgjeld og stipulerte felleskostnader for den enkelte bolig fremgår av prislisten.

Borettslaget eier eiendommen. Andelseier har ikke personlig ansvar for borettslagets fellesgjeld, men er solidarisk ansvarlig for å dekke borettslagets løpende utgifter.

Utbygger er ansvarlig for fellesutgiftene for eventuelle usolgte enheter etter ferdigstillelse.

NEDBETALING AV DIN ANDEL AV FELLESGJELDEN (IN-ORDNING)

Borettslaget vil etablere en ordning for individuell nedbetaling av andel fellesgjeld. Dette gjør at du kan innbetale hele eller deler av andel fellesgjeld i tillegg til egenkapitaldelen. Dette får virkning på de månedlige felleskostnadene som blir redusert tilsvarende reduksjonen i kapitalkostnadene for den innfridde del av andel fellesgjeld. Nedbetaling av andel fellesgjeld kan gjøres pt. 2 ganger i året etter innflytting. Det vil ikke være mulig å foreta nedbetaling før borettslaget er fullt innflyttet og fellesgjelden er etablert med den nødvendige sikkerheten. Ved den enkelte andelseiers benyttelse av IN-ordning påløper det et gebyr. Ordningen er betinget av at fellesgjelden løper med flytende rente og at det inngås en sikringsordning.

Vedtekter, regler, regnskap ol.

Om du vurderer å legge inn bud, så sett deg inn i vedtekter, husordensregler, regnskap, budsjett og årsberetning (lastes ned fra nett-salgsoppgaven på FINN eller hjemmesider). Det må påregne trappevask, dugnadsplikt, samt at det forefinnes konkrete regler om husdyrhold, fremleie og bruk av fellesarealer (om ikke annet er spesielt opplyst).

På eiendommen er det tinglyst diverse bestemmelser vedr. vannrett, vannledninger, veg og adkomstrett samt vann og kloakkledninger. Det gjøres oppmerksom på at det kan bli tinglyst ytterligere servitutter/erklæringer på eiendommen. Kjøper kan ikke motsette seg eller kreve prisavslag/erstatning for tinglysninger av øvrige nødvendige erklæringer/avtaler o.l. vedrørende sameie/borettslag, naboforhold eller forhold pålagt av myndighetene knyttet til gjennomføringen av prosjektet innenfor reguleringsplanen for prosjektet. Kjøpers bank vil få prioritet etter heftelsene som er og evt. blir tinglyst før overtakelse.

Forkjøpsrett

Det praktiseres ikke forkjøpsrett, hverken ved salgsstart eller senere omsetninger.

Prisantydning

1 183 500,- (Fast pris) / Felleskostnader: 14 159,-

Oppgjør

Hele kjøpesummen med omkostninger må være innbetalt og disponibel for megler på meglers klientkonto, senest på siste virkedag innen overtagelsen finner sted.

Solgt ihht. bustadoppføringsloven

Boligene selges til forbrukere i henhold til Bustadoppføringslova.

Dersom kjøper ikke er forbruker kommer i utgangspunktet ikke bustadoppføringslovens regler til anvendelse. Partene er dog enige om at bustadoppføringsloven kommer til anvendelse med unntak av følgende paragrafer som således ikke kan påberopes: -§§8, 12, 16, 18, 24, 31, 47, 49 og 51-54. Dersom andre paragrafer i bustadoppføringsloven inneholder bestemmelser om at de ovennevnte paragrafer kan påberopes, vil også slike bestemmelser ikke være gjeldende mellom partene.

Etter at boligene er ferdigstilte selges boligene etter Avhendingslova til både forbrukere og næringsdrivende.

Arealangivelser i salgsoppgaven

Arealangivelsene er hentet fra takst (evt tilstandsrapport).

Andre opplysninger

Selger skal, umiddelbart etter at avtale er inngått, stille garanti etter bustadoppføringslova § 12. Garantien skal gjelde fra tidspunkt for avtaleinngåelse og frem til fem år etter overtagelse. Garantien skal tilsvare minst 3 % av kjøpesummen frem til overtagelse, og minst 5 % etter overtagelse.

Er det i avtalen tatt forbehold som beskrevet i bustadoppføringslova § 12 annet ledd, andre setning, er det tilstrekkelig at selger stiller garantien straks etter at forbeholdene er falt bort, men selger skal uansett stille garanti før byggearbeidene starter.

Til det er dokumentert at det foreligger §12 garanti, har forbrukeren rett til å holde tilbake alt vederlag.

Dersom selger stiller §47 garanti, vil deloppgjør utbetales selger /byggelånsbank. Renter på klientkonto tilhører kjøper frem til overtakelse eller §47 garanti foreligger. Garantiene dtilles direkte til kjøper med kopi til megler.

Mot vederlag har kjøper rett til å få utført endrings -og tilleggsarbeider. Rettigheten begrenses oppad til 15% av avtalt vederlag. Da prosjektet og prisene er basert på at utbyggingen skal gjennomføres rasjonelt og i stor grad ved serieproduksjon, bør kjøper velge fra en tilvalgsmeny som utarbeides fra selger/entreprenør. Dette er en fravikelse av normalordningen. Til orientering opplyses det at bustadoppføringslovas §9, 2. avsnitt inneholder bestemmelse om at ønsker om endringer og tilvalg kan avvises når disse vil føre til ulemper for entreprenør/selger som ikke står i forhold til forbrukerens interesse. Dersom det likevel er mulig å få utført de ønskede endringer, vil det kunne påløpe ekstra kostnader.

Endringene blir en del av kjøpekontrakten, på samme måte som de opprinnelig avtalte hovedytelsene. Endringene innebærer at beskrivelsen av salgsobjektet i punkt 1, med vedlegg, justeres i henhold til de avtalte endringer og tilvalg. Det er også etter Endringene selger som er ansvarlig for hele leveransen av boligen/fritidsboligen, og kjøper kan forholde seg til selger ved eventuell forsinkelse eller mangler knyttet til Endringene. Kjøper er ansvarlig for å betale hele kjøpesummen, inkludert betaling for Endringene, til eiendomsmeglers klientkonto. Selgers forpliktelse til å stille fordkuddsgaranti etter denne kontrakten og bustadoppføringslova § 47 vil gjelde tilsvarende for Endringene. Utbygger gis anledning til å beregne seg et påslag på bestilte tilleggsarbeider gjort med underleverandører.

Endringsavtaler skal være skriftlige.

Kjøper kan avbestille i henhold til reglene i bustadoppføringslova §§ 52 og 53 frem til overtakelse har funnet sted. Lovens utgangspunkt er at utbygger skal holdes skadesløs ved avbestilling. Det vil si at den som avbestiller må dekke alle tap som måtte oppstå på selgers hånd. Selger kan alternativt velge å fremsette et tilbud om et fast avbestillingsgebyr jfr. bustadoppføringslovens § 54. Dersom det aksepteres av kjøper, vil det utgjøre grunnlaget for et endelig oppgjør mellom partene. Størrelsen på avbestillingsgebyret vil i tilfelle bli beregnet i det enkelte tilfelle.

Salgsprospekt og prosjektbeskrivelsen er utarbeidet for å orientere om prosjektets generelle bestanddeler, funksjoner og planlagte organisering, og er således ikke en komplett beskrivelse av leveransen. Det vises for øvrig til kundetegninger og kjøpekontrakt med vedlegg. Alle illustrasjoner, 3D animasjoner, skisser, "møblerte" plantegninger m.m. er kun ment å danne et inntrykk av den ferdige bebyggelsen, og kan ikke anses som endelig leveranse. Inntegnet utstyr/inventar medfølger ikke, og det kan derfor fremkomme elementer i presentasjonsmaterialet som ikke inngår i leveransen.

Generelle beskrivelser av prosjektet i salgs- og markedsføringsmateriell vil ikke passe for alle leiligheter. Kjøper oppfordres derfor særskilt til å vurdere solforhold, utsikt, beliggenhet i forhold terreng og omkringliggende eksisterende og fremtidig bygningsmasse mm. før et eventuelt bud inngis. Det kan være avvik mellom de planskisser, planløsninger og tegninger som er presentert i prospektet, og den endelige leveransen. Slike avvik utgjør ingen mangel ved selgers leveranse som gir kjøper rett til prisavslag eller erstatning. Dersom det er avvik mellom tegninger i prospekt / internettside og leveransebeskrivelsen i den endelige kontrakt med kjøper, vil leveransebeskrivelsen ha forrang og omfanget av leveransen er begrenset til denne. Det tas forbehold om trykkfeil i prospektet. Sjakter, innkassinger o.l. og VVS føringer er ikke endelig tegnet inn. Det gjøres oppmerksom på at utomhusplanen i salgsprospektet ikke er ferdig detaljprosjektert. Forstøtningsmurer, fallsikringer, belysning, fordeler-skap, lekeapparat, benker m.m., kummer og lignende vil bli plassert slik det finnes hensiktsmessig i forhold til terrenget. Selger har rett til å foreta endringer i prosjektet som ikke vesentlig forringer prosjektets kvalitet eller standard, herunder arkitektoniske endringer, materialvalg, mindre endringer i konstruksjon, rørgjennomføringer og/eller tomtetilpasninger. Slike endringer er ikke å anse som mangler ved ytelsen. Det samme gjelder de endringer som må gjøres som følge av kommunens byggesaksbehandling og krav i ramme- og igangsettingstillatelser, samt andre offentlige tillatelser.

Selger tar forbeholder seg retten til å overdra rettigheter og plikter etter denne kjøpekontrakt til et annet selskap (for eksempel et utbyggerselskap). Kjøper aksepterer en slik eventuell overdragelse.

Selger står fritt til å akseptere eller avslå ethvert bud, herunder bestemme om de vil akseptere salg til selskaper, samt om de vil akseptere salg av flere leiligheter til samme kjøper. Selger forbeholder seg retten til uten varsel å kunne endre priser og betingelser for usolgte leiligheter.


Selger tar følgende forbehold for gjennomføring av kontrakten:

- kommunen gir ramme og igangsettelsestillatelse

- byggelånet er åpnet

- endelig beslutning om igangsetting i utbyggers styre

De ovenfor nevnte forbehold gjelder for en periode på inntil 8 måneder fra 01.02.26 og selgers frist for å gjøre forbehold gjeldende er 01.10.26. Dersom selger ikke har sendt skriftlig melding til kjøper om at forbehold gjøres gjeldende innen fristen, er selger endelig juridisk bundet av kontrakten. Meldingen må angi hvilket forbehold som gjøres gjeldende, og må være kommet frem til kjøper innen den angitte frist per e-post eller rekommandert brev.

Dersom selger gjør forbehold gjeldende, gjelder følgende:
- Denne kjøpekontrakt bortfaller, med den virkning at ingen av partene kan gjøre krav gjeldende mot den annen part på grunnlag av kontraktens bestemmelser

- Ethvert beløp som kjøper har innbetalt skal, inkludert opptjente renter, uten ugrunnet opphold tilbakeføres til kjøper

Ved overtagelse må det påregnes at det gjenstår mindre utvendige eller innvendige arbeider på eiendommens fellesarealer. Selger tar forbehold om å foreta endringer/omregulering av omkringliggende bebyggelse, eventuell regulering av enkeltseksjoner til næringsvirksomhet og endringer av utomhus-arealer i forhold til det som er presentert for kjøper.

Budgivning

Alle bud skal inngis skriftlig til megler. Benytt "Gi bud"-knappen på våre annonser for å registrere ditt bud elektronisk. Dette er en enkel og sikker løsning som lar deg signere budet elektronisk ved hjelp av BankID.

Overtagelse

Avklares i forbindelse med budgivning.

Lov om hvitvasking

I henhold til lov om hvitvasking og terrorfinansiering har megler plikt til å gjennomføre kontrolltiltak ovenfor kunder. Dette innebærer å bekrefte kunders identitet på bakgrunn av fremvist gyldig legitimasjon. Videre innebærer det å få bekreftet identiteten til eventuelle reelle rettighetshavere, og å innhente opplysninger om kundeforholdets formål.
Kjøpers innbetaling skal foretas fra norsk bank/finansinstitusjon.
Selgers oppgjør vil skje til konto i norsk bank/finansinstitusjon.
Dersom megler får mistanke om brudd på hvitvaskingsreglementet i forbindelse med en eiendomshandel, og han ikke klarer å få avkreftet denne mistanke, har han plikt til å rapportere dette til Økokrim. Melding sendes Økokrim uten at partene varsles. Megler kan i enkelte tilfeller også ha plikt til å stanse gjennomføring av handelen.

Nærområdet

Annonseinformasjon

FINN-kode446399228
Sist endret17. jan. 2026 03:29
Referanse6250010

Rapporter annonse

Annonsene kan være mangelfulle i forhold til lovpålagt opplysningsplikt. Før bindende avtale inngås oppfordres interessenter til å innhente komplett informasjon fra meglerforetaket, selger eller utleier.