Bildegalleri

Kleppekollen 4, 5 og 6

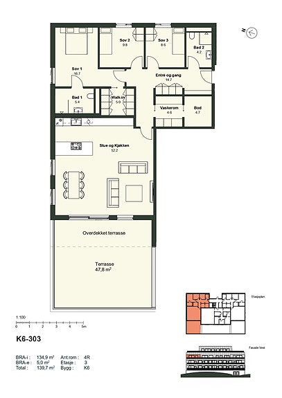
K6-303

Prisantydning9 990 000 kr
Totalpris
10 003 150 kr
Omkostninger
13 150 kr
Fellesgjeld
0 kr
Felleskost/mnd.
3 324 kr
  • Planlegging

    2024

  • Salgsstart

    Oktober 2024

  • Byggestart

    Høsten 2025

  • Overtakelse

    31.02.27-01.10.2027

Nøkkelinfo

Boligtype
Leilighet
Etasje
3
Soverom
3
Rom
4
Internt bruksareal
134 m² (BRA-i)
Bruksareal
139 m²
Eksternt bruksareal
5 m² (BRA-e)

Les mer om bruksareal her

Visning

Ta kontakt for å avtale visning.Visningspåmelding

Beskrivelse

BESKRIVELSE


BOLIGTYPE

Leilighet / Eierseksjon


AREALER

Totalt bruksareal: 139,9m²

  • BRA-i: 134,9 m²
  • BRA-e: 5,0 m²
  • BRA-b: 0,0 m²

4698,00 m² eiet tomt


TOTALPRIS INKL. OMKOSTNINGER

I tillegg til kjøpesummen må kjøper betale:

Dokumentavgift kr 13 150,00,-


Dersom eiendommen selges til prisantydning og det kun tinglyses ett pantedokument, er totalprisen inkl. offentlige gebyrer, avgifter og øvrige kostnader kr 10 003 150,-. Det tas forbehold om endringer i offentlige gebyr.


OM BOLIGEN

Leilighet


Dette er et utdrag fra prosjektets salgsoppgave. For komplett salgsinformasjon henvises det til prosjektets hovedside, eller kontakt eiendomsmegler for mer informasjon.


OM OPPDRAGET


EIENDOMMEN

Høgatun 11, 5308 KLEPPESTØ

8/1062/0/0 og 8/1063/0/0 i Askøy


SELGER

Øvre Kleppevegen AS


EIER

Øvre Kleppevegen AS


EIENDOMSMEGLER

Oppdragsnummer: 22610044

Ansvarlig megler:


Mekleriet Bergen sentrum

Mekleriet AS

NO 917 989 338 MVA


PROSJEKTETS OPPDRAGSNUMMER

Denne boligen er del av prosjektet "Kleppekollen", og byggetrinnet "Kleppekollen 4, 5 og 6". Byggetrinnet består av 14 enheter.


For å finne komplett salgsinformasjon, henvises interessenter til prosjektets hovedside med hovedoppdragsnummer 2260016. Kontakt eiendomsmegler hvis noe er uklart.


Nærområdet

Annonseinformasjon

FINN-kode446176216
Sist endret18. jan. 2026 08:43
Referanse22610044

Rapporter annonse

Annonsene kan være mangelfulle i forhold til lovpålagt opplysningsplikt. Før bindende avtale inngås oppfordres interessenter til å innhente komplett informasjon fra meglerforetaket, selger eller utleier.