Bildegalleri
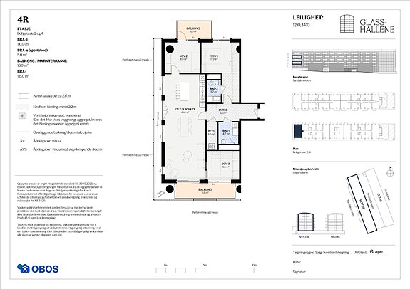
Plantegning - Leilighet 1210
Vestre Glasshall - Salgstrinn 1
Andelsleilighet: Glasshallene Vestre - salgstrinn 1
Prosjektets status
Planlegging
- Under planlegging
Salgsstart
- 3.februar 2026
Byggestart
- Senest februar 2027
Overtakelse
- Estimert 2.halvår 2028
Nøkkelinfo
- Boligtype
- Leilighet
- Etasje
- 2
- Soverom
- 3
- Rom
- 4
- Internt bruksareal
- 110 m² (BRA-i)
- Bruksareal
- 115 m²
- Eksternt bruksareal
- 5 m² (BRA-e)
- Balkong/Terrasse
- 16 m² (TBA)
Visning
Beskrivelse
Matrikkel
Gnr. 77 bnr. 88 Fnr. 1 i Oslo kommune
Prisinformasjon
Ordinærpris
Totalpris: 14 359 725,-
Innskudd: 8 920 000,-
Fellesgjeld: 5 380 000,-
Omkostninger: 59 725,-
Fellesutgifter år 1-5: 26 650,-
Fellesutgifter etter år 6: 31 611,-
Adresse
Glasshallene Vestre - salgstrinn 1 - Leilighet 1210
0484
Oslo
Om prosjektet
Midt i hjertet av Nydalen ligger Schibsteds gamle avistrykkeri, et ikonisk bygg med helt unike kvaliteter. På 90-tallet, på papiravisenes storhetstid, var det her det skjedde - det var her papirpressene og menneskene jobbet på spreng, her VG ble produsert i opptil 500 000 eksemplarer om dagen og her en viktig del av Norges mediehistorie ble til.
Og med en takhøyde på nesten 21 meter, enorme glassflater, betonggulv og mektige søyler var det en helt spesiell arbeidsplass, også arkitektonisk.
De neste årene har OBOS en stor og spennende oppgave foran seg: De skal transformere Glasshallene til ca. 153 nye leiligheter, med en stor, offentlig park og et levende nabolag rett utenfor døra. Her vil det komme noe for alle faser og livssituasjoner: Fra effektive toroms og romslige fireroms leiligheter, samt luftige, dobbelthøye toppleiligheter.
Og ikke minst: Sammen med Grape Arkitekter skal OBOS sørge for å ivareta og videreføre byggets tydelige industrielle karakter, samtidig som de skal tilføre gode bokvaliteter - kvaliteter som skal stå i kontrast til det røffe, kvaliteter som skal tilføre prosjektet varme, natur og liv.
Målet er at Glasshallene skal bli et godt sted å bo, et fint sted å møtes - et sted med flotte fellesområder, et livlig byliv og en grønn og variert park perfekt både for store og små. Her skal det være noe for alle, uansett om man ønsker å drikke kaffe med gode naboer, ta med barna på en lekeplass eller helst vil sitte i fred og ro på en benk.
Om området
I Nydalen bor du i rolige omgivelser med nærhet til alt du trenger, som restauranter, butikker, kino, teater, biblioteket, skoler, barnehager - ja, listen er lang! I tillegg er det kort vei til både Akerselva og marka, flere badeplasser og flotte turstier. Med T-banen rett rundt hjørnet er du i byen på et blunk - under 15 minutter til Oslo Sentralbanestasjon.
Alt dette, og enda mer, er med på å gjøre Glasshallene til et av Oslos mest spennende boligprosjekter. Det er et prosjekt som kombinerer historie og moderne arkitektur, som har inkludering og fellesskap som tydelig rettesnor, og som kommer til å bli et løft ikke bare for Nydalen, men også en møteplass for hele Oslo - på tvers av generasjoner.
Bor du i Nydalen, bor du i nærheten av det meste. Her finner du et stort utvalg av butikker, koselige caféer og bakerier, restauranter med varierte menyer, som italiensk i verdensklasse, sushi og spennende indiske retter. Med andre ord trenger du ikke reise langt for en sosial og hyggelig kveld, det meste ligger en kort gåtur unna.
Liker du å fylle kalenderen med kulturopplevelser, har du både Riksteateret, Odeon Kino og Deichman like ved, i tillegg til at du kan rusle bort til Lillo Gård - et historisk og sjarmerende område med et torg som yrer av liv. I Nydalen er det med andre ord alltid noe som skjer, alltid noe å være med på - ja, hvis du vil, da!
Har du mer behov for fred og ro, er Akerselva med det historiske industrimiljøet et perfekt utgangspunkt. Den renner hele veien fra Maridalsvannet, gjennom Nydalen og ned til Bjørvika, og byr på fine turmuligheter, uansett om du går ned mot sentrum eller opp mot marka. Her kan du gå, sykle eller jogge, her kan du utforske nye stier og nye deler av byen - og ikke minst stoppe for å bade og nyte livet.
Og på mange måter er det akkurat dette Nydalen handler om: Å nyte livet, å stresse ned, å ha alt det du trenger, som butikker, skoler og barnehager, rett i nærheten, samtidig som du kan hoppe på T-banen og være i sentrum av Oslo på under 15 minutter.
Fremtidig park
Sør for Glasshallene planlegges det noe stort: en grønn og frodig offentlig park. I tillegg planlegges det et spennende og levende bygulv i Glasshallene - et sted hvor mennesker ikke bare kan bo, men også leve og nyte livet.
For at mennesker skal trives i hjemmene sine, i nabolaget sitt, er det helt avgjørende med gode møteplasser - et sted å ta en kaffe, komfortable sittegrupper og inspirerende uteområder, steder som bidrar til inkludering og fellesskap på tvers av generasjoner.
Akkurat derfor er det å skape et levende bygulv, med aktivitetsutbud og næringsvirksomhet, en stor og viktig del av nabolaget. Målet er at Glasshallene skal bli et sted hvor både store og små kan møtes for å spise, drikke, handle, jobbe, le og skravle - et sted som ikke bare vil komme beboerne i Nydalen, men hele Oslo til gode.
Nydalens nye, grønne lunge
Sør for Glasshallene planlegges det også en stor og frodig offentlig park, med åpne gressflater, lekeområder, aktivitetsfelt og rolige steder for ettertanke. Hvor det nå er grus og sprukken asfalt, vil det bli grønt gress, trær, fugler, insekter - og folk. I Glasshallene planlegges det for et aktivitets hus hvor barn og ungdom står i sentrum. Samtidig er OBOS opptatt av å balansere behovet for fellesskap og privatliv. Iblant ønsker man å være sosial, andre ganger ikke, akkurat derfor vil det komme mer skjermede områder for de som bor i prosjektet, blant annet Trykkerihagen: et hyggelig gårdsrom, et opphøyd og tilbaketrukket grøntområde mellom hallene for beboerne i Glasshallene.
For Glasshallene er et boligprosjekt som strekker seg lenger, som byr på fellesarealer og sosiale møteplasser slik at beboerne får mer plass. Slik at beboerne enkelt kan velge og veksle mellom fellesskap og privatliv - slik at beboerne kan leve og nyte livet akkurat som de vil.
Fellesarealer
OBOS ønsker å tilby en hyggelig og fleksibel møteplass utenfor leilighetene, en sosial og hjemmekoselig sone med innbydende interiør og moderne design - et sted hvor beboerne har lyst til å være, lyst til å møtes.
Et fellesområde som er like perfekt for små som for store treff, hvor du kan ta en kaffe med gode naboer, venner eller familie, eller bare lese en bok i fred og ro.
I Glasshallene legges det til rette for gode møter mellom mennesker. I Østre glasshall finner du trivelige fellesarealer som inviterer til både hverdagsprat og hyggelige sammenkomster. Enten du vil lage mat sammen med naboer på felleskjøkkenet, spise et måltid i spisestuen eller slappe av i TV-stuen, er det alltid rom for både fellesskap og ro. Når familie eller venner kommer på besøk, kan du enkelt booke en komfortabel gjesteleilighet. På den måten er det alltid plass til dem du er glad i.
I Glasshallene er målet å skape et varmt og inkluderende bomiljø der du kan være sosial når du vil - og nyte stillheten når du trenger det. Her vil du finne alt du trenger, som ekstra botteplass, sittegrupper, langbord, til og med et velfungerende kjøkken slik at du kan invitere og arrangere - kanskje til en spillkveld, kanskje til en felles 17. mai-frokost, mulighetene er mange og valget er ditt!
Poenget er at livet og hjemmet ikke trenger å stoppe ved dørkarmen. Når omgivelsene tilrettelegger for inkludering og fellesskap, er det utrolig mye hyggelig som kan skje: nye venner, nye relasjoner, nye opplevelser.
Og til syvende og sist er det dette vi jobber mot, dette det handler om: å gi beboerne i Glasshallene mulighet til å velge og veksle mellom privatliv og fellesskap, på tvers av generasjoner, år etter år - det er sånt det blir trivsel og liv av!
Fellesarealet består av:
- Bookbart gjesterom med dobbeltseng, arbeidsplass, eget bad og uteplass/balkong.
- Felleskjøkken og spisestue kan reserveres som selskapslokale.
- Fellesarealet ligger sentralt i Østre glasshall, med inngang fra Trykkerihagen og god inne-ute-kontakt.
- Ca. 220 m², inndelt i ulike soner for forskjellig aktivitet.
Parkering
4-roms leiligheter i prosjektet vil gis mulighet til kjøp av bruksrett til parkeringsplass i nabogarasjen på et senere tidspunkt, nærmere ferdigstillelse av parkeringsgarasjen. Antall bruksretter til p-plasser er begrenset, og dersom man velger å ikke kjøpe parkeringsplass når tilbudet gis, mister en mulighet til å kjøpe av parkeringsplass.
Parkeringsplassene må fullt ut finansieres av kjøper og det tegnes egen kjøpekontrakt for parkeringsplassen. Etter overlevering av parkeringsplass i garasjeanlegg vil bruksretten til parkeringsplassen være fritt omsettelig til andelseiere i borettslagene i Trykkeriet Nydalen. Man kan ikke eie en parkeringsplass i garasjeeiendommer uten å være andelseier i ett av borettslagene på Trykkeriet.
En parkeringsplass vil koste kr. 750.000,-. Lader for el-bil vil tilbys som tilvalg. Felleskostnader er stipulert til kr 300,-.
I perioden mellom innflytting i Glasshallene og ferdigstillelse av garasjeanlegget under naboeiendommen vil leiligheter som gis mulighet til kjøp av parkeringsplass få tilbud om leie av midlertidig parkeringsplass. Enten i nærliggende parkeringsanlegg eller som midlertidig opparbeidet utendørs parkering i nærområdet. Leie av midlertidig parkering må påregnes annen leieavtale med individuell leiekostnad, anslått til opptil ca. kr 2 200 per måned per plass. Dersom boligen selges videre i perioden før permanente parkeringsplasser tilbys for kjøp, vil retten til å kunne kjøpe parkeringsplass følge boligen.
Kvalitet, standard og tilvalg
Det vil være mulig å gjøre tilvalg i en tidlig fase av prosjektet, og tilvalsprosessen foregår i en tidsbegrenset periode. Ved tilvalg kan boligkjøper bestille oppgraderinger og tilleggskjøp ut fra en tilvalgsportal. Ved tilvalg kan boligkjøper også booke tilvalgsmøte med kundekontakt for prosjektet. Leiligheter vil i tidsperioden kunne velge mellom ulike interiørkonsepter, se beskrivelse under eget punkt. Det leveres prefabrikerte baderomskabiner, og tilvalg på bad vil skje fra valglister, da baderomskabinene produseres tidlig i byggeprosessen.
Eksempler på tilvalg:
- Parkett
- Fliser
- Elektro: stikk, downlights, IKT
- Kjøkken: utvalgte fronter, benkeplater, håndtak, skuffer, armatur og hvitevarer. (Vill gjøre oppmerksom på at vann, avløp, ventilasjon og andre faste tekniske elementer i utgangspunktet ikke kan flyttes.)
- Veggfarger
- Innerdører
Oppvarming
Leilighetenes grunnoppvarming skjer via fjernvarme og det leveres termostatstyrt vannbåren gulvvarme i stue og kjøkken. På bad leveres det enten vannbåren gulvvarme eller elektriske varmekabler.
Energimerking
Det blir utstedt energiattest for boligdelen av bygget ved ferdigstilling. Det vil ikke leveres energiattest for den enkelte bolig. Boligdelen av bygget får energimerke B eller bedre. Boligens varmetap og energibehov er dimensjonert iht. TEK 17.
Innflytting
Selger tar sikte på å ferdigstille boligene 2. halvår 2028, men dette tidspunkt er foreløpig og ikke bindende.
Fellesgjeld/lånevilkår
Fellesgjelden i dette prosjektet er et annuitetslån over 40 år med 5 års avdragsfrihet. Dette lånet løper med flytende rente som i dag har rentesats 4,79%. Boligens felleskostnader er derfor beregnet med driftskostnader og rentekostnader på fellesgjelden etter denne satsen. Når fellesgjelden nedbetales fra år 6 må felleskostnadene forventes å øke. Prislisten for prosjektet viser hva dette er beregnet til (kontakt prosjektselger for fullstendig prisliste). For øvrig må endringer i den flytende rentesatsen forventes å medføre endringer i felleskostnadene.
Et annuitetslån er et lån som nedbetales med like store terminbeløp, helt til lånet er innfridd. I begynnelsen er derfor avdragsdelen liten, mens rentedelen er stor. Etter hvert som lånet reduseres stiger avdragsandelen og renteandelen blir mindre.
Det er mulig å innfri fellesgjelden helt eller delvis, gjennom OBOS IN-ordning enten ved ferdigstillelse eller to ganger i året etter innflytting.
Nærområdet

OBOS BBL
Nydalen Næringseiendom As
Utbygger
Annonseinformasjon
| FINN-kode | 445907725 |
|---|---|
| Sist endret | 13. jan. 2026 09:52 |
| Referanse | 810250845 |
Annonsene kan være mangelfulle i forhold til lovpålagt opplysningsplikt. Før bindende avtale inngås oppfordres interessenter til å innhente komplett informasjon fra meglerforetaket, selger eller utleier.