Bildegalleri

Urtehagen - Bo Brøset Rekkehus Trinn 2

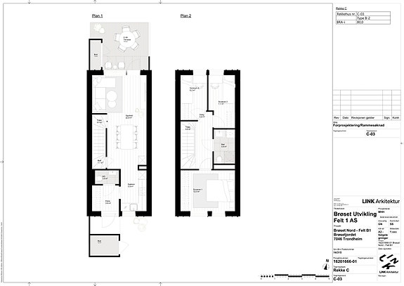
C-03

Prisantydning5 890 000 kr
Totalpris
5 928 560 kr
Omkostninger
38 560 kr
Felleskost/mnd.
1 570 kr
  • Planlegging

    Høst 2025

  • Salgsstart

    November 2025

  • Byggestart

    2026

  • Overtakelse

    2027/2028

Nøkkelinfo

Boligtype
Rekkehus
Soverom
3
Internt bruksareal
80 m² (BRA-i)
Bruksareal
85 m²
Eksternt bruksareal
5 m² (BRA-e)

Les mer om bruksareal her

Visning

søndag, 15. februar
12:00 – 14:00
Våre visninger har påmelding. Dette gjør vi for å kunne yte bedre service for våre kunder. Verdifullt for boligkjøper og for oss. Vi anbefaler at salgsoppgaven lastes ned digitalt før visning, og ring oss gjerne på forhånd for spørsmål om boligen. Passer ikke angitt tidspunkt, ta kontakt så finner vi en løsning. Skulle det mot formodning ikke være påmeldte til angitt visningstidspunkt vil ikke visning bli gjennomført.
Visningspåmelding

Beskrivelse

Beliggenhet

10-minuttersbyen er en betegnelse på fremtidens byutvikling, og betyr nærhet mellom boliger, arbeidsplasser og daglige gjøremål. Det skal være en målsetning at alle har tilgang til flest mulig funksjoner som handel, turområder, barnehage, skole og helsetilbud innenfor 10 minutters gangavstand fra der de bor.

Å bo på Brøset skal gjøre det enkelt og naturlig for innbyggerne å gjøre de bærekraftige valgene i hverdagen. Med miljøvennlige alternativer som buss og sykkel har du kort vei til det meste. Alt fra servicefunksjoner, kjøpesentre, sentrum og kulturtilbud, studiesteder, arbeidsplasser og marka er i umiddelbar nærhet. Perfekt for deg som ønsker å bo litt mer luftig og grønt, samtidig som du kan glede deg over alt det byen har å by på.

Ferdigattest

Utbygger plikter å fremskaffe ferdigattest når eiendommen er ferdigstilt.

Ligningsverdi (formuesverdi)

Formuesverdi fastsettes av skatteetaten etter ferdigstillelse.

Boligkjøperforsikring

Advokatforsikring er et advokattilbud fra HELP. Du betaler ingen timepris. Forsikringen gir deg advokathjelp til saker knyttet til kjøpet av din nye bolig. Advokathjelpen omfatter også de viktigste rettsområdene du vil støte på i privatlivet, og gjelder i tillegg din sekundær- og fritidsbolig. Forsikringen koster kr 14 000, og gjelder i 5 år fra kontraktsignering. Meglerforetaket mottar kr 2 000 i kostnadsgodtgjørelse for formidling av forsikringen. Vi tar forbehold om pris- og vilkårsendringer. For mer informasjon se www.help.no.

Nærområdet

Annonseinformasjon

FINN-kode445887808
Sist endret03. feb. 2026 09:34
Referanse492510692

Rapporter annonse

Annonsene kan være mangelfulle i forhold til lovpålagt opplysningsplikt. Før bindende avtale inngås oppfordres interessenter til å innhente komplett informasjon fra meglerforetaket, selger eller utleier.