Bildegalleri
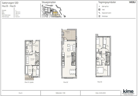
Hus 6
Tidløse rekkehus på Skjold
Rekkehus Sætervegen 12D
Prosjektets status
Planlegging
-
Salgsstart
-
Byggestart
-
Overtakelse
-
Nøkkelinfo
- Boligtype
- Rekkehus
- Soverom
- 4
- Internt bruksareal
- 130 m² (BRA-i)
- Bruksareal
- 130 m²
Beskrivelse
Om prosjektet
I Sætervegen på Skjold kommer åtte moderne rekkehus i et etablert og barnevennlig område. Boligene er tegnet for å gi deg og familien en komfortabel og trygg hverdag, med gode planløsninger og en flott beliggenhet i terrenget som danner et koselig tun. Alle boligene har
private uteplasser og to av enderekkehusene har i tillegg private takterrasser med fantastisk utsikt.
Her har du muligheten til å skape et hjem som både er praktisk og estetisk tiltalende - perfekt for familien som ønsker å vokse i trygge og naturskjønne omgivelser.
Tidløs design og gjennomtenkte detaljer
Rekkehusene i Sætervegen er inspirert av den rene, funksjonelle og samtidig varme estetikken som kjennetegner dansk arkitektur og design. En balanse mellom moderne uttrykk og klassiske kvaliteter, der lys, materialer og håndverk får spille hovedrollen.
For å understreke denne inspirasjonen får alle boligene levert den ikoniske PH5-lampen fra Louis Poulsen - et dansk designikon som har preget hjem verden over siden 1958. Lampen ble designet av Poul Henningsen, som viet sitt liv til å forstå lysets form og funksjon.
Med sitt karakteristiske !erskjermssystem gir PH5 et mykt, blendefritt lys og et uttrykk som er like aktuelt i dag som for over seksti år siden. Den representerer essensen av dansk design: tidløs, funksjonell og vakker - en påminnelse om at godt design aldri går av moten.
Rekkehus formet rundt en naturlig kolle
Arkitekten har formet byggene rundt en naturlig kolle. Denne ligger som et midtpunkt mellom !ere eiendommer og er frodig beplantet med både pryd og nyttevekster.
Den grønne kollen er selve hjertet i prosjektet - et lite stykke nærnatur som både deler og samler. Her kan barna leke fritt mens naboene tar en kaffe i sola. Et naturlig samlingspunkt for fellesskap, lek og trivsel - rett utenfor døren.
Bebyggelsen er delt opp i to rekker, noe som spiller videre på skala i strøkskarakteren. I mellomrommet er det lagt en god og bred trappeforbindelse som forbinder adkomstsiden men den mer private hagesiden.
Det er to typer rekkehus; tre etasjers hus med stue og kjøkken i midtplanet, og to etasjers hus med takterrasse og loftstue.
Inngangspartiene er trukket inn og gitt en fasade av tegl for å gi en lun adkomst beskyttet mot vær og vind. Mot hagen er det også benyttet både i fasader, pipeelementer, utepeiser og skillevegger. Dette gir private uteplasser med god kontakt med den naturlige kollen, med felles uteopphold og barnas lek. Utepeisene blir et naturlig samlingspunkt for familien der man kan samles rundt flammene.
Det er ellers valgt tre i to farger for å skape variasjon i byggene. Det er valgt varmt brunt panel over teglen og lyst panel på toppetasjene.
Formspråket er inspirert av dansk modernisme og Arne Jacobsens tidløse rekkehus i Klampenborg - med rene linjer, tegl i sokkel og et varmt rødt platetak. Resultatet er en arkitektur som kombinerer lekenhet, funksjon og solid materialkvalitet.
Fremdriftsplan og ferdigstillelse
Fra vedtatt igangsettelse vil byggetid være ca 16 mnd. Frist for vedtak om igangsetting er 31.08.2026. Igangsetting kan vedtas før denne dato.
Garasje/ parkering
Det blir parkeringsanlegg med 6 parkeringsplasser. 1 utvendig parkeringsplass er avsatt til gjesteparkering.
Parkeringsplassene selges nummerert etter «første mann til mølla»-prinsippet, se nærmere informasjon om dette i prislisten. Det er i utgangspunktet maks en parkeringsplass per bolig, men dersom noen av boligene ikke kjøper parkeringsplass vil resterende parkeringsplasser bli solgt i etterkant av prosjektet. Disse vil da bli solgt etter «første mann til mølla»-prinsippet. Konferer med megler om hvor det er ledige plasser.
Det etableres sykkelparkering i felles parkeringsgarasje og utendørs i samsvar med reguleringsplanens bestemmelser.
Organisasjonsform
Boligene blir organisert som seksjonssameie med hus 1 - 8 som boligseksjoner. Parkeringsanlegg vil bli seksjonert som egen næringsseksjon. Det tas forbehold om korrigeringer i forbindelse med Bergen Kommune sin behandling av fradeling, oppmåling og seksjonering. Det forutsettes at kjøper aksepterer vedtektene som etableres som grunnlag for avtalen.
Beliggenhet
Fra boligene er det kort vei til !ere idrettsanlegg med aktiviteter for hele familien. Både Skjold-, Midtun- og Apeltun skole ligger innenfor gangavstand, og det er cirka 6 minutter gange til bybanestoppet Skjold. Bybanen har avganger hvert 15. minutt, og tar deg til Flesland på 14 minutter, og sentrum på under 30 minutter.
Tomt
Eiet tomt.
Samlet areal blir ca 1450 kvm.
For alle boligene i prosjektet er opplyst areal kun en ca. angivelse da tomten ikke er oppmålt, og endelig størrelse kan avvike fra det som er opplyst. Kjøper må som følge av dette akseptere avvik på tomtestørrelsen. Eksakt tomteareal vil først fremkomme etter sammenføying/fradeling, og når endelig oppmåling er utført av kommunen.
Tomten disponeres av seksjonseierne i henhold til seksjonsbegjæring og/eller eierseksjonssameiet sine vedtekter.
Det opparbeides et felles uteområde som består av områder for lek og aktivitet, samt områder for opphold. Selger ferdigstiller alle uteareal iht. vedlagt leveransebeskrivelse fra entreprenør, jf. Utenomhusanlegg. Siden prosjektet ikke er detaljprosjektert, tas det forbehold om at det kan komme endringer på fellesarealer og utomhusanlegg.
Utomhusarealene ferdigstilles samtidig med ferdigstillelse av de enkelte bygg eller så snart årstiden tillater det.
Solgt ihht. bustadoppføringsloven
Eiendommen selges ihht bustadoppføringsloven og dens bestemmelser om garanti og sikring av innbetalte midler. Kjøpesummen vil ikke overføres før oppgjørsavdelingen har mottatt ferdigattest/midlertidig brukstillatelse eller nødvendige garantier.
Lov om hvitvasking
I henhold til lov om hvitvasking og terrorfinansiering har megler plikt til å gjennomføre kontrolltiltak ovenfor kunder. Dette innebærer å bekrefte kunders identitet på bakgrunn av fremvist gyldig legitimasjon. Videre innebærer det å få bekreftet identiteten til eventuelle reelle rettighetshavere, og å innhente opplysninger om kundeforholdets formål.
Dersom megler får mistanke om brudd på hvitvaskingsreglementet i forbindelse med en eiendomshandel, og han ikke klarer å få avkreftet denne mistanke, har han plikt til å rapportere dette til Økokrim. Melding sendes Økokrim uten at partene varsles. Megler kan i enkelte tilfeller også ha plikt til å stanse gjennomføring av handelen.
Nyttige lenker
Nærområdet
ZMegleren AS
Webu 2 AS
Utbygger
Annonseinformasjon
| FINN-kode | 445222414 |
|---|---|
| Sist endret | 09. jan. 2026 09:53 |
| Referanse | 60250222 |
Annonsene kan være mangelfulle i forhold til lovpålagt opplysningsplikt. Før bindende avtale inngås oppfordres interessenter til å innhente komplett informasjon fra meglerforetaket, selger eller utleier.