Bildegalleri

Solheim boligsameie

Ende, beliggende mot syd. Solrik uteplass.

Prisantydning3 950 000 kr
Totalpris
3 975 114 kr
Omkostninger
25 114 kr
Felleskost/mnd.
2 133 kr
  • Planlegging

    Under planlegging

  • Salgsstart

    Januar 2026

  • Byggestart

    1.kvartal 2026

  • Overtakelse

    3. kvartal 2026

Nøkkelinfo

Boligtype
Enebolig
Etasje
1
Soverom
2
Primærrom
65 m²
Bruksareal
65 m²

Les mer om bruksareal her

Fasiliteter

Barnevennlig
Balkong/Terrasse
Garasje/P-plass
Parkett
Peis/Ildsted
Turterreng
Moderne
Balansert ventilasjon

Visning

onsdag, 28. januar
17:00 – 17:30
Velkommen til visning i Varnaveien 31, 1526 Moss hos Mesterbygg Moss AS. Kontakt oss gjerne i forkant av visning om du har noen spørsmål.
Visningspåmelding

Beskrivelse

Om eiendommen


Boligtype

KjedetEnebolig / Eierseksjon


Arealer

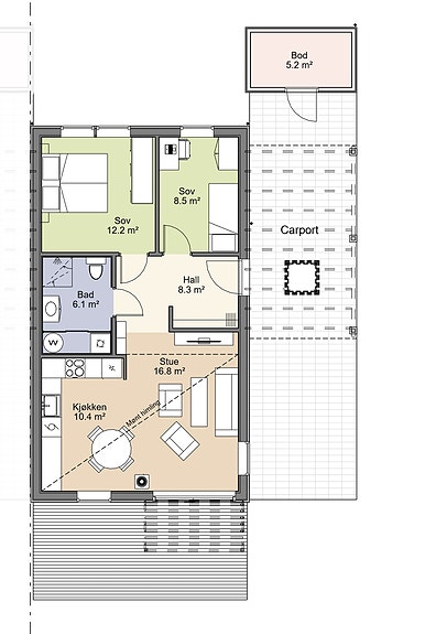
Totalt bruksareal: 65,0m²

  • BRA-i:  m²
  • BRA-e: 5,0 m²
  • BRA-b:  m²

m² eiet tomt



Totalpris inkludert omkostninger

I tillegg til kjøpesummen må kjøper betale:

Dokumentavgift kr 13 750,00,-

startkapital kr 10 000,00,-

Pantattest kr 274,00,-

Tinglysing skjøte kr 545,00,-

Tinglysing pantedokument kr 545,00,-


Dersom eiendommen selges til prisantydning og det kun tinglyses ett pantedokument, er totalprisen inkl. offentlige gebyrer, avgifter og øvrige kostnader kr 3 975 114,-. Det tas forbehold om endringer i offentlige gebyr.



Om boligen


Dette er et utdrag fra prosjektets salgsoppgave. For komplett salgsinformasjon henvises det til prosjektets hovedside, eller kontakt eiendomsmegler for mer informasjon.



Om oppdraget


Eiendommen

Alf Hermans vei, 1591 SPERREBOTN

27/30/0/0 i Våler (Viken)



Selger

MBM Eiendom AS


Eier

MBM Eiendom AS


Eiendomsmegler

Oppdragsnummer: 3-25-10083

Ansvarlig megler:


ASK Meglergaarden

Meglergaarden AS

NO 987 708 204 MVA



Samarbeid med og tilknytning til andre foretak

Meglergaarden AS er en del av ASK Eiendomsmegling gjennom en franchiseavtale med ASK Label AS.


Som franchisetaker i ASK Eiendomsmegling får Meglergaarden AS levert markedsføringstjenester fra Studio Eik AS. Meglergaarden AS kan også formidle boligselgerforsikring via Söderberg & Partners AS og boligkjøperforsikring for HELP Forsikring AS.


Prosjektets oppdragsnummer

Denne boligen er del av prosjektet "Solheim Boligsameie", og byggetrinnet "Solheim boligsameie". Byggetrinnet består av 4 enheter.


For å finne komplett salgsinformasjon, henvises interessenter til prosjektets hovedside med hovedoppdragsnummer 3-25-0304. Kontakt eiendomsmegler hvis noe er uklart.



Nærområdet

Annonseinformasjon

FINN-kode444815491
Sist endret13. jan. 2026 11:35
Referanse3-25-10083

Rapporter annonse

Annonsene kan være mangelfulle i forhold til lovpålagt opplysningsplikt. Før bindende avtale inngås oppfordres interessenter til å innhente komplett informasjon fra meglerforetaket, selger eller utleier.