Bildegalleri

Nordra Lia

L-105

Prisantydning5 150 000 kr
Totalpris
5 163 415 kr
Omkostninger
13 415 kr
Felleskost/mnd.
3 364 kr
  • Planlegging

    -

  • Salgsstart

    02.Mars

  • Byggestart

    Estimert 2. til 3.kvartal 2026

  • Overtakelse

    Estimert 2. til 3.kvartal 2027

Nøkkelinfo

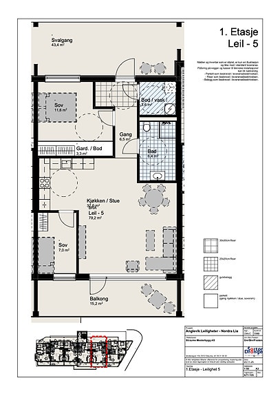
Boligtype
Leilighet
Etasje
1
Soverom
2
Bruksareal
79 m²

Les mer om bruksareal her

Fasiliteter

Balansert ventilasjon
Balkong/Terrasse
Barnevennlig
Bredbåndstilknytning
Garasje/P-plass
Heis
Ingen gjenboere
Lademulighet
Offentlig vann/kloakk
Utsikt
Turterreng

Visning

torsdag, 26. februar
16:30 – 17:30
Ta gjerne kontakt med megler hvis oppsatt visningstidspunkt ikke passer. Vi kan også avtale et møte på vårt kontor for en gjennomgang av salgsoppgaven.
søndag, 01. mars
13:00 – 14:00
Ta gjerne kontakt med megler hvis oppsatt visningstidspunkt ikke passer. Vi kan også avtale et møte på vårt kontor for en gjennomgang av salgsoppgaven.

Nærområdet

Annonseinformasjon

FINN-kode444627480
Sist endret13. feb. 2026 14:18

Rapporter annonse

Annonsene kan være mangelfulle i forhold til lovpålagt opplysningsplikt. Før bindende avtale inngås oppfordres interessenter til å innhente komplett informasjon fra meglerforetaket, selger eller utleier.