Bildegalleri
Stertebakke Terrasse
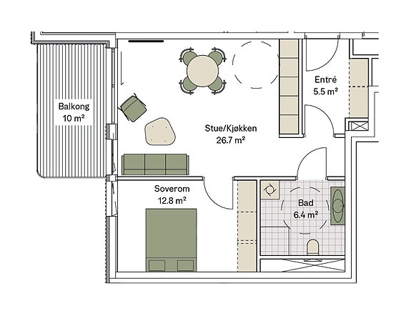
2-roms leilighet blokk B. 2.etg
Prisantydning4 798 000 kr
Kort om prosjektet
Salgsstart 19. februar kl. 18 på Energimølla i Kongsberg. Frist for å melde forkjøp for OBOS medlemmer 17. februar kl. 12. Visning på tomten 24. januar kl. 13 - 15. Mulighet for å gå inn i visningshus for en kopp kaffe og stille spørsmål til selger.
Prosjektets status
Planlegging
Kommer for salg
Salgsstart
19. februar 2026
Byggestart
2027
Overtakelse
Q1 2028
Nøkkelinfo
- Boligtype
- Leilighet
- Etasje
- 2
- Soverom
- 1
- Internt bruksareal
- 55 m² (BRA-i)
- Bruksareal
- 61 m²
- Eksternt bruksareal
- 6 m² (BRA-e)
- Balkong/Terrasse
- 10 m² (TBA)
Fasiliteter
Balansert ventilasjon
Balkong/Terrasse
Barnevennlig
Bredbåndstilknytning
Garasje/P-plass
Heis
Kabel-TV
Lademulighet
Offentlig vann/kloakk
Parkett
Utsikt
Turterreng
Visning
Ta kontakt for å avtale visning.Nyttige lenker
Nærområdet
OBOS Block Watne AS
Espen Oland
OBOS Block Watne AS
Utbygger
Annonsene kan være mangelfulle i forhold til lovpålagt opplysningsplikt. Før bindende avtale inngås oppfordres interessenter til å innhente komplett informasjon fra meglerforetaket, selger eller utleier.