Bildegalleri

Stertebakke Terrasse

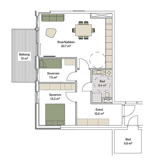
3-roms leilighet blokk B. 1.etg

Prisantydning5 498 000 kr
Totalpris
5 523 128 kr
Omkostninger
25 128 kr
Felleskost/mnd.
3 769 kr

Kort om prosjektet

Salgsstart 19. februar kl. 18 på Energimølla i Kongsberg. Frist for å melde forkjøp for OBOS medlemmer 17. februar kl. 12. Visning på tomten 24. januar kl. 13 - 15. Mulighet for å gå inn i visningshus for en kopp kaffe og stille spørsmål til selger.

  • Planlegging

    Kommer for salg

  • Salgsstart

    19. februar 2026

  • Byggestart

    2027

  • Overtakelse

    Q1 2028

Nøkkelinfo

Boligtype
Leilighet
Etasje
1
Soverom
2
Internt bruksareal
73 m² (BRA-i)
Bruksareal
78 m²
Eksternt bruksareal
5 m² (BRA-e)
Balkong/Terrasse
10 m² (TBA)

Les mer om bruksareal her

Fasiliteter

Balansert ventilasjon
Balkong/Terrasse
Barnevennlig
Bredbåndstilknytning
Garasje/P-plass
Heis
Kabel-TV
Lademulighet
Offentlig vann/kloakk
Parkett
Utsikt
Turterreng

Visning

Ta kontakt for å avtale visning.

Nærområdet

Annonseinformasjon

FINN-kode441316202
Sist endret07. jan. 2026 11:26

Rapporter annonse

Annonsene kan være mangelfulle i forhold til lovpålagt opplysningsplikt. Før bindende avtale inngås oppfordres interessenter til å innhente komplett informasjon fra meglerforetaket, selger eller utleier.