Bildegalleri

Plantegning

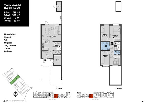
Tjøtta Vest G6

Tjøtta Vest | Flotte rekkehus i ulike størrelse og en enebolig | Sørvestvendt uteområde | Hagebod | Carport

Prisantydning5 390 000 kr
Totalpris
5 467 020 kr
Omkostninger
77 020 kr
  • Planlegging

    Ferdig prosjektert!

  • Salgsstart

    Salget er i gang!

  • Byggestart

    Vi bygger uansett!

  • Overtakelse

    365 dager + ferie*

Nøkkelinfo

Boligtype
Rekkehus
Soverom
3
Rom
5
Internt bruksareal
109 m² (BRA-i)
Bruksareal
118 m²
Eksternt bruksareal
9 m² (BRA-e)

Les mer om bruksareal her

Visning

tirsdag, 10. februar
08:00 – 20:00
OBS! Visning blir kun avholdt ved påmeldte visningsdeltakere. Du må altså kontakte oss for å booke tid, send oss gjerne en melding over eller e-post med navn, telefonnummer og hva du er interessert i. Vi tar kontakt snarest for å avtale tidspunkt.

Beskrivelse

Adresse

Tjøtta Vest G6 Bolig B1
4341 Bryne

Matrikkel

Gnr. 18 bnr. 629 i Klepp kommune

Tjøtta Vest G6 | Flotte rekkehus | Gode planløsninger | Trivelig uteområde

Alle boliger:
- Innvendig gulv og malepakke inkludert
- Moderne tidløst kjøkken levert av dansk design fra AUBO
- Mulighet for vedovn
- Gjestetoalett i første etasje
- Romslig entré
- En parkeringsplass i carport
- Lys og åpen stue/kjøkkenløsning
- Hagebod
- Balansert ventilasjonsanlegg
- Helt nytt!

I tillegg til over....
109m2:
- 2 stuer
- 3 til 4 soverom
- Bad og eget teknisk rom
- Utvendig bod

146 m2:
- Bi-inngang/bod
- 2 stuer
- 3 soverom (mulighet for 4)
- Utgang til en herlig sørvestvendt takterrasse

159 m2:
- Bi-inngang/bod
- 2 stuer
- 4 soverom
- Hovedsoverom med stor tilhørende garderobe

Ta kontakt med oss i dag for mer informasjon, vi ser frem til å høre fra deg!

Velkommen til Tjøtta Vest!

Det er hundre gode grunner til Tjøtta Vest.

På Tjøtta Vest skal vi bygge hundre boliger. I boligmiksen er det rekkehus og leiligheter i flermannsboliger som dominerer, men noen tomannsboliger og en enebolig er også tegnet inn. Fine fellesområder med samlingsplasser for både små og litt større gjør det ekstra trivelig å bo her.

Fra Tjøtta Vest går du til Bryne sentrum på 15-20 minutter. Tar du sykkelen til Bryne stasjon, trenger du halve tida. Å pendle med Jærbanen anbefales framfor bilkø. Fra Bryne stasjon tar toget deg til Stavanger på rundt halvtimen. Også veldig greit med skinner når du skal på sosiale happeninger i Sandnes, Stavanger - eller Egersund.

Sandtangen på Bryne er en perle med vakker natur, lekeplass, trimpark, sitteplasser og fin-fine turstier. På veien videre langs Frøylandsvatnet retning Klepp, støter du på den flotte brua Midgardsormen som tar deg inn i løypenettet i Njåskogen. Det meste er lett tilgjengelig for barnevogner og rullestolbrukere. Lysløyper gjør at du kan gå tur og trimme tidlig morgen og sen kveld. Jærstrendene og Høg-Jæren vet de fleste hvor fint er. Det er mange flere muligheter enn søndager.

Betalingsbetingelser

Ved kontraktinngåelse: 0,-

Før overtakelse: Total kjøpesum + omkostninger.

Prisantydning

5 390 000,-

Solgt ihht. bustadoppføringsloven

Eiendommen selges ihht bustadoppføringsloven og dens bestemmelser om garanti og sikring av innbetalte midler.

Overtagelse

365 dager + ferie etter signert kontrakt*
*Konferer med selger

Nærområdet

Annonseinformasjon

FINN-kode441297162
Sist endret28. jan. 2026 12:04
Referanse2250350

Rapporter annonse

Annonsene kan være mangelfulle i forhold til lovpålagt opplysningsplikt. Før bindende avtale inngås oppfordres interessenter til å innhente komplett informasjon fra meglerforetaket, selger eller utleier.