Bildegalleri
Plantegning
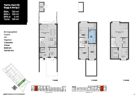
Tjøtta Vest G6
Tjøtta Vest | Flotte rekkehus i ulike størrelse og en enebolig | Sørvestvendt uteområde | Hagebod | Carport
Prosjektets status
Planlegging
Ferdig prosjektert!
Salgsstart
Salget er i gang!
Byggestart
Vi bygger uansett!
Overtakelse
365 dager + ferie*
Nøkkelinfo
- Boligtype
- Rekkehus
- Soverom
- 4
- Rom
- 6
- Internt bruksareal
- 159 m² (BRA-i)
- Bruksareal
- 163 m²
- Eksternt bruksareal
- 4 m² (BRA-e)
Visning
Beskrivelse
Adresse
Tjøtta Vest G6 Bolig A2
4341 Bryne
Matrikkel
Gnr. 18 bnr. 629 i Klepp kommune
Tjøtta Vest G6 | Flotte rekkehus | Gode planløsninger | Trivelig uteområde
Alle boliger:
- Innvendig gulv og malepakke inkludert
- Moderne tidløst kjøkken levert av dansk design fra AUBO
- Mulighet for vedovn
- Gjestetoalett i første etasje
- Romslig entré
- En parkeringsplass i carport
- Lys og åpen stue/kjøkkenløsning
- Hagebod
- Balansert ventilasjonsanlegg
- Helt nytt!
I tillegg til over....
109m2:
- 2 stuer
- 3 til 4 soverom
- Bad og eget teknisk rom
- Utvendig bod
146 m2:
- Bi-inngang/bod
- 2 stuer
- 3 soverom (mulighet for 4)
- Utgang til en herlig sørvestvendt takterrasse
159 m2:
- Bi-inngang/bod
- 2 stuer
- 4 soverom
- Hovedsoverom med stor tilhørende garderobe
Ta kontakt med oss i dag for mer informasjon, vi ser frem til å høre fra deg!
Velkommen til Tjøtta Vest!
Det er hundre gode grunner til Tjøtta Vest.
På Tjøtta Vest skal vi bygge hundre boliger. I boligmiksen er det rekkehus og leiligheter i flermannsboliger som dominerer, men noen tomannsboliger og en enebolig er også tegnet inn. Fine fellesområder med samlingsplasser for både små og litt større gjør det ekstra trivelig å bo her.
Fra Tjøtta Vest går du til Bryne sentrum på 15-20 minutter. Tar du sykkelen til Bryne stasjon, trenger du halve tida. Å pendle med Jærbanen anbefales framfor bilkø. Fra Bryne stasjon tar toget deg til Stavanger på rundt halvtimen. Også veldig greit med skinner når du skal på sosiale happeninger i Sandnes, Stavanger - eller Egersund.
Sandtangen på Bryne er en perle med vakker natur, lekeplass, trimpark, sitteplasser og fin-fine turstier. På veien videre langs Frøylandsvatnet retning Klepp, støter du på den flotte brua Midgardsormen som tar deg inn i løypenettet i Njåskogen. Det meste er lett tilgjengelig for barnevogner og rullestolbrukere. Lysløyper gjør at du kan gå tur og trimme tidlig morgen og sen kveld. Jærstrendene og Høg-Jæren vet de fleste hvor fint er. Det er mange flere muligheter enn søndager.
Betalingsbetingelser
Ved kontraktinngåelse: 0,-
Før overtakelse: Total kjøpesum + omkostninger.
Prisantydning
5 990 000,-
Solgt ihht. bustadoppføringsloven
Eiendommen selges ihht bustadoppføringsloven og dens bestemmelser om garanti og sikring av innbetalte midler.
Overtagelse
365 dager + ferie etter signert kontrakt*
*Konferer med selger
Nyttige lenker
Nærområdet
Øster Hus
Annonsene kan være mangelfulle i forhold til lovpålagt opplysningsplikt. Før bindende avtale inngås oppfordres interessenter til å innhente komplett informasjon fra meglerforetaket, selger eller utleier.