Bildegalleri

Plantegning

Strandgata 58 - 3 leilegheiter midt i Florø sentrum!

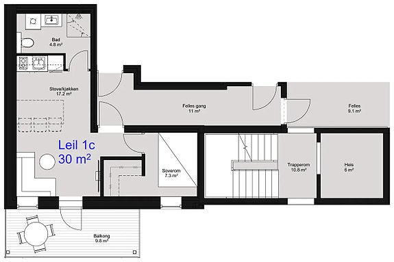
1C – 2-roms leilighet med balkong

Prisantydning2 470 000 kr
Totalpris
2 478 500 kr
Omkostninger
8 500 kr
Felleskost/mnd.
1 600 kr

Kort om prosjektet

No kan du sikre deg ei moderne leilegheit med vannbåren varme, gjennomtenkte planløysingar og kort veg til alt du treng i kvardagen. Leilegheitene er lettstelte og praktiske, og ligg i eit triveleg område med nærleik til butikkar og alle nødvendige servicetilbod.

  • Planlegging

    Under oppføring

  • Salgsstart

  • Byggestart

    Under oppføring

  • Overtakelse

    Våren 2026

Nøkkelinfo

Boligtype
Leilighet
Etasje
2
Soverom
1
Rom
2
Primærrom
30 m²
Bruksareal
30 m²
Energimerking
A - Oransje

Les mer om bruksareal her

Fasiliteter

Balansert ventilasjon
Balkong/Terrasse
Bredbåndstilknytning
Garasje/P-plass
Heis
Kabel-TV
Lademulighet
Offentlig vann/kloakk
Utsikt
Turterreng

Visning

Ta kontakt for å avtale visning.

Beskrivelse

1C – 2-roms leilighet med balkong

Denne moderne 2-roms leiligheten har en åpen og lys stue- og kjøkkenløsning, samt et eget soverom med smart garderobe løsning. Leiligheten har en stor, sørvendt balkong. Det stilrene og praktiske badet har opplegg for vaskemaskin, og i kjelleren disponerer leiligheten en egen bod.

Nærområdet

Annonseinformasjon

FINN-kode439889732
Sist endret01. des. 2025 14:06

Rapporter annonse

Annonsene kan være mangelfulle i forhold til lovpålagt opplysningsplikt. Før bindende avtale inngås oppfordres interessenter til å innhente komplett informasjon fra meglerforetaket, selger eller utleier.