Bildegalleri

Byhagen

H0501

Prisantydning2 950 000 kr
Totalpris
5 944 000 kr
Omkostninger
44 000 kr
Fellesgjeld
2 950 000 kr
Felleskost/mnd.
17 710 kr
  • Planlegging

    2023

  • Salgsstart

    2024

  • Byggestart

    2024

  • Overtakelse

    2026

Nøkkelinfo

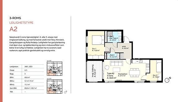
Boligtype
Leilighet
Etasje
5
Soverom
2
Internt bruksareal
70 m² (BRA-i)
Bruksareal
85 m²
Balkong/Terrasse
9 m² (TBA)

Les mer om bruksareal her

Visning

onsdag, 11. februar
12:00 – 13:00
Alle våre visninger har påmelding. Dette for at vi kan planlegge visningene best mulig, og ha god tid til de som kommer. Det er enkelt å melde seg på, og du kan like enkelt melde deg av. Visninger uten påmeldte deltakere kan bli avlyst.
Visningspåmelding

Beskrivelse

Oppvarming

Leilighetene får felles varmesentral for både oppvarming og varmtvann. Vannbåren gulvvarme i stue/kjøkken og entré sørger for jevn varme, mens bad og WC-rom leveres med elektriske varmekabler.

Beliggenhet

I Byhagen ligger alle byens eksisterende tilbud i gangavstand. I tillegg får du et variert og spennende utvalg av shopping, servicetilbud, kultur og opplevelser rett under leiligheten din, bare en heistur unna. Her kan du bokstavelig talt gjøre innkjøpene du trenger i tøflene dine.

Parkeringsforhold

Megler gjør oppmerksom på at i henhold til ny eierseksjonslov av 1. januar 2018, § 25 femte ledd, kan det fastsettes i vedtektene at en eller flere av seksjonseierne har enerett til å bruke bestemte deler av fellesarealene i inntil tretti år.

Adgang til utleie

Det er kun en bruksenhet i boligen.

Utleie av seksjon kan være begrenset.

Korttidsutleie: Det følger av eierseksjonsloven § 24 at korttidsutleie av hele boligseksjonen i mer enn 90 døgn årlig ikke er tillatt. Bestemmelsen gjelder ikke for fritidsboliger. Med korttidsutleie menes utleie inntil 30 døgn sammenhengende. Grensen på 90 døgn kan fravikes i vedtektene og kan i så fall settes til mellom 60 og 120 døgn. Slik beslutning krever et flertall på minst to tredjedeler av de avgitte stemmene på årsmøtet.

Hvitevarer / tilbehør

Integrerte hvitevarer overtas i den tilstand de har vært benyttet av selger, og overtas uten noe form for garantier.

Frittstående hvitevarer og brunevarer medfølger ikke i salget med mindre det tydelig fremgår av salgsoppgaven.

Fellesgjeld og lånebetingelser

Andel fellesgjeld
Gjeld kr 2 950 000,-

Ligningsverdi (formuesverdi)

Formuesverdien er innhentet fra Skatteetaten / Altinn.

Betalingsbetingelser

INFO OM KJØPS OG LÅNEVILKÅR
Totalprisen: Totalprisen på boligene består av innskudd - (egenkapital/lån) og andel fellesgjeld. Se kolonne i prislisten. I tillegg kommer omkostninger. Innskuddet - utgjør egenkapital og skal innbetales med tillegg av omkostninger.

Fellesgjelden utgjør 50 % av boligens totalpris og finansieres ved et felleslån med en nåværende rentesats på 5,0 %.. Nedbetalingstiden for felleslånet er 55 år hvorav de 10 første årene er avdragsfrie. Deretter nedbetales felleslånet etter annuitetsprinsippet.

Renten på felleslånet er flytende. Det vil si at renten endres i samsvar med den generelle renteutviklingen. Renter og avdrag på felleslånet betales av borettslaget via inntekter fra andelseiernes månedlige innbetalinger av felleskostnader.

Lån for Borettslaget(fellesgjeld) er avdragsfritt i 10 år. Deretter 45 års nedbetalingstid. Utbetaling av totalt felleslån kan ta opptil 4 måneder etter innflytting, byggelånsrenten vil ligge til grunn i denne perioden. Borettslaget kan på et senere tidspunkt vedta å binde renten.

Lånevilkår fellesgjeld: IN- ordning:
Borettslaget har etablert IN-ORDNING (individuell nedbetaling av fellesgjelden) slik at hver enkelt andelseier kan nedbetale hele eller deler av sin andel fellesgjeld etter eget ønske, dog til bestemte tider. Ordningen er betinget av at fellesgjelden løper med flytende rente.

For de som velger å ikke ha fellesgjeld, gjør vi oppmerksom på at den fellesgjeld borettslaget tar opp, vil ha sikkerhet i hele eiendommen.

Det er legalpant, lovfestet pant for utestående husleie/fellesutgifter i inntil 2 G. Det kan ta opptil 3 mnd. etter innflytting å få opprettet og tinglyst rettsvern for borettslagets fellesgjeld. Andel fellesgjeld kan ikke nedbetales før lånet diskonteres.

OPPSTARTSKAPITAL TIL BORETTSLAGET
Oppstartskapital til borettslaget innbetales med kr. 5000, - for hver bolig (se prisliste). Oppstartskapital innbetales sammen med kjøpesum, og vil bli overført til borettslaget når det er etablert og megler har fått utbetalingsanvisning av borettslagets styre eller forretningsfører.

OMKOSTNINGER
I tillegg til kjøpesummen påløper omkostninger på kjøpers hånd med kr. 44.000, - pr. leilighet som blant annet skal dekke:
. Andelskapital kr. 5.000, - (Tilfaller borettslaget)
. Tinglysningsgebyr for BRL-skjøte kr. 545,-
. Tinglysning pantedokument BRL kr. 545,-
. Etablering av borettslaget og områdeorganisering kr. 12.125, -
. Tilknytningsavgift/andel av anleggsbidrag m.m. kr. 25.668, -

KJØPESUM FOR LEILIGHETENE BESTÅR AV FØLGENDE:
Innskudd (Kjøpers finansiering) er 50 % av totalpris, og 50 % er andel av borettslagets fellesgjeld. For oversikt over innskudd/fellesgjeld fremgår dette av prisliste med oversikt for hver leilighet.

LÅNEVILKÅR FELLESGJELD:
Fellesgjelden blir annuitetslån i DNB med flytende rente, som i utregning av fellesutgifter er
beregnet til 5,0 % p.a. Renten vil bli endret i takt med justeringer i rentemarkedet. Lånets løpetid er 55 år, hvorav de ti første årene er avdragsfri. For detaljer knyttet til lånevilkår henvises det til hovedbankavtalen mellom DNB og BONORD.

BETALINGSBETINGELSER
Hele kjøpesummen betales ved overtakelse av boligen. Benytt kontonummer som er oppført i kjøpekontrakt. Kjøper skal ikke betale noen del av kjøpesummen før §12 garanti er stilt. Boligen tinglyses i kjøpers navn først ved tidspunkt for ferdigstillelse og overtagelse. Det innbetalte beløpet tilhører kjøper, og kan ikke frigis til selger inntil det enten er stilt forskuddsgaranti etter bustadoppføringslova § 47 eller kjøper har fått tinglyst hjemmel til boligen.

Ved forsinket betaling/oppfyllelse jf. kjøpekontraktens bestemmelser, skal kjøperen betale forsinkelsesrente i henhold til lov av 17. desember 1976 nr. 100 om forsinket betaling (forsinkelsesrenteloven). Selgeren kan likeledes da nekte kjøperen å overta inntil betaling skjer. Selv om deler av oppgjøret er innbetalt til rett tid, skal kjøper betale forsinkelsesrenter av hele kontraktsummen til fullt oppgjør samt omkostninger er mottatt meglers klientkonto. Beløpet blir avregnet fra overtagelse/forfall til betaling finner sted. Kjøper godskrives i disse tilfellene innskuddsrenter av beløp innbetalt til meglers klientkonto.
Dersom kjøper ikke oppfyller sin del av kontrakten (signerer kontrakt, fremskaffer tilfredsstillende finansieringsbekreftelse, ikke innbetaler forskudd hvor det er avtalt eller ikke innbetaler oppgjør ved overtakelse m.m.), kan selger med 14 dagers varsel heve kjøpet og videreselge eiendommen (dekningssalg). Kjøper skal i så fall erstatte selgers økonomiske tap etter reglene i Bustadoppføringslova § 58. Selger forbeholder seg retten til å heve kjøpekontrakten også etter overtakelse og/eller hjemmelsoverføring jfr. bustadoppføringsloven § 57 annet ledd annet punktum.

Overtakelse

Selger tar sikte på å overlevere boligene 2. eller 3. kvartal 2026. Dette gjelder ikke som en bindende frist for å ha boligen klar for overtakelse, herunder ikke grunnlag for å kreve dagmulkt. En senere igangsetting og/eller en lengre byggetid enn forventet, kan medføre
en senere overtakelse.

Selger skal skriftlig varsle kjøper om når overtakelsesperioden begynner og slutter. Senest 10 uker før ferdigstillelse av boligen skal selger gi kjøper skriftlig melding om endelig overtakelsesdato. Den endelige datoen er bindende og dagmulktsutløsende, og skal ligge innenfor overtakelsesperioden.

Ferdigstillelsesfristen forlenges dessuten med 21 kalenderdager dersom arbeidene berøres av fellesferien. Berøres arbeidene av juleferien, forlenges den med 7 kalenderdager. Det samme gjelder om den berøres av påskeferien. Forlengelsen gjelder selv om det eventuelt utføres arbeid i en ferie.

Overtagelse kan tidligst skje når det foreligger ferdigattest/midlertidig brukstillatelse. Ved overtakelse skal det dokumenteres at alle innbetalinger, inkludert eventuelle tilleggsleveranser, er betalt før utlevering av nøkkel til leilighet finner sted. Kjøper kan ikke nekte å overta selv om seksjonering/fradeling/hjemmelsovergang ikke er gjennomført.

Det gjøres oppmerksom på at det etter oppgjørs- og overtakelsesdato fortsatt vil foregå byggearbeider på eiendommen, herunder arbeid med ferdigstillelse av de øvrige boligene, fellesarealer, tekniske installasjoner og utomhusarbeider.

Kjøper kan ikke nekte å overta boligen mot midlertidig brukstillatelse selv om det gjenstår arbeider som nevnt foran eller arbeid gjenstår på fellesområdene. Det samme gjelder dersom tinglysing av hjemmelsovergang ikke kan gjennomføres på overtakelsesdagen.
Oppgjøret vil bli stående på meglers klientkonto såfremt det ikke er stilt § 47 garanti.

Før overtakelse vil det bli gjennomført befaring der boligen blir gjennomgått/befart samtidig som boligen driftsinstruks/FDV-mappe blir utlevert/gjennomgått. Påpekte og aksepterte /omforente mangler skal utbedres innen rimelig tid.

Ved overtakelse skal det dokumenteres at alle innbetalinger, inkludert eventuelle tilleggs leveranser, er betalt før utlevering av nøkkel til boligen finner sted.

Eiendommen skal overleveres i ryddet stand og boligen skal være byggerengjort. Kjøper bør planlegge eventuelt salg av egen bolig med god margin i forhold til stipulert overtakelse, da det kan oppstå forsinkelser i

Nærområdet

Annonseinformasjon

FINN-kode439421080
Sist endret23. jan. 2026 05:01
Referanse32510008

Rapporter annonse

Annonsene kan være mangelfulle i forhold til lovpålagt opplysningsplikt. Før bindende avtale inngås oppfordres interessenter til å innhente komplett informasjon fra meglerforetaket, selger eller utleier.