Bildegalleri
Plantegning leilighet 2.png
Tintratunet
Tintratunet - Leilighet 2
Prisantydning6 500 000 kr
Prosjektets status
Planlegging
2023
Salgsstart
2023
Byggestart
4. kvartal 2024
Overtakelse
2. kvartalt 2026
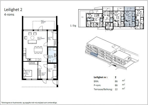
Nøkkelinfo
- Boligtype
- Leilighet
- Etasje
- 1
- Soverom
- 3
- Rom
- 4
- Internt bruksareal
- 86 m² (BRA-i)
- Bruksareal
- 91 m²
- Eksternt bruksareal
- 5 m² (BRA-e)
- Balkong/Terrasse
- 22 m² (TBA)
Fasiliteter
Balkong/Terrasse
Bredbåndstilknytning
Garasje/P-plass
Heis
Kabel-TV
Utsikt
Turterreng
Beskrivelse
Ansvarlig megler
Steffen Lyngtu
NB: Knappen for å vise hele beskrivelsen har kun en visuell effekt.
NB: Knappen for å vise hele beskrivelsen har kun en visuell effekt.
Nyttige lenker
Nærområdet
EiendomsMegler 1 Nybygg Bergen
En del av Sparebank 1 Sør-Norge
Annonseinformasjon
| FINN-kode | 439404200 |
|---|---|
| Sist endret | 28. nov. 2025 12:47 |
| Referanse | 2706250492 |
Annonsene kan være mangelfulle i forhold til lovpålagt opplysningsplikt. Før bindende avtale inngås oppfordres interessenter til å innhente komplett informasjon fra meglerforetaket, selger eller utleier.