Bildegalleri
B-H0503-250923
Meierigården B
Nytt trinn i Meierigården for salg. Flotte leiligheter og varierte størrelser i Nærbøs prestisjeprosjekt.
Prosjektets status
Planlegging
Det foreligger rammetillatelse.
Salgsstart
November 2025
Byggestart
2026
Overtakelse
2028
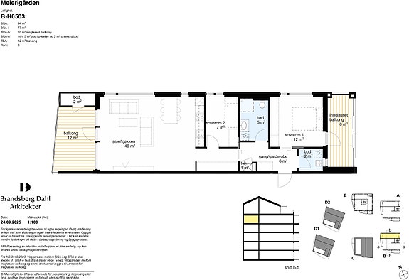
Nøkkelinfo
- Boligtype
- Leilighet
- Etasje
- 5
- Soverom
- 2
- Rom
- 3
- Internt bruksareal
- 77 m² (BRA-i)
- Bruksareal
- 94 m²
- Eksternt bruksareal
- 7 m² (BRA-e)
- Innglasset balkong
- 10 m² (BRA-b)
- Balkong/Terrasse
- 12 m² (TBA)
Visning
Beskrivelse
Oppdragsansvarlig
Jæren Eiendomsmegling AS / Bjørn Rune Salte
Selger/Utbygger
Meieritomten Bolig AS
Betegnelse
Gnr. 25 Bnr. 257 i Hå kommune
Byggeår
2027/2028
Arealer og fordeling per etasje
Arealangivelsene fremgår per enhet i prislisten.
BRA - Boligens bruksareal (summen av BRA-i, BRA-b og BRA-e)
BRA-i - Areal innenfor boenheten
BRA-e - Areal tilhørende boenheten utenfor denne,
eksempelvis bod i kjeller
BRA-b - Innglasset balkong
TBA - Terrasse-/balkongareal
Bruksareal (BRA-i) for en boenhet er det arealet av boenheten som ligger innenfor omsluttende vegger.
I BRA-i medregnes areal som opptas av vegger, rør og ledninger, sjakter, søyler, innredningsenheter o.l. innenfor boenheten.
Definisjoner og beregninger er basert på: NS 3940:2023
Leilighetens areal er rundet opp/ned til nærmeste hele tall i den til enhver tid gjeldende prisliste og prospekt.
Arealberegningene er foretatt av arkitekt/selger og er oppmålt etter tegninger datert 20.08.2024.
Det tas forbehold om arealavvik mellom prospekttegning og kontraktstegning.
Arealet som er oppgitt på de enkelte rom er rommets netto gulvareal. Man kan således ikke summere rommenes arealer og få bruksarealet. Illustrasjoner/perspektiver kan ikke brukes som dokumentasjon av kontraktsmessige forhold.
Byggemåte
Leveranser i henhold til TEK 17. Se leveransebeskrivelse fra utbygger.
Standard
Når det gjelder de indre kvaliteter i leilighetene, så vil det bli en over gjennomsnittet god standard på alle leilighetene. For toppleilighetene og leiligheter som er større enn 110 kvadratmeter, vil det bli en høyere standard. I begge tilfeller vil du ha gode tilvalgs muligheter slik at du kan forme din leilighet slik du ønsker den.
Leilighetene har ekstra takhøyde og ekstra høye vinduer i stuen, noe som gir ekstra lys og luftig opplevelse. Det legges eikeparkett, med hvit matt lakk på gulv i gang, stue, kjøkken og soverom. Listverk i samme utførsel som parketten. De innvendige dørene er hvite og slette, i karm med dem- pelist og med hvitmalt ramme og listverk. På badene blir det fliser på gulv og vegg og vannbåren varme i gulvene.
Oppvarming av boligene skjer gjennom fjernvarme fra Kvia-marka og inn i boligene via viftekonvektor som er montert i stue. Leilighetene får også balansert ventilasjon gjennom eget ventilasjonsaggregat som sørger for godt avtrekk der det trengs og friskluft til oppholdsrommene.
Se leveransebeskrivelse fra selger for spesifikk leveranse utvendig/innvendig.
Møblering
Eiendommen selges umøblert.
Oppvarming
Det vil bli lagt opp til fjernvarme fra Kviamarka, gjennom Jæren E-verk. Vannbåren gulvvarme iht romskjema. Viftekonvektor ("varmepumpe") i hver leilighet fra felles varmesentral i p-kjeller.
Parkering / Garasje
Alle leiligheter får 1 parkeringsplass i lukket garasjeanlegg.
Selger forbeholder seg retten til å avgjøre hvordan organisering av parkeringsanlegget og bodene vil bli. Dette kan bli søkt organisert som tilleggs- del(er) til kjøpers boligseksjon, skilles ut som en egen eiendom (anleggseiendom), eller bli lagt som fellesareal med vedtektsfestet bruksrett. Selger forbeholder seg retten til å fordele parkeringsplassene. Overskjøting av ideell andel i p-kjeller og fellesarealer vil kunne finne sted først etter ferdig- stillelse av alle boliger som skal ha rettigheter i p-kjeller og fellesarealer.
Dokumentavgift for ideell andel i er inkludert i kjøpesummen/tomteverdien for boligen. Det er selgers ansvar å gjennomføre overskjøtingene.
Parkeringskjeller og fellesareal anses som overtatt samtidig med overtakelse av bolig, selv om hjemmelsovergangen til realandel ikke er overskjøtet. Kjøper betaler driftskostnadene fra og med overtakelsestidspunktet.
Se vedlagt utkast til vedtekter for anleggseiendommen.
Adkomst
På finn.no kan du se vedlagt kartskisse på høyre side i annonsen.
Beskrivelse av tomt
Selger ferdigstiller uteareal iht. til beskrivelse.
Ved overtakelse kan det gjenstå utvendige og/eller innvendige arbeider på eiendommens fellesarealer. Gjennomgang av fellesarealer vil bli gjennomført med sameiets styre etter overtakelse av boligene. Kjøper aksepterer at sameiets styre får fullmakt til å representere alle sameierne ved gjennomgang av fellesarealene, samt til å frigi eventuelt tilbakeholdt beløp når fellesarealene er ferdigstilt.
Overtakelse av boligene kan ikke nektes av kjøperselv om utomhusarealerikke erferdigstilt. Såfremt deler av utvendige arbeiderikke erferdigstilt ved overtakelse av boligen, skal manglende ferdigstilte arbeider anmerkes i overtakelsesprotokollen.
Det gjøres oppmerksom på at leveransebeskrivelsen/utomhusplanen i salgsprospektet ikke er ferdig detaljprosjektert, og at endringer vil fore- komme. Kjøper kan utøve tilbakehold av nødvendig beløp på meglers klientkonto som sikkerhet for manglene.
Tilbakeholdt beløp må stå isamsvarmed manglene. Alternativt kan selgerstille selvskyndergaranti forferdigstillelsen. Ovennevnte oppfordring om tilbakeholdelse gjelder også for de forhold som gjenstår for å få ferdigattest.
Tinglyste rettigheter og forpliktelser
Kommunen har legalpant som sikkerhet for betaling av kommunale avgifter. Legalpant er pant som følger av loven, og som ikke tinglyses. Legalpant følger derfor eiendommen ved salg. På eiendommen kan det være tinglyst erklæringer som f eks rett for kommunen til å vedlikeholde rørsystemer for vann- og kloakk. Disse erklæringene vil følge eiendommen ved salg. Kontakt megler for nærmere informasjon.
Servitutter / rettigheter
Eiendommen overdras fri for pengeheftelser, med unntak av eventuelle erklæringer, avtaler, servitutter og panteheftelser som fremgår av salgsoppgaven og skal følge med eiendommen ved salg. Kjøpers bank vil få prioritet etter disse.
Vei / Vann / Avløp
Eiendommen vil være tilknyttet offentlig vei, vann og avløp. Alle arbeider og kostnader er inkludert i kjøpesummen.
Ferdigattest eller midl. brukstillatelse
Kjøper har heller ingen plikt til å overta eller innbetale oppgjør før midlertidig brukstillatelse foreligger.
Det er ulovlig å ta boligen i bruk før ferdigattest eller midlertidig brukstillatelse foreligger.
Å bebo uten brukstillatelse kan medføre krav om utflytting og eventuelle bøter fra kommunen. Ved å velge å overta stopper eventuelle krav om dagbøter.
Verdi ved skattefastsetting
Verdien ved skattefastsetting er p.t. ikke fastsatt. Verdien ved skattefastsetting fastsettes av Ligningskontoret etter beregningsmodell som tar hensyn til om boligen er en såkalt "primærbolig" (der boligeieren er folkeregistrert bosatt) eller "sekundærbolig" (alle boliger man eier, men ikke bor fast i). Interessenter oppfordres til å sjekke www.skatteetaten.no eller kontakte ansvarlig megler for nærmere informasjon om verdien ved skattefastsetting.
Reguleringsforhold
Eiendommen er regulert til boligformål.
Byggetrinn 4 består av blokk B. Eiendommen skal bebygges ytterligere et bygg (C), i tillegg til det allerede påstartede blokk A.
Det er regulert inn og godkjent et næringsbygg i forkant av bygg B og C. Reguleringen tillater inntil 7. etasjer med næring for bygget. Det er pr. dags dato bygget én etasje med to næringsdeler, hvor Rema 1000 og Bankers er leietakere. Det er mulig å forlenge eksisterende bygningskropp for næringsdel mot Torlandsvegen i henhold til reguleringsplan.
Kopi av reguleringsplan kan fås utlevert hos megler, og vil også være vedlegg til kontrakt. Vi oppfordrer interessenter til å gjøre seg kjent med disse.
Beskrivelse av sameiet
Det er planlagt et sameie for Blokk B med 19 boligseksjoner, i tillegg blir det en egen seksjon for parkeringskjeller (antallet seksjoner kan bli justert i forbindelse med utbyggingen). Sameiet vil bli organisert som eierseksjonssameiet iht. eierseksjonsloven.
Hver seksjon utgjør en sameieandel med tilknyttet enerett til bruk av en bruksenhet og rett til bruk av sameiets fellesarealer. Det er ikke tillatt å eie mer enn 2 seksjoner i sameiet. Dersom et erverv har funnet sted i strid med eierseksjonslovens regler kan Kartverket nekte overskjøting.
Dersom overskjøting blir nektet, er kjøper likevel forpliktet til å gjennomføre handelen med selger, og oppgjør til selger vil finne sted tross manglende overskjøting.
Sameiet er pliktig til å avholde årlige sameiermøter hvor regnskap og budsjett fremlegges. Sameiets styre har ansvaret for at eiendommen forvaltes etter retningslinjer og vedtekter som fastsettes på sameiermøtet. Videre er det sameiermøtet som beslutter om det skal utarbeides husordens-/ trivselsregler for sameiet. Hver seksjon har en stemme på sameiermøtet.
Det er opprettet et realsameie for anleggseiendom (parkeringsanlegget - Meierigården Realsameiet) gnr. 25 bnr. 240 og 242 i Hå kommune, med fellesanlegg av enhver art. Jfr. Sameieavtale datert 24.02.2025.
Alle eierseksjonssameier, herunder eiere av den enkelte seksjon, er / blir tilknyttet til dette realsameiet. Se utkast til sameievedtekter i eget vedlegg.
En sameier eier en andel i eiendommen, med tilknyttet enerett til bruk av sin bruksenhet, jf. eierseksjonsloven § 25.
Interessenter oppfordres til å sette seg inn i sameiets vedtekter, husordensregler, regnskap, budsjett, årsberetning m.m. Se særlig om vedtekter og husordensregler knyttet til husdyrhold, dugnader, trappevask o.l.
Andre faste løpende kostnader
Felleskostnader er stipulert til kr. 25,- pr. kvm. BRA pr. mnd. første driftsår. Dette inkluderer bl.a. byggforsikring, strøm for fellesarealer, drift og vedlikehold, vaktmester og honorarer til forretningsfører. Fellesutgifter som kreves inn vil også gå til dekning av vedlikehold, drift og forsikring av fellesarealer som ligger utenfor den seksjonerte eiendommen, som parkeringsanlegg og utendørs fellesareal.
Felleskostnadene er avhengig av hvilke tjenester sameiet ønsker utført i felles regi, og fordeles iht. vedtektene. Endelig budsjett fastsettes på sameiermøte. Det tas forbehold om endringer i stipulert felleskostnader, da dette er basert på erfaringstall. Fordelingsnøkkelen for fordeling av utgifter reguleres i sameiets vedtekter, og bygger i utgangspunktet på sameierbrøk. Enkelte elementer i buds- jettet vil i vedtektene fastsettes til lik fordeling på alle seksjoner.
Selger vil engasjere forretningsfører for sameiet for første driftsår. Hver enkel kjøper innbetaler kr 5.000 som startkapital til sameiet ved overtakelse.
Tilvalg
Kjøperen kan ikke kreve å få utført endringer eller tilleggsarbeider:
a) som vil endre kontraktsummen med 15% eller mer
b) som ikke står i sammenheng med selgers ytelse, eller
c) som vil medføre ulemper for selger som ikke står i forhold til kjøpers interesse i å kreve endringen eller tilleggsarbeidet.
Selgeren skal skriftlig klargjøre for kjøperen de kontraktsmessige og tidsmessige konsekvensene av de endringene eller tilleggsarbeidene kjøperen krever.
Selgeren kan kreve at kjøper betaler forskudd for endringer og tilleggsarbeider såfremt garanti i henhold til bustadoppføringslova § 47 er stilt. Alternativt kan selgeren kreve at kjøperen stiller sikkerhet for selgerens krav på tilleggsvederlag.
Dersom det ikke er stilt § 47-garanti skal tilleggsvederlaget innbetales med sluttoppgjøret ved overtakelsen, og utbetales først når § 47-garanti er stilt eller hjemmelsoverføring har skjedd.
Tilleggsarbeid fra underleverandører faktureres direkte fra underleverandører med forfall til etter hjemmelsoverføring.
Oppgjør
Fullt oppgjør ved overtakelse.
Finansieringsbevis for hele kjøpesummen skal innleveres innen 14 dager etter kontraktsinngåelse. Ved eventuell forsinket betaling gjelder lov om forsinkelsesrenter av 17.12.1976 nr. 100.
Det vil bli utsendt faktura fra Privatmegleren Jæren i samsvar med Bustadsoppføringslova §12. Ved eventuell forsinket betaling gjelder lov om forsinkelsesrenter av 17.12.1976 nr. 100.
Finansiering
Kontakt megler for avklaring av finansielle forhold, herunder lån til kjøp av eiendom. Privatmegleren har avtale med Nordea om formidling av lån og andre finansielle tjenester. Privatmegleren mottar godtgjørelse for dette.
Adgang til utleie
Det er èn bruksenhet som selges. Ingen restriksjoner utover generelt krav om radonmåling.
Konsesjon / Odel
Eiendommen er konsesjonsfri.
Det foreligger ikke odel.
Sikkerhetsstillelse
Alle eiendomsmeglingsforetak har lovpålagt forsikring av klientmidler begrenset oppad til kr 45 mill. Enkeltsaker er forsikret inntil kr 15 mill. Dersom kjøpers låneinstitusjon krever tilleggsforsikring ved omsetning over 15 millioner, må kjøper selv eller dennes låneinstitusjon dekke utgiftene forbundet med dette.
Planlagt overtagelse
Selgerens frist til å ha boligen klar til overtakelse fastsettes til 18 måneder i tillegg til ferie i henhold til bustadoppføringslova etter
a) Selgers forbehold er løftet
b) Det er stilt finansieringbekreftelse fra kjøper
Selgeren kan kreve overtakelse inntil fire måneder før den avtalte fristen til å ha boligen klar til overtakelse. Selgeren skal skriftlig varsle om dette minimum to måneder før det nye overtakelsestidspunktet. Det eksakte overtakelsestidspunktet skal gis med minst 14 kalenderdagers skriftlig varsel, jfr. Bustadoppføringsloven § 15. Det beregnes dagmulkt fra det nye overtakelsestidspunktet, jfr. Bustadoppføringslova §18.
Ferdigstillelsesfristen forlenges dessuten med 21 kalenderdager dersom arbeidene berøres av fellesferien. Berøres arbeidene av juleferien, forleng-es den med 7 kalenderdager. Det samme gjelder om den berøres av påskeferien. Forlengelsen gjelder selv om det eventuelt utføres arbeid i en ferie.
Overtagelse kan tidligst skje når det foreligger ferdigattest/midlertidig brukstillatelse. Ved overtakelse skal det dokumenteres at alle innbetalinger, inkludert eventuelle tilleggsleveranser, er betalt før utlevering av nøkkel til boligen finner sted. Kjøper kan ikke nekte å overta selv om seksjonering/fradeling/hjemmelsovergang ikke er gjennomført.
Det gjøres oppmerksom på at det etter oppgjørs- og overtakelsesdato fortsatt vil foregå byggearbeider på eiendommen, herunder arbeid med ferdigstillelse av de øvrige boligene, fellesarealer, tekniske installasjoner og utomhusarbeider.
Kjøper kan ikke nekte å overta boligen mot midlertidig brukstillatelse selv om det gjenstår arbeider som nevnt foran eller arbeid gjenstår på fellesområdene. Det samme gjelder dersom tinglysing av hjemmelsovergang ikke kan gjennomføres på overtakelsesdagen.
Oppgjøret vil bli stående på meglers klientkonto såfremt det ikke er stilt §47 garanti. De siste 10% av kjøpesummen skal uansett stå på meglers klientkonto inntil overtakelse er gjennomført. Der kjøper ikke skal utføre egeninnsats kan overtakelse tidligst skje når ferdigattest/midlertidig bruk- stillatelse foreligger. Ved overtakelse skal det dokumenteres at alle innbetalinger er betalt før utlevering av nøkkel til leilighet finner sted.
Før overtakelse vil det bli gjennomført befaring der boligen blir gjennomgått/befart samtidig som boligens driftsinstruks/FDV-mappe blir utlevert/ gjennomgått. Påpekte og aksepterte /omforente mangler skal utbedres innen rimelig tid.
Boligen skal overleveres i ryddet stand og boligen skal være byggerengjort.
Kjøper bør planlegge eventuelt salg av egen bolig med god margin i forhold til stipulert overtakelse, da det kan oppstå forsinkelser i byggeproses- sen. Boligen kan også bli ferdigstilt før oppgitt ferdigstillelsesdato.
Selgers forbehold
Selger tar forbehold om følgende:
- Offentlig godkjenning av prosjektet, dvs. at det utstedes igangsettelsestillatelse.
- at det selges 70 % av boligene i byggetrinn 4 basert på verdien i byggetrinnet.
Selgers forbehold skal være avklart innen 01.07.2026.
Når endelig offentlig godkjenning foreligger kan selger selv velge å frafalle forbehold om antall solgte enheter innen ovennevnte frist.
Andre relevante opplysninger
Selger forbeholder seg retten til å leie ut, endre priser og kjøpsbetingelser på usolgte enheter, uten forutgående varsel når selger finner dette hensiktsmessig.
Kjøper gjøres oppmerksom på at alle skisser, frihånds- og oversiktstegninger i perspektiv, annonser, bilder og planer er foreløpige og utformet for å illustrere prosjektet. Dette materialet vil derfor inneholde detaljer - eksempelvis beplantning, innredning, møbler, tekst og andre ting - som ikke nødvendigvis vil inngå i den ferdige leveransen, og er ikke å anse som en del av avtalevilkårene for kjøpet. Slike avvik kan ikke påberopes som mangel fra kjøpers side.
Inntegnet utstyr/inventar som er stiplet medfølger ikke. Generelle beskrivelser av prosjektet i salgs-og markedsføringsmateriell vil ikke passe for alle enhetene. Kjøper oppfordres særskilt til å vurdere solforhold, utsikt og beliggenhet i forhold til terreng og omkringliggende eksisterende og fremtidig bygningsmasse mv. før et eventuelt bud inngis. Det kan være avvik mellom de planskisser, planløsninger, og tegninger som er presentert i prosjektet, og den endelige leveransen. Dersom det er avvik mellom tegninger i prospekt/Internettside og leveransebeskrivelsen i den endelige kontrakt med kjøper, vil leveransebeskrivelsen ha forrang og omfanget av leveransen er begrenset til denne. Vindusplassering i den enkelte bolig kan avvike noe fra de generelle planer, som følge av bl. a. den arkitektoniske utformingen av byggene.
Byggebeskrivelsen/leveransebeskrivelsen i brosjyre fra utbygger skal angi hvilken teknisk standard prosjektet leveres med, samt foreløpig angi hva komplett leveranse etter kjøpekontrakten innebærer. Dersom det ikke er tatt inn spesifiserte bestemmelser i kjøpekontrakten, gjelder følgende krav: De tekniske løsninger skal tilfredsstille plan- og bygningslovgivningen, herunder kravene i teknisk forskrift.
Selger tar forbehold om å foreta den inndeling, organisering og tilrettelegging av eiendomsmassen som selger finner hensiktsmessig. Dette gjelder blant annet, men ikke begrenset til: hvilke bygg inngår i hvilke eierseksjonssameier og hvor mange bygg det skal være i hvert eierseksjonssameie, eierskap og kostnadsdekning knyttet til fellesarealer over og under bakken, inkludert parkeringskjeller, utforming av vedtekter/sameieavtaler for hhv. eierseksjonssameiene og fellesarealene utenfor de seksjonerte eiendommene, tildeling av parkeringsplasser og boder for de enkelte boligene.
Kjøper aksepterer at PrivatMegleren Jæren kan offentliggjøre kjøpesum i egen markedsføring.
Detaljprosjektering
På salgstidspunktet er prosjektet ikke ferdig detaljprosjektert. Under detaljprosjekteringen må det påregnes mindre justeringer av planer, materialbruk og løsninger. Eksempler på dette er veggtykkelser, sjakter/innkassinger for tekniske føringer, mindre justeringer på kjøkkeninnredning, vinduer, dører, bod plasseringer, justeringer i garasjeanlegg og annet. Sjakter og føringer for VVS er ikke endelig inntegnet og nedkassinger/foringer i himling vil stedvis kunne forekomme. Generelt er himling i bod/entre/hall nedsenket for å skjule tekniske anlegg/føringer.
Justeringer som beskrevet over berettiger ikke endring av kjøpesummen så lenge justeringene ikke er vesentlige og påvirker boligen negativt mht. rom, funksjon og kvaliteter. Justeringer som beskrevet over kan også medføre mindre endringer i beregningsmessig bruksareal, uten at dette berettiger endring av kjøpesum dersom boligene og prosjektets ytre mål er tilsvarende som på salgstidspunktet.
Plantegningene er i skalert målestokk. De må imidlertid ikke benyttes som grunnlag for bestilling av innredning eller møbler. Mindre avvik kan forekomme.
Krymping i betong, tre, plater etc. kan medføre riss. Selger er ikke forpliktet til utbedring av slike mangler utover normer/krav i Norsk Standard NS3420 3, utgave etter NBI-byggdetaljblad «520.008 toleranser, anbefalte toleranser til ferdige overflate for utførelse». Skader som måtte skyldes kjøpers bruk eller manglende vedlikehold vil heller ikke vedrøre selger.
Solgt ihht bustadoppføringsloven
Boligene selges i henhold til Bustadoppføringslova som regulerer kjøpers (forbrukers) rettigheter og plikter ved avtale om oppføring av bolig og kjøp av fast eiendom der bygningen ikke er fullført når avtalen inngås. Ved salg til aksjeselskap legges Avhendingslovens bestemmelser til grunn. For øvrig gjelder Lov om eierseksjoner for eierseksjonssameiet og driften av dette.
FORSINKET LEVERING
Selger kan ha rett til tilleggsfrister uten kompensasjon til kjøper etter reglene i Bustadoppføringslova. Kjøper er kjent med og aksepterer at forsinkelser som skyldes force majure, streik, ekstreme klimatiske forhold, brann, vannskade, innbrudd o.l gir selger rett til å forlenge fristen for overtakelse.
AVBESTILLING
Kjøpers adgang til å avbestille følger av bustadoppføringslova kap. VI. Dersom forbrukeren avbestiller fastsetter selgeren krav på vederlag og erstatning i samsvar med Bustadoppføringslova §§ 52- 54. Avbestilling før bygging er besluttet igangsatt vil medføre et avbestillingsgebyr på 10 % av kjøpesummen. Ved avbestilling etter at bygging er igangsatt vil selger ha krav på full erstatning for sitt økonomiske tap i henhold til bustadoppføringslova kapittel VI. Bestilte endrings- og tilleggsarbeider betales i slike tilfeller i sin helhet av kjøper. Kontakt megler for nærmere informasjon dersom avbestilling vurderes.
AVTALEBETINGELSER
Avtaleforholdet er underlagt bestemmelsene i lov av 13. juni 1997 nr. 43 om avtaler med forbruker om oppføring av ny bustad (Bustadoppføringslova).
Bustadoppføringslova bruker betegnelsen entreprenøren og forbrukeren, mens her brukes uttrykkene selger og kjøper om de samme betegnelsene.
Bustadoppføringslova sikrer kjøper rettigheter som ikke kan innskrenkes i kjøpekontrakten, jfr. Bustadoppføringslova § 3.
Prosjektet retter seg mot kjøper som ønsker å erverve bolig til eget bruk. Selger forbeholder seg retten til å forkaste eller anta ethvert kjøpstilbud uten å måtte begrunne dette.
For øvrig kommer gjeldende lovgivning til enhver tid til anvendelse. Bustadsoppføringslova kommer ikke til anvendelse der kjøper anses som profesjonell/investor, eller når boligene er ferdigstilt. I slike tilfeller vil handelen i hovedsak reguleres av lov om avhending av fasteiendom av 3.juli 1992 nr. 93. Selger kan likevel velge å selge etter Bustadoppføringslova, eventuelt ved å fravike deler av loven.
Kjøper er innforstått med at forpliktende finansieringsbevis for hele kjøpesummen skal forelegges megler når avtale om kjøp inngås iht. Bustadoppføringslovas § 46 2.ledd, og at disse opplysningene kan bli videreformidlet til utbyggers byggelånsbank.
Handelen er juridisk bindende for begge parter ved aksept. Dersom kjøper ikke overholder sin forpliktelse med tilfredsstillende finansieringsbevis, er kjøper allikevel bundet og selger vil kunne påberope avtalen som vesentlig misligholdt og heve avtalen. Kjøper samtykker til at omkostninger knyttet til heving og dekningssalg i så fall dekkes av kjøper.
Det forutsettes at skjøtet tinglyses på ny eier. Hvis kjøper ikke ønsker en hjemmelsoverføring av eiendommen til seg, må det tas forbehold om dette i kjøpstilbudet.
Interessenter og kjøper godtar at selger og megler bruker elektronisk kommunikasjon i salgsprosessen.
Garantier
Det stilles garantier i henhold til Bustadoppføringslovas bestemmelser. Garanti etter § 12 vil bli stilt i forbindelse med avtaleinngåelse. Garantien skal være pålydende 3% av kjøpesummen i byggetiden og 5% i 5 år etter overlevering av boligene til kjøper. Garanti etter § 47 forutsettes stilt om selger ønsker utbetalt forskudd/delinnbetaling/sluttoppgjør før hjemmelsovergang. Eventuelle påkrevde endringer av garantier ved eventuelle videresalg/transporter utføres ikke og bekostes ikke av selger.
Forsikring
Frem til overtagelse vil eiendommen være forsikret av selger. Etter overtagelse vil eiendommen forsikres gjennom sameiets fellesforsikring. Kjøper må selv besørge innboforsikring og forsikring av eventuelle særskilte påkostninger.
Budgiving
Boligene selges til fastpris.
Alle bud/kjøpetilbud på eiendommen skal være skriftlig og sendes meglerforetaket pr. fax, mail, sms eller via vår "gi bud"-knapp på våre nettsider. Knappen finner du også på Privatmeglerens hjemmeside for prosjektet, se på den enkelte bolig.
Bud/kjøpetilbud må ikke ha kortere akseptfrist enn til kl. 12.00 første virkedag etter siste annonserte visning. Lørdag regnes ikke som virkedag. Bud/kjøpetilbud med kortere frist enn dette kan ikke formidles av megler. Nærmere info om budgiving finner du på egen side sammen med kjøpetilbud/budskjema.
Som budgiver hos Privatmegleren kan du kreve budjournal fremlagt så snart handel er gjennomført.
Innhold i budjournal er lovregulert, og innebærer at budgivere må akseptere at opplysninger om budet kan bli fremlagt for selger, kjøper og øvrige budgivere. Budgiver som ikke blir kjøper, kan kreve kopi av anonymisert budjournal.
Lov om hvitvasking
Megler er underlagt lov om hvitvasking som innebærer plikt til å melde ifra til Økokrim om mistenkelige transaksjoner
Nyttige lenker
Nærområdet

Privatmegleren Jæren
Annonseinformasjon
| FINN-kode | 437934582 |
|---|---|
| Sist endret | 19. nov. 2025 10:07 |
| Referanse | 310250314 |
Annonsene kan være mangelfulle i forhold til lovpålagt opplysningsplikt. Før bindende avtale inngås oppfordres interessenter til å innhente komplett informasjon fra meglerforetaket, selger eller utleier.