Bildegalleri

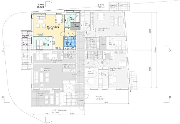
L1-02.

Kinotunet

Severin Larsens veg 2

Prisantydning2 425 000 kr
Totalpris
4 856 340 kr
Omkostninger
6 340 kr
Fellesgjeld
2 425 000 kr
Felleskost/mnd.
12 979 kr
  • Planlegging

    2025

  • Salgsstart

    4. kvartal 2025

  • Byggestart

    2. kvartal 2026

  • Overtakelse

    4. kvartal 2027

Nøkkelinfo

Boligtype
Leilighet
Etasje
1
Soverom
2
Rom
3
Bruksareal
76 m²

Les mer om bruksareal her

Fasiliteter

Balkong/Terrasse
Bredbåndstilknytning
Garasje/P-plass
Heis

Visning

Ta kontakt for å avtale visning.Visningspåmelding

Beskrivelse

Parkering

1 stk garasjeplass.

Ansvarlig megler

Hege Stange

Nærområdet

Annonseinformasjon

FINN-kode437129834
Sist endret20. nov. 2025 11:45
ReferanseEMA1.25319

Rapporter annonse

Annonsene kan være mangelfulle i forhold til lovpålagt opplysningsplikt. Før bindende avtale inngås oppfordres interessenter til å innhente komplett informasjon fra meglerforetaket, selger eller utleier.