Bildegalleri

Lekeplassen

Hus 2.

Prisantydning16 000 000 kr
Totalpris
16 158 280 kr
Omkostninger
158 280 kr
  • Planlegging

    Startet

  • Salgsstart

    05.11.2025

  • Byggestart

    Q1 2026

  • Overtakelse

    Q4 2026

Nøkkelinfo

Boligtype
Rekkehus
Soverom
4
Rom
7
Internt bruksareal
184 m² (BRA-i)
Bruksareal
203 m²
Eksternt bruksareal
19 m² (BRA-e)

Les mer om bruksareal her

Fasiliteter

Barnevennlig
Balkong/Terrasse
Garasje/P-plass
Offentlig vann/kloakk
Parkett
Turterreng
Sentralt
Moderne
Rolig
Balansert ventilasjon

Visning

Ta kontakt for å avtale visning.Visningspåmelding

Beskrivelse

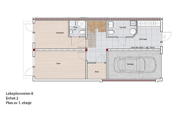
Hus nr 2 Snr. 2 har enkeltgarasje, biloppstillingsplass, tre bad i tillegg til fire soverom og tre stuer. Stuen i 1.etg. kan benyttes som soverom da det er godkjent for varig opphold. Stuen har utgang til hage og soverommet har eget bad samt utgang til hagen. Etasjen har en innvendig bod samt teknisk rom/bod. Stue og kjøkken har en størrelse på 54 kvm og ligger i andre etasje med utgang til balkong. Hovedsoverommet er plassert i denne etasjen og har eget bad samt bod/omkledningsrom.

I 3. etasje er det to soverom med utgang til balkong, baderom og en loftstue med utgang til balkong.

BESKRIVELSE


Boligtype

Rekkehus / Eierseksjon


Arealer

Totalt bruksareal: 203,0m²

  • BRA-i: 184,0 m²
  • BRA-e: 19,0 m²
  • BRA-b:  m²

1497,00 m² eiet tomt


Totalpris inkl. omkostninger

I tillegg til kjøpesummen må kjøper betale:

Dokumentavgift kr 156 950,00,-

Tinglysing pantedokument (kjøper) kr 545,00,-

Tinglysing skjøte kr 545,00,-

Pantattest kjøper (avsatt) kr 240,00,-


Dersom eiendommen selges til prisantydning og det kun tinglyses ett pantedokument, er totalprisen inkl. offentlige gebyrer, avgifter og øvrige kostnader kr 16 158 280,-. Det tas forbehold om endringer i offentlige gebyr.


Om boligen


Dette er et utdrag fra prosjektets salgsoppgave. For komplett salgsinformasjon henvises det til prosjektets hovedside, eller kontakt eiendomsmegler for mer informasjon.


OM OPPDRAGET


Eiendommen

Lekeplassveien 8, 0583 OSLO

i Oslo


Selger

Ospro eiendom AS


Eier


Eiendomsmegler

Oppdragsnummer: 17125002

Ansvarlig megler:Jon Solberg


EIE Løren & Økern

Løren & Økern Eiendomsmegling AS

NO 916 510 845 MVA


Prosjektets oppdragsnummer

Denne boligen er del av prosjektet "Lekeplassveien 8", og byggetrinnet "Lekeplassen". Byggetrinnet består av 3 enheter.


For å finne komplett salgsinformasjon, henvises interessenter til prosjektets hovedside med hovedoppdragsnummer 71250369. Kontakt eiendomsmegler hvis noe er uklart.


Nærområdet

Annonseinformasjon

FINN-kode436264807
Sist endret05. feb. 2026 12:58
Referanse17125002

Rapporter annonse

Annonsene kan være mangelfulle i forhold til lovpålagt opplysningsplikt. Før bindende avtale inngås oppfordres interessenter til å innhente komplett informasjon fra meglerforetaket, selger eller utleier.