Bildegalleri
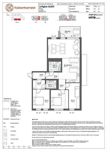
3A205
Asker / Vestre Billingstad
Kobberkvartalet Salgstrinn 3 - Hus 3
Bergerveien 12
Prisantydning8 600 000 kr
Prosjektets status
Planlegging
Sommeren 2025
Salgsstart
November 2025
Byggestart
3. Kvartal 2026
Overtakelse
Estimert 3. kvartal 2028
Nøkkelinfo
- Boligtype
- Leilighet
- Etasje
- 2
- Soverom
- 3
- Rom
- 4
- Internt bruksareal
- 106 m² (BRA-i)
- Bruksareal
- 111 m²
- Eksternt bruksareal
- 5 m² (BRA-e)
- Balkong/Terrasse
- 8 m² (TBA)
Fasiliteter
Balkong/Terrasse
Bredbåndstilknytning
Garasje/P-plass
Heis
Utsikt
Vaktmester-/vektertjeneste
Turterreng
Beskrivelse
Ansvarlig megler
Finn Bragnes
NB: Knappen for å vise hele beskrivelsen har kun en visuell effekt.
NB: Knappen for å vise hele beskrivelsen har kun en visuell effekt.
Nyttige lenker
Nærområdet
Sem & Johnsen
Boliger utenom det vanlige
Ferd Eiendom
Utbygger
Annonseinformasjon
| FINN-kode | 435714298 |
|---|---|
| Sist endret | 01. des. 2025 11:33 |
| Referanse | 20-25-1532 |
Annonsene kan være mangelfulle i forhold til lovpålagt opplysningsplikt. Før bindende avtale inngås oppfordres interessenter til å innhente komplett informasjon fra meglerforetaket, selger eller utleier.