Bildegalleri
E103.jpg
Inaktiv
Ankerløkka Park bygg 2
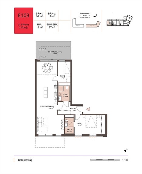
Ankerløkka E103
Prisantydning6 590 000 kr
Prosjektets status
Planlegging
Klargjøres for salgsstart
Salgsstart
November 2025
Byggestart
Antatt 1. kvartal 2026
Overtakelse
Antatt 1./2. kvartal 2028
Nøkkelinfo
- Boligtype
- Leilighet
- Etasje
- 1
- Soverom
- 2
- Rom
- 3
- Bruksareal
- 97 m²
Fasiliteter
Balkong/Terrasse
Bredbåndstilknytning
Garasje/P-plass
Heis
Kabel-TV
Turterreng
Visning
På visningene 23. og 24. november vil det være lift på tomten. Dette er en flott anledning til å se tomten fra en annen vinkel enn på bakken, og få et bedre inntrykk av utsynet over området.
Frist for innlevering av kjøpetilbud ifm salgsstart er tirsdag 25. november kl. 10.
Visninger avholdes på vårt visningssenter med adresse Rektor Jørgensens gate 2.
VisningspåmeldingBeskrivelse
Ansvarlig megler
Tom Z. Bliksmark
NB: Knappen for å vise hele beskrivelsen har kun en visuell effekt.
NB: Knappen for å vise hele beskrivelsen har kun en visuell effekt.
Nyttige lenker
Nærområdet
Sem & Johnsen
Annonseinformasjon
| FINN-kode | 435420236 |
|---|---|
| Sist endret | 03. nov. 2025 14:56 |
| Referanse | 20-25-1910 |
Annonsene kan være mangelfulle i forhold til lovpålagt opplysningsplikt. Før bindende avtale inngås oppfordres interessenter til å innhente komplett informasjon fra meglerforetaket, selger eller utleier.