Åsjordet 3

Åsjordet 3

KartÅsjordet 3, 0381 Oslo
Prisantydning13 950 000 kr
Totalpris
14 097 804 kr
Omkostninger
147 804 kr
Felleskost/mnd.
6 388 kr
  • Planlegging

    2025

  • Salgsstart

    2025

  • Byggestart

    2026

  • Overtakelse

    2. kvartal 2027

Nøkkelinfo

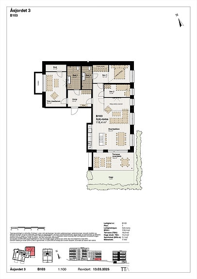
Boligtype
Leilighet
Etasje
1
Soverom
3
Rom
4
Internt bruksareal
118 m² (BRA-i)
Bruksareal
123 m²
Eksternt bruksareal
5 m² (BRA-e)
Balkong/Terrasse
16 m² (TBA)

Les mer om bruksareal her

Fasiliteter

Balkong/Terrasse
Bredbåndstilknytning
Garasje/P-plass
Heis
Kabel-TV
Utsikt
Vaktmester-/vektertjeneste

Visning

Alle våre visninger har påmelding. På denne måten sikrer vi at megler har god oversikt og tid til å imøtekomme alle interessenter. Meld deg på visning ved å trykke på lenken visningspåmelding. Dersom det ikke er noen påmeldt visning, kan visningen bli avlyst.
Visningspåmelding

Beskrivelse

Felleskostnader inkluderer

Alle seksjonseiere i Sameiet må svare for sin forholdsmessige andel av forpliktelser/ fellesutgifter overfor Sameiet. Felleskostnader vil avhenge av hvilke tjenester Sameiet ønsker utført i felles regi. I budsjettet er det lagt til grunn at bl.a. forsikring av byggene, forretningsførsel, kostnader til drift og vedlikehold av utomhusarealer, kommunale avgifter, styrehonorar, strøm på fellesarealer, renhold og vedlikehold av fellesarealer, vaktmestertjenester m.m. er inkludert. Kjøper er innforstått med at Sameiet g jennom egne vedtak kan endre fellesutgiftene.

Det foreligger utkast til budsjett, som vil være ett av vedleggene til kjøpekontrakt. Utkast kan fås ved henvendelse til megler. Stipulerte månedlige felleskostnader for første driftsår fremgår av prislisten. Kjøper er innforstått med at endelig budsjett fastsettes av styret.
For energikostnader til oppvarming og varmt tappevann kreves det inn et akontobeløp som avregnes mot det reelle forbruket i for hele sameiet og fordeles ut på seksjonseierne etter brøk. Iht. utkast til budsjett vil et forventet nivå på forbruk ligge på ca. kr. 6,- pr. kvm BRA pr. måned.

Selger, vil på vegne av sameiet, inngå avtale med fiberleverandør. Kostnaden avhenger av leverandør og løsning som velges, og vil bli fordelt med likt beløp for hver bolig. Basert på erfaringstall er månedlig kostnader estimert til minstepris kr 10,- per leilighet. Kjøper bestiller selv bredbåndskapasitet og TV-pakke etter ønske og behov fra leverandør.

Det vil også tilkomme en ekstra månedlig felleskostnad ved kjøp av parkeringsplass. Forventet kostnadsnivå er ca. 200,- per parkeringsplass per måned. Dette er også hensyntatt i utkastet til budsjettet.

Det tas forbehold om endringer i stipulerte kostnader, da dette er basert på erfaringstall. Det tas også forbehold om at oppgitte arealer, antall eierseksjoner, organisering av fellesområder og øvrige opplysninger om prosjektet kan endre forutsetningene for budsjettforslaget.
Selger forbeholder seg retten til å inngå nødvendige driftsavtaler på vegne av Sameiet før overlevering. Det er en forutsetning for Selgers reklamasjonsansvar at Sameiet har avtaler om drift, service og vedlikehold på plass i reklamasjonsperioden. Det kan være bindingstid for de ulike driftsavtaler.

Ansvarlig megler

Stian Pøhner

Nærområdet

KartÅsjordet 3, 0381 Oslo

Annonseinformasjon

FINN-kode434410430
Sist endret30. okt. 2025 09:49
Referanse14-0224/25

Rapporter annonse

Annonsene kan være mangelfulle i forhold til lovpålagt opplysningsplikt. Før bindende avtale inngås oppfordres interessenter til å innhente komplett informasjon fra meglerforetaket, selger eller utleier.