Bildegalleri

Anton Bergs veg 56

1-1

Prisantydning6 090 000 kr
Totalpris
6 119 407 kr
Omkostninger
29 407 kr
Felleskost/mnd.
870 kr
  • Planlegging

    Rammegodkjent prosjekt

  • Salgsstart

    Oktober 2025

  • Byggestart

    2026

  • Overtakelse

    2027

Nøkkelinfo

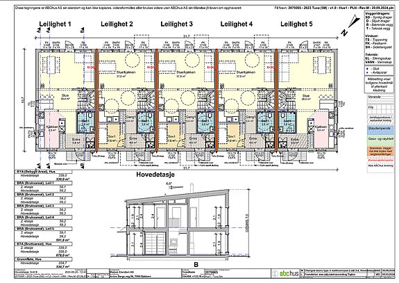
Boligtype
Rekkehus
Soverom
4
Rom
5
Internt bruksareal
118 m² (BRA-i)
Bruksareal
118 m²
Eksternt bruksareal
5 m² (BRA-e)

Les mer om bruksareal her

Visning

Ta kontakt for å avtale visning.Visningspåmelding

Beskrivelse

Generell informasjon om prosjektet

________________________________________________________________________


Standard

Boligene leveres nøkkelferdig. Se leveransebeskrivelse vedlagt.


Det er lagt til grunn en leveranse av god kvalitet og med arealeffektive planløsninger, moderne arkitektonisk uttrykk og funksjonelle løsninger.





Parkering/bod/sykkelparkering

Det medfølger én parkeringsplass i kjeller, en bod og plass for sykkelparkering til hver boenhet i felles parkeringskjeller. Parkeringsplass overtas samtidig med boligen.

Blir parkeringen seksjonert som tilleggsdel til boligseksjonene eller blir en del av sameiets fellesareal vil dette bli regulert i sameiets vedtekter.

Selger vil innen overtakelse utarbeide plantegning med nummerering av parkeringsplasser. Selger forbeholder seg retten til å fordele parkeringsplasser per overtakelse.


Alle p-plasser blir klargjort for elbillading. Egen ladekabel direkte på egen strømmåler. Hver kjøper gis mulighet til separat avtaleinngåelse/abonnement med valgt leverandør.

HC-plasser vil bli etablert i tråd med reguleringsplan.


Nærområdet

Annonseinformasjon

FINN-kode434241421
Sist endret28. okt. 2025 23:02
Referanse32510201

Rapporter annonse

Annonsene kan være mangelfulle i forhold til lovpålagt opplysningsplikt. Før bindende avtale inngås oppfordres interessenter til å innhente komplett informasjon fra meglerforetaket, selger eller utleier.