Bildegalleri
12 C H0607-Salgstegning
Trondheim Sentrum
STASJONSKVARTALET - Trinn 1
Gryta 12 C (12C-607)
Prisantydning12 500 000 kr
Prosjektets status
Planlegging
2025
Salgsstart
2025
Byggestart
2026
Overtakelse
2028
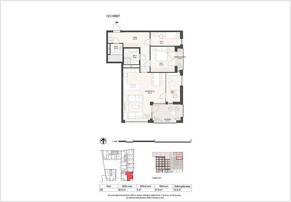
Nøkkelinfo
- Boligtype
- Leilighet
- Etasje
- 6
- Soverom
- 3
- Rom
- 4
- Internt bruksareal
- 93 m² (BRA-i)
- Bruksareal
- 98 m²
- Eksternt bruksareal
- 5 m² (BRA-e)
- Balkong/Terrasse
- 12 m² (TBA)
Visning
onsdag, 28. januar
14:00 – 18:00
Velkommen til vårt visningssenter i Nye Trondheim Sentralstasjon. Vi har åpent onsdager kl 14-18. Inngang finner du opp trappen til Sjøgangen (passasjen over til Powerhouse og Brattøra).
VisningspåmeldingBeskrivelse
Sjarmerende og særegen 4-roms hjørneleilighet. Romslig entrè med plass til garderobeskap. 2 bad. Hovedsoverom har fransk balkong. Åpen løsning mellom stue og kjøkken. Soverom på stue leveres med glassvegg som gir mange muligheter. Sørvendt balkong og stuevindu med utsikt over Trondheim.
Ansvarlig megler
Kristian Dahl-Andersen
NB: Knappen for å vise hele beskrivelsen har kun en visuell effekt.
NB: Knappen for å vise hele beskrivelsen har kun en visuell effekt.
Nærområdet
DNB Eiendom AS
Fra hjem til hjem
Annonseinformasjon
| FINN-kode | 433637037 |
|---|---|
| Sist endret | 22. jan. 2026 09:42 |
| Referanse | 814240084 |
Annonsene kan være mangelfulle i forhold til lovpålagt opplysningsplikt. Før bindende avtale inngås oppfordres interessenter til å innhente komplett informasjon fra meglerforetaket, selger eller utleier.