Bildegalleri

12 C H0510-Salgstegning.jpg

Trondheim Sentrum

STASJONSKVARTALET - Trinn 1

Gryta 12 C (12C-510)

Prisantydning3 950 000 kr
Totalpris
3 977 240 kr
Omkostninger
27 240 kr
Felleskost/mnd.
1 941 kr
  • Planlegging

    2025

  • Salgsstart

    2025

  • Byggestart

    2026

  • Overtakelse

    2028

Nøkkelinfo

Boligtype
Leilighet
Etasje
5
Soverom
1
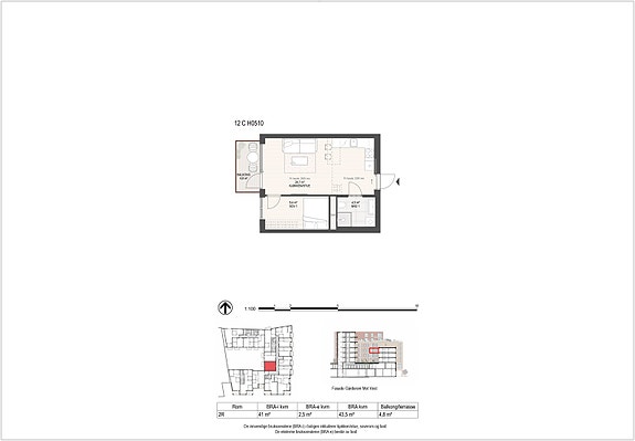
Rom
2
Internt bruksareal
41 m² (BRA-i)
Bruksareal
44 m²
Eksternt bruksareal
3 m² (BRA-e)
Balkong/Terrasse
5 m² (TBA)

Les mer om bruksareal her

Visning

onsdag, 28. januar
14:00 – 18:00
Velkommen til vårt visningssenter i Nye Trondheim Sentralstasjon. Vi har åpent onsdager kl 14-18. Inngang finner du opp trappen til Sjøgangen (passasjen over til Powerhouse og Brattøra).
Visningspåmelding

Beskrivelse

Fin og praktisk 2-roms med balkong inn mot gårdsrom. Åpen løsning mellom stue og kjøkken. Utvidelsesmulighet på kjøkkeninnredning. God plass til garderobe på soverom.

Ansvarlig megler

Kristian Dahl-Andersen

Nærområdet

Annonseinformasjon

FINN-kode433637035
Sist endret24. okt. 2025 06:32
Referanse814240076

Rapporter annonse

Annonsene kan være mangelfulle i forhold til lovpålagt opplysningsplikt. Før bindende avtale inngås oppfordres interessenter til å innhente komplett informasjon fra meglerforetaket, selger eller utleier.