Bildegalleri
12 C H0501-Salgstegning.jpg
Trondheim Sentrum
STASJONSKVARTALET - Trinn 1
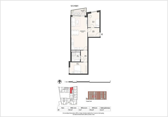
Gryta 12 C (12C-501)
Prisantydning6 350 000 kr
Prosjektets status
Planlegging
2025
Salgsstart
2025
Byggestart
2026
Overtakelse
2028
Nøkkelinfo
- Boligtype
- Leilighet
- Etasje
- 5
- Soverom
- 2
- Rom
- 3
- Internt bruksareal
- 70 m² (BRA-i)
- Bruksareal
- 75 m²
- Eksternt bruksareal
- 5 m² (BRA-e)
- Balkong/Terrasse
- 5 m² (TBA)
Visning
onsdag, 28. januar
14:00 – 18:00
Velkommen til vårt visningssenter i Nye Trondheim Sentralstasjon. Vi har åpent onsdager kl 14-18. Inngang finner du opp trappen til Sjøgangen (passasjen over til Powerhouse og Brattøra).
VisningspåmeldingBeskrivelse
Smart 3-roms leilighet med balkong. Entrè med plass til garderobeskap. Praktisk hjørnekjøkken og stue med plass til spisebord og sofakrok. To gode soverom.
Ansvarlig megler
Kristian Dahl-Andersen
NB: Knappen for å vise hele beskrivelsen har kun en visuell effekt.
NB: Knappen for å vise hele beskrivelsen har kun en visuell effekt.
Nærområdet
DNB Eiendom AS
Fra hjem til hjem
Annonseinformasjon
| FINN-kode | 433637032 |
|---|---|
| Sist endret | 24. okt. 2025 06:32 |
| Referanse | 814240067 |
Annonsene kan være mangelfulle i forhold til lovpålagt opplysningsplikt. Før bindende avtale inngås oppfordres interessenter til å innhente komplett informasjon fra meglerforetaket, selger eller utleier.