Bildegalleri

Plantegning N2-201.jpg

Stasjonstunet

Stasjonstunet|N2-201

Prisantydning7 050 000 kr
Totalpris
7 096 335 kr
Omkostninger
46 335 kr
Felleskost/mnd.
4 648 kr
  • Planlegging

    Pågår

  • Salgsstart

    21. Oktober

  • Byggestart

    1. halvår 2026

  • Overtakelse

    1. halvår 2028

Nøkkelinfo

Boligtype
Leilighet
Etasje
2
Soverom
3
Rom
4
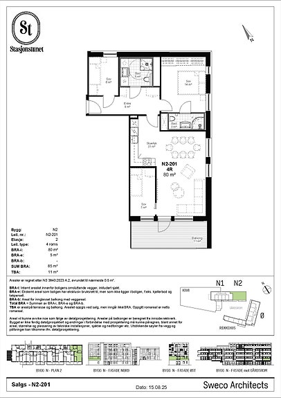
Internt bruksareal
80 m² (BRA-i)
Bruksareal
85 m²
Eksternt bruksareal
5 m² (BRA-e)
Balkong/Terrasse
11 m² (TBA)

Les mer om bruksareal her

Visning

Ta kontakt for å avtale visning.Visningspåmelding

Beskrivelse

Totalt bruksareal BRA: 85 kvm
BRA-i: 80 kvm
BRA-e: 5 kvm
TBA: 11 kvm

Arealbeskrivelse;
Arealet er beregnet ut fra Norsk standard NS 3940:2023. BRA-i: Internt arealet innenfor boligens omsluttende vegger, inkludert sjakt. BRA-e: Eksternt areal som boligen har eksklusiv bruksrett til, men som ikke ligger i boligen, f.eks. kjellerbod. BRA-b: Areal for innglasset balkong med veggareal. Total BRA = Summen av BRA-i, BRA-e og BRA-b. TBA er areal på terrasse og balkong. Arealet oppgis ved salg, men inngår ikke i BRA. Oppgitt romareal er netto romareal. De oppgitte arealer er å betrakte som cirka-arealer. Partene har ingen krav mot hverandre dersom arealet skulle vise seg å være 5 % mindre / større enn det oppgitte areal.

Ansvarlig megler

Lars Petter Hansrud

Nærområdet

Annonseinformasjon

FINN-kode433231894
Sist endret14. jan. 2026 10:01
ReferanseRCOPS1.25874

Rapporter annonse

Annonsene kan være mangelfulle i forhold til lovpålagt opplysningsplikt. Før bindende avtale inngås oppfordres interessenter til å innhente komplett informasjon fra meglerforetaket, selger eller utleier.