Bildegalleri
Plantegning N1-101.jpg
Stasjonstunet
Stasjonstunet|N1-101
Prosjektets status
Planlegging
Pågår
Salgsstart
21. Oktober
Byggestart
1. halvår 2026
Overtakelse
1. halvår 2028
Nøkkelinfo
- Boligtype
- Leilighet
- Etasje
- 1
- Soverom
- 3
- Rom
- 4
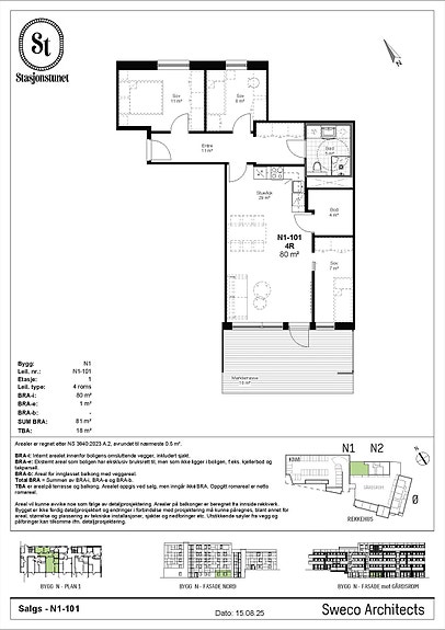
- Internt bruksareal
- 80 m² (BRA-i)
- Bruksareal
- 81 m²
- Eksternt bruksareal
- 1 m² (BRA-e)
- Balkong/Terrasse
- 18 m² (TBA)
Beskrivelse
Totalt bruksareal BRA: 81 kvm
BRA-i: 80 kvm
BRA-e: 1 kvm
TBA: 18 kvm
Arealbeskrivelse;
Arealet er beregnet ut fra Norsk standard NS 3940:2023. BRA-i: Internt arealet innenfor boligens omsluttende vegger, inkludert sjakt. BRA-e: Eksternt areal som boligen har eksklusiv bruksrett til, men som ikke ligger i boligen, f.eks. kjellerbod. BRA-b: Areal for innglasset balkong med veggareal. Total BRA = Summen av BRA-i, BRA-e og BRA-b. TBA er areal på terrasse og balkong. Arealet oppgis ved salg, men inngår ikke i BRA. Oppgitt romareal er netto romareal. De oppgitte arealer er å betrakte som cirka-arealer. Partene har ingen krav mot hverandre dersom arealet skulle vise seg å være 5 % mindre / større enn det oppgitte areal.
Ansvarlig megler
Lars Petter Hansrud
Nærområdet
Røisland & Co Eiendomsmegling AS
Annonseinformasjon
| FINN-kode | 433231815 |
|---|---|
| Sist endret | 14. jan. 2026 10:01 |
| Referanse | RCOPS1.25851 |
Annonsene kan være mangelfulle i forhold til lovpålagt opplysningsplikt. Før bindende avtale inngås oppfordres interessenter til å innhente komplett informasjon fra meglerforetaket, selger eller utleier.