Bildegalleri
H8B Salgstegning
Saga Ås
Saga Ås
Prosjektets status
Planlegging
-
Salgsstart
Salget er i gang
Byggestart
Estimert våren 2026
Overtakelse
Estimert 2.kvartal 2027
Nøkkelinfo
- Boligtype
- Tomannsbolig
- Soverom
- 3
- Rom
- 5
- Internt bruksareal
- 155 m² (BRA-i)
- Bruksareal
- 155 m²
- Balkong/Terrasse
- 26 m² (TBA)
Beskrivelse
Oppdragsansvarlig
PrivatMegleren Nyeboliger AS / Amit Sharma
Selger/Utbygger
Løvenskiold Eiendom AS
Betegnelse
Andelsnr. 16 Orgnr. 980079775 i Ås kommune
Byggeår
2026
Beliggenhet
Hjemmet som blir en del av din fortelling - velkommen hjem!
Å bo i Ås er å leve med korte avstander til det du trenger. Her er naturen en del av hverdagen, og alt ligger til rette for et liv med mindre logistikk og mer ro. Barnehage og skole ligger en trygg spasertur unna, toget tar deg inn til Oslo på 17 minutter, og naturen ligger bokstavelig talt rett utenfor døra. Her kan du ta med barna på skogstur etter middag, sykle til trening på ti minutter, og handle mat på vei hjem. Du kan også handle ferske egg, honning og grønnsaker fra nærliggende gårder, og kjenne smaken av det som er produsert med kjærlighet og omtanke.
I Saga Ås er boligene tegnet med småbarnsfamilienes hverdag i tankene. Derfor er det lagt stor vekt på smarte og gjennomtenkte løsninger som gjør det enklere å få dagene til å gå opp. Saga Ås vil bestå av totalt 31 boliger som er plassert og utformet på en måte som gir tydelige overganger mellom det private og det som er felles. Hver bygning, hvert uterom og hver passasje er nøye planlagt for å skape en god balanse mellom det å være for seg selv og det å være sammen med andre. Her er det lune soner, grønne hager og fellesområder som inviterer til møtepunkt mellom naboer. Interiøret i boligene er nøye gjennomtenkt, med materialer, farger og uttrykk som gir en rolig og innbydende atmosfære.
I Saga Ås ligger alt til rette for å lande. Her kan du finne ro i hverdagen, pusterom i naturen og trygghet i nabolaget. I Saga Ås løfter vi frem det som betyr noe: Det ekte, det nære og det trygge. Tre verdier som ligger i bunn for hvordan området er utviklet, og hvordan boligene er utformet.
Velkommen til Saga Ås!
Klikk på hjemmesiden for mer informasjon og se boligvelgeren for ledige leiligheter.
Beskrivelse av nærområdet / fasiliteter
Ås - det du trenger i nærheten av deg og kort vei til og fra Oslo
Å bo i Ås er å leve med korte avstander til det du trenger. Her er naturen en del av hverdagen, og alt ligger til rette for et liv med mindre logistikk og mer ro.
Barnehage og skole ligger en trygg spasertur unna, toget tar deg inn til Oslo på 19 minutter, og naturen ligger bokstavelig talt rett utenfor døra. Her kan du ta med barna på skogstur etter middag, sykle til trening på ti minutter, og handle mat på vei hjem.
Barnehage bare et par skritt unna:
Med Sagalund barnehage vegg i vegg med boligområdet, er det kort vei til en god start på dagen for de minste. I tillegg finnes det flere barnehager i gangavstand, noe som gir fleksibilitet og valgmuligheter. Når leveringen går raskt og smidig, får både store og små en bedre start på hverdagen og mer tid sammen.
En trygg skolevei:
Fra Saga Ås er det kort vei til både barne- og ungdomsskole. Åsgård barneskole ligger kun 13 minutters gange unna, og Ås ungdomsskole ligger en 33 minutters tur eller 9 minutter på sykkel unna. Her får barna en trygg og forutsigbar skolevei i grønne omgivelser, og etter hvert friheten til å klare den selv.
Vitenparken Campus Ås:
I hjertet av Ås finner du Vitenparken - et levende vitensenter hvor hele familien kan utforske natur, teknologi og bærekraft gjennom lek og opplevelser. Her kan barna lage egne eksperimenter, delta på kreative verksteder og lære mer om alt fra matproduksjon til klima. Vitenparken er bare en sykkeltur unna Saga Ås.
Kreative muligheter i Ås kulturskole:
I Ås får barn og unge utvikle sine kreative sider gjennom kulturskolen. Enten det handler om å spille et instrument, danse, tegne eller å stå på en scene, gir Ås kulturskole et trygt og inspirerende fellesskap hvor mestring og glede står i sentrum.
Aktiv lek og mestring i Ås Turn:
Ås Turnforening er et samlingspunkt for små og store som elsker å være i bevegelse. Her tilbys allsidige aktiviteter som turn og gymlek med fokus på glede, motorisk utvikling og fellesskap. Det er lav terskel og høy energi, og barna får bruke kroppen, bygge selvtillit og finne mestring i trygge omgivelser.
Eventyr, utforsking og ro på Ås bibliotek:
I Ås finner du et bibliotek som tilbyr mye mer enn bøker. Her finner du møteplass for nysgjerrighet, fantasi og fellesskap. For barnefamilier byr biblioteket på et bredt program med lesestunder, verksteder, høytlesning og arrangementer som gir barna en tidlig kjærlighet til språk og historiefortelling. Her er det rom for både rolige stunder i lesekroken og spennende oppdagelser.
Finn roen i naturens lekeplasser:
Rett utenfor døren venter skogen med turmuligheter og hyggelige oppholdssteder for hele familien. I Sagaskogen ligger Sagahuken, en gapahuk perfekt for en pause etter barnehagen eller en enkel ettermiddagstur. Litt lenger inn i Eldorskogen finner du Harahuken som er et rolig sted for grilling, matpakker og tid sammen i naturen. Og i Ekornskogen ligger Ekornhuken med plass til å spille ball, kubb eller leke mellom trærne.
Trening når det passer deg:
Kun 14 minutters gange fra Saga Ås, ligger Fresh Fitness. Her finner du godt utstyrte treningsarealer som er åpent fra 05-24 alle dager heleåret. Benytt deg av gode treningsfasiliteter når det passer deg og hverdagen din best. Fresh ligger rett ved togstasjonen, så treningen kan gjøres rett etter jobb eller før jobb. Effektivt og enkelt i en ellers hektisk hverdag!
Innhold
Interiøret i boligene er nøye gjennomtenkt, med materialer, farger og uttrykk som gir en rolig og innbydende atmosfære. Interiørarkitekt Paulsen og Nilsen har bistått med utforming av design. Her møter funksjon visuell kvalitet. Oppholdsrommene er store, åpne og fleksible. De er utformet for å kunne romme både morgenkaffe og middagsgjester, hverdagskaos og konfirmasjonsfest. Hjemmene i Saga Ås skiller seg fra mange nybygg ved å ha personlighet, varme og kvalitet.
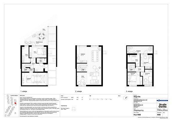
Boligene går over tre plan tre eller fire soverom. Hovedplanet vil bestå av stue og kjøkken, toppetasjen vil bestå av tre soverom og bad. Inngangsplan består av gang, stue/soverom og bad bod/vaskerom. Fra parkeringen vil det være en sluse rett inn til boligen med enkel og praktisk tilgang til og fra bilen.
Plan 1: Garasje, gang, bad, bod stue/soverom med utgang til markterrase.
Plan 2: Stue og kjøkken
Plan 3: Gang, tre soverom, bad. Hovedsoverom har utgang til privat balkong.
Oppvarming
Leilighetene oppvarmes med elektrisk gulvvarme i rom med fliser. Det leveres panelovn i stue/kjøkkendel.
Parkering / Garasje
1 stk. garasje med direkte adkomst via sluse og inn til bolig.
Adkomst
Enkel adkomst fra Brekkeveien.
Andre faste løpende kostnader
Felleskostnader ca. kr 4 500 pr. mnd. pr. bolig. Se prisliste for felleskostnad for den enkelte enhet.
Dette dekker kommunale avgifter, renovasjon, forsikring på byggene, vedlikehold og drift av
borettslagets fellesarealer, vaktmester, forretningsførsel, snømåking, styrehonorar, renhold og strøm på fellesarealer er inkludert. Kostnadene fordeles pr. boenhet.
Videre kommer kostnader til digital-TV/bredbånd i tillegg til felleskostnadene. Kostnaden er stipulert til kr 450 per måned for grunnpakke.
Lov om hvitvasking
Megler er underlagt lov om hvitvasking som innebærer plikt til å melde ifra til Økokrim om mistenkelige transaksjoner
Nyttige lenker
Nærområdet

PrivatMegleren Nyeboliger Oslo
Annonseinformasjon
| FINN-kode | 433162295 |
|---|---|
| Sist endret | 20. okt. 2025 20:17 |
| Referanse | 304250291 |
Annonsene kan være mangelfulle i forhold til lovpålagt opplysningsplikt. Før bindende avtale inngås oppfordres interessenter til å innhente komplett informasjon fra meglerforetaket, selger eller utleier.