Bildegalleri

Lillestrøm/Blaker

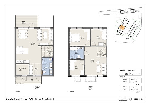
Hus 2 - Seksjonsnummer 2

Prisantydning4 990 000 kr
Totalpris
5 019 467 kr
Omkostninger
29 467 kr
  • Planlegging

    2025

  • Salgsstart

    Oktober 2025

  • Byggestart

    2025

  • Overtakelse

    2026

Nøkkelinfo

Boligtype
Rekkehus
Soverom
3
Rom
5
Internt bruksareal
140 m² (BRA-i)
Bruksareal
140 m²
Balkong/Terrasse
18 m² (TBA)
Energimerking
B

Les mer om bruksareal her

Fasiliteter

Balansert ventilasjon
Balkong/Terrasse
Barnevennlig
Bredbåndstilknytning
Garasje/P-plass
Kabel-TV
Lademulighet
Offentlig vann/kloakk
Peis/Ildsted
Turterreng

Visning

Ta kontakt for å avtale visning.

Nærområdet

Annonseinformasjon

FINN-kode433039977
Sist endret23. okt. 2025 08:14

Rapporter annonse

Annonsene kan være mangelfulle i forhold til lovpålagt opplysningsplikt. Før bindende avtale inngås oppfordres interessenter til å innhente komplett informasjon fra meglerforetaket, selger eller utleier.