Bildegalleri

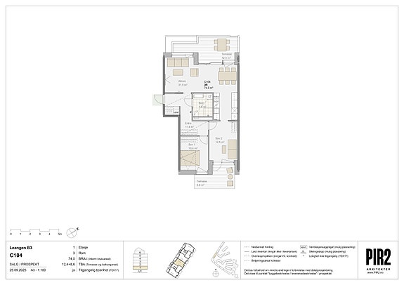
Planskisse leilighet C104

Leangenbukta - Saltakshus C

Leilighet: Leangenbukta Saltakhus C

Prisantydning5 290 000 kr
Totalpris
5 336 590 kr
Omkostninger
46 590 kr
Felleskost/mnd.
2 080 kr
  • Planlegging

    -

  • Salgsstart

    -

  • Byggestart

    -

  • Overtakelse

    -

Nøkkelinfo

Boligtype
Leilighet
Etasje
1
Soverom
2
Rom
3
Internt bruksareal
74 m² (BRA-i)
Bruksareal
0 m²
Eksternt bruksareal
5 m² (BRA-e)

Les mer om bruksareal her

Visning

Ta kontakt for å avtale visning.Visningspåmelding

Beskrivelse

Matrikkel

Gnr. 412 bnr. 256 i Trondheim kommune

Prisinformasjon

Ordinærpris
Totalpris: 5 336 620,-
Omkostninger: 46 620,-
Fellesutgifter år 1-5: 2 080,-

Adresse

Leangenbukta Saltakhus C
7041
Trondheim

Om prosjektet

Leangenbukta ligger sentralt på Lade, i Haakon VIIs gate. Prosjektet består av ca 500 boliger, fordelt på en variert bebyggelse. Her har vi allerede overlevert ca 230 boliger.

Uteområdet oppleves som skjermet, og kobler seg til Ladestien som passerer gjennom prosjektet. Her har du sentral beliggenhet på den ene siden, og en naturnær og rolig beliggenhet på den andre siden.

Bebyggelsen trapper ned fra en bymessig bebyggelse langs hovedgatene på den øvre
delen av tomta, til en lavere og mer åpen struktur mot kulturlandskapet mot Ladestien.

Hele boligområdet skal være bilfritt med parkeringskjeller under bakken og godt tilrettelagt for utendørs aktiviteter, gang- og sykkeltrafikk.

Vår ambisjon er at Leangenbukta skal bli et trygt og godt boligområde hvor den varierte bebyggelsen skaper en god dynamikk og trivsel på tvers av alder og familiesituasjon.

Om området

Beliggenhet
Leangenbukta ligger på Lade i Trondheim, hvor Haakon VIIs gate møter Lade Allé i øst.

Dagligvare og handel
Her er det gangavstand til alle hverdagsfunksjoner som dagligvare, kjøpesentre, spesialforretninger, kafè- og spiseplasser samt flere treningssentre.

Kollektivtransport
Området er et knutepunkt for kollektivtransport med buss og metrobussforbindelser, samt Leangen togstasjon. Her blir det kort avstand til E6, som raskt fører deg til Værnes Lufthavn, Midtbyen og andre bydeler. Store deler av Lade er også bundet sammen av sykkelveier, så her er det enkelt å ferdes på to hjul.

Friluftsliv
Boligprosjektet grenser til kulturlandskapet rundt Leangen Gård, Leangenbukta og Ladestien. Her kan du følge stien, bukt for bukt helt inn til byen, med det den byr på av badeplasser og spisesteder. Den er et populært sted for trening, aktivitet og rekreasjon.

Aktivitetsparken
Midt i boligområdet finner du aktivitetsparken. Her oppmuntres det til aktivitet for store og små, med enkel tilgang til Ladestien som passerer like ved. Det vil også bli flere lekeplasser å utforske på området.

Barnehage
I reguleringsplanen til Leangenbukta er det tilrettelagt for en offentlig barnehage som vil grense til Ladestien og kulturlandskapet rundt Leangen Gård.

Slik blir boligene

Saltakshus C:

Endelig kan vi ønske velkommen til et helt nytt bygg i koselige Leangenbukta, som ligger sentralt til på Lade og samtidig og nært fjorden.
Saltakshus C ligger plassert mellom det sjarmerende torget på den ene siden og ut mot Lade Allé på den andre.
Her kan du velge mellom 34 moderne leiligheter fra 41 til 79 kvm - med noen av våre mest gjennomtenkte planløsninger.
Enten du ønsker en effektiv 2-roms eller en romslig 3-roms, finner du et hjem som kombinerer funksjonalitet, lys og luft med den gode følelsen av kvalitet.
Flere av leiligheten er gjennomgående og får balkong både mot sørøst, inn mot det hyggelige torget, og mot nordvest. Det gir lys, luft og mulighet til å velge uteplass etter tid på dagen. Det er også 3-roms leiligheter hvor kjøper selv kan velge i flere alternative planløsninger å velge i.

Byggets særpreg med de skrå takflatene skiller seg ut fra dagens boligblokker, og bidrar til mer lys og sol i uteområdene.

Alle leiligheten vil ha egen sportsbod i kjeller, samt at det medfølger p-plass med utvalgte leiligheter. Dette fremkommer i prislisten eller på nettsiden.

De ulike leilighetstypene:

2- roms på 41 m²
- Romslig åpen stue -og kjøkkenløsning på over 20 m²
- God oppbevaring på soverom og i entrè
- Balkong på ca 10 m²

3-roms på 74 - 77 m²
- Gjennomgående og lys leilighet med store vindusflater
- Romslige balkonger
- 2 soverom, hvor det ene har skyvedører inn til stue. Rommet kan derfor benyttes som alternativ stue

Alternativ 3-romsløsning
3-roms på 74 -77 m²
Soverom 2 har utgang til balkong samt skyvedør til kjøkken, slik at rommet enkelt kan benyttes som alternativ stue
Alternativ 1:
Mulighet for innvendig bod (mot ekstra kostnad)
Alternativ 2:
Mulighet for Walk in closet i tilknytning til hovedsoverom (mot ekstra kostnad)

Toppleiligheter
3-roms på 67- 79 m²
- To takterrasser
- Ekstra takhøyde
- Romslig og åpent stue/kjøkkenareal

Fellesarealer

Den sentrale beliggenheten i Leangenbukta gjør at du har alt du trenger i nærområdet, noe som vil redusere bruken av bil.

Beboere vil få tilgang til:
- Innvendig sykkelparkering
- Bil-sykkelvaskestasjon
- Mekkebod for vedlikehold av bla. sykkel
- Bildelingstjeneste.
- Lounge
- Treningsrom
- Selskapsrom som man kan leie ved behov
- Gjesteleilighet, som beboere kan leie ved behov
- Bilfritt uteområde, med parkeringskjeller under bakken
- Knutepunkt for kollektivtransport
- Grønt friområde, skjermet fra trafikk

Som en del av grønn strategi, har vi på deler av bebyggelsen planlagt solcellepaneler på tak hvor energien skal brukes i fellesarealer.

Vi vil bevare trær og sørge for stedsriktig beplanting, dette vil gi boligområdet en grønn og frisk lunge.

Parkering

Det medfølger 1 stk. p-plass i parkeringskjeller med utvalgte leiligheter. Dette fremkommer i prislisten eller på nettsiden.

Kvalitet, standard og tilvalg

I Leangenbukta får du blant annet disse fordelene:

- Vannbåren gulvvarme på stue/kjøkken, og våtrom.
- Eikeparkett
- Balansert ventilasjon
- Flislaget bad
- Bestandige materialer som krever lite vedlikehold
- Lavere omkostninger ved kjøp av nybolig.
- 5 års reklamasjonsrett

Oppvarming

Det benyttes fjernvarme som energikilde. Oppvarming er basert på vannbåren gulvvarme i entre, stue/kjøkken og i våtrom.

Energimerking

Selger / utbygger innhenter lovpålagt energiattest for eiendommen.

Innflytting

Beregnet ferdigstillelse er 15 - 19 mnd. etter varslet byggestart, uavhengig av om selgers forbehold er frafalt/innfridd eller ikke.

Dersom byggestart varsles 01.08.2026, er antatt ferdigstillelse planlagt mellom 01.11.2027 og 01.03.2028. Det gjøres oppmerksom på at byggestart kan bli varsles tidligere, og en eventuell ny overtakelsesperiode vil da fremgå av byggestartsvarslet.

Se prospekt for mer info.

Nærområdet

Annonseinformasjon

FINN-kode431996581
Sist endret05. des. 2025 07:50
Referanse810250774

Rapporter annonse

Annonsene kan være mangelfulle i forhold til lovpålagt opplysningsplikt. Før bindende avtale inngås oppfordres interessenter til å innhente komplett informasjon fra meglerforetaket, selger eller utleier.