Bildegalleri

Planskisse

Solgt

Bo Brøset - Leiligheter Elvely (Bygg A)

Moderne 2-roms med praktisk planløsning og flott balkong | Romslig oppholdsrom | nærhet til kollektivtransport |

Prisantydning3 290 000 kr
Totalpris
3 317 010 kr
Omkostninger
27 010 kr
Felleskost/mnd.
2 575 kr
  • Planlegging

    2025

  • Salgsstart

    2. halvår 2025

  • Byggestart

    Q1 2026

  • Overtakelse

    Q4 2027

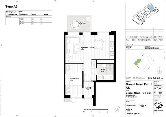
Nøkkelinfo

Boligtype
Leilighet
Etasje
2
Soverom
1
Rom
2
Internt bruksareal
43 m² (BRA-i)
Bruksareal
45 m²
Eksternt bruksareal
2 m² (BRA-e)
Balkong/Terrasse
6 m² (TBA)

Les mer om bruksareal her

Fasiliteter

Barnevennlig
Balkong/Terrasse
Kabel-TV
Alarm
Heis
Sentralt
Bredbåndstilknytning
Moderne
Rolig
Balansert ventilasjon

Beskrivelse

EiendomsMegler1 har gleden av å presentere en ny og moderne 2-romsleilighet med flere smarte løsninger. Boligen vil få ett stort oppholdsrom som inkluderer stue og kjøkken på hele 24,6 kvm! Kun ett steinkast unna boligen vil man finne kollektivtransport.

Av flere gode kvaliteter ønsker vi å fremheve følgende:
- Nytt attraktivt bo-område på Brøset
- Praktisk planløsning
- 10 minutter unna Trondheims bykjerne
- Moderne fellesareal som treningsrom og golfsimulator!
- Bildelings tjeneste
- Kvalitets kjøkken fra HTH
- Sportsbod i kjeller
- Vannbåren gulvvarme

Innhold

2. etasje
Stue, kjøkken, gang og soverom

Balkong

Beliggenhet

10-minuttersbyen er en betegnelse på fremtidens byutvikling, og betyr nærhet mellom boliger, arbeidsplasser og daglige gjøremål. Det skal være en målsetning at alle har tilgang til flest mulig funksjoner som handel, turområder, barnehage, skole og helsetilbud innenfor 10 minutters gangavstand fra der de bor.

Å bo på Brøset skal gjøre det enkelt og naturlig for innbyggerne å gjøre de bærekraftige valgene i hverdagen. Med miljøvennlige alternativer som buss og sykkel har du kort vei til det meste. Alt fra servicefunksjoner, kjøpesentre, sentrum og kulturtilbud, studiesteder, arbeidsplasser og marka er i umiddelbar nærhet. Perfekt for deg som ønsker å bo litt mer luftig og grønt, samtidig som du kan glede deg over alt det byen har å by på.

Ferdigattest

Utbygger plikter å fremskaffe ferdigattest når eiendommen er ferdigstilt.

Beskrivelse (type bolig)

Selveierleilighet

Ligningsverdi (formuesverdi)

Formuesverdi fastsettes av skatteetaten etter ferdigstillelse.

Nærområdet

Annonseinformasjon

FINN-kode430858726
Sist endret11. des. 2025 13:44
Referanse492510568

Rapporter annonse

Annonsene kan være mangelfulle i forhold til lovpålagt opplysningsplikt. Før bindende avtale inngås oppfordres interessenter til å innhente komplett informasjon fra meglerforetaket, selger eller utleier.