Bildegalleri

Gildheim Bygg D

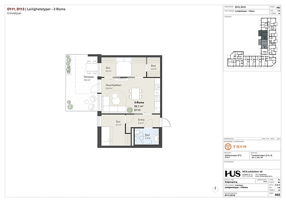
D113

Prisantydning4 700 000 kr
Totalpris
4 735 160 kr
Omkostninger
35 160 kr
Felleskost/mnd.
2 254 kr
  • Planlegging

    Pågår

  • Salgsstart

    Høst 2025

  • Byggestart

    2025/ 2026

  • Overtakelse

    2027/2028

Nøkkelinfo

Boligtype
Leilighet
Etasje
1
Soverom
2
Internt bruksareal
56 m² (BRA-i)
Bruksareal
61 m²
Eksternt bruksareal
5 m² (BRA-e)

Les mer om bruksareal her

Visning

mandag, 02. februar
14:00 – 15:00
Våre visninger har påmelding. Dette gjør vi for å kunne yte bedre service for våre kunder. Verdifullt for boligkjøper og for oss. Vi anbefaler at salgsoppgaven lastes ned digitalt før visning, og ring oss gjerne på forhånd for spørsmål om boligen. Passer ikke angitt tidspunkt, ta kontakt så finner vi en løsning. Skulle det mot formodning ikke være påmeldte til angitt visningstidspunkt vil ikke visning bli gjennomført.
Visningspåmelding

Beskrivelse

Beliggenhet

Leangen - En moderne og attraktiv bydel i vekst

Leangen har de siste årene gjennomgått en spennende transformasjon og fremstår i dag som en av Trondheims mest dynamiske og ettertraktede bydeler. Med en rekke nye boligprosjekter som har skutt opp i området, har Leangen fått et friskt og moderne preg - perfekt for både unge førstegangskjøpere, barnefamilier og aktive voksne.

Her legges det stor vekt på trivsel og fellesskap. De nye boligområdene er planlagt med romslige fellesarealer, grønne lunger og sosiale møteplasser som inviterer til både avslapning og aktivitet. Enten du ønsker å ta en kaffe med naboen, la barna leke trygt ute, eller bare nyte solen i rolige omgivelser, finner du det her.

Leangen har en svært sentral beliggenhet med kort vei til alt du trenger. Bussforbindelsene er hyppige og effektive, og du kommer deg til Trondheim sentrum på få minutter. I tillegg har du enkel adkomst til E6, noe som gjør det praktisk for både pendling og helgeturer ut av byen.

Med nærhet til både shopping, treningssentre, skoler og barnehager, er Leangen et område som kombinerer det urbane med det behagelige - og gir deg det beste av begge verdener.

Adkomst

Kjøreadkomst skal skje via Travbanevegen. Avkjørsler er vist
med piler på plankartet. Kjøreadkomsten til hovedinngang/
heis for bolig skal skje gjennom parkeringskjelleren.

Ferdigattest

Utbygger plikter å fremskaffe ferdigattest når eiendommen er ferdigstilt.

Hvitevarer / tilbehør

Hvitevarene og brunevarer medfølger ikke i handelen med mindre det tydelig fremgår av salgsoppgaven.

Ligningsverdi (formuesverdi)

Formuesverdi fastsettes av skatteetaten etter ferdigstillelse.

Boligkjøperforsikring

Advokatforsikring er et advokattilbud fra HELP. Du betaler ingen timepris. Forsikringen gir deg advokathjelp til saker knyttet til kjøpet av din nye bolig. Advokathjelpen omfatter også de viktigste rettsområdene du vil støte på i privatlivet, og gjelder i tillegg din sekundær- og fritidsbolig. Forsikringen koster kr 14 000, og gjelder i 5 år fra kontraktsignering. Meglerforetaket mottar kr 2 000 i kostnadsgodtgjørelse for formidling av forsikringen. Vi tar forbehold om pris- og vilkårsendringer. For mer informasjon se www.help.no.

Nærområdet

Annonseinformasjon

FINN-kode430108695
Sist endret27. jan. 2026 05:03
Referanse492510487

Rapporter annonse

Annonsene kan være mangelfulle i forhold til lovpålagt opplysningsplikt. Før bindende avtale inngås oppfordres interessenter til å innhente komplett informasjon fra meglerforetaket, selger eller utleier.