Bildegalleri
Enebolig 1. etg.jpg
Inaktiv
Nordstadtunet Ilseng
Norstadtunet Ilseng
Prisantydning6 950 000 kr
Prosjektets status
Planlegging
Salgsklart
Salgsstart
Høsten 2025
Byggestart
Antatt 4. kvartal 2025
Overtakelse
12 måneder etter byggestart
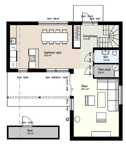
Nøkkelinfo
- Boligtype
- Tomannsbolig
- Soverom
- 3
- Rom
- 5
- Bruksareal
- 144 m²
Fasiliteter
Balkong/Terrasse
Garasje/P-plass
Peis/Ildsted
Turterreng
Beskrivelse
Ansvarlig megler
Espen Fari
NB: Knappen for å vise hele beskrivelsen har kun en visuell effekt.
NB: Knappen for å vise hele beskrivelsen har kun en visuell effekt.
Nyttige lenker
Nærområdet
DNB Eiendom AS
Annonseinformasjon
| FINN-kode | 430070082 |
|---|---|
| Sist endret | 03. okt. 2025 12:21 |
| Referanse | 523230185 |
Annonsene kan være mangelfulle i forhold til lovpålagt opplysningsplikt. Før bindende avtale inngås oppfordres interessenter til å innhente komplett informasjon fra meglerforetaket, selger eller utleier.